Molenwerf 6, Spaarndam
VerkochtBeschrijving
PUUR* woongeluk met prachtig uitzicht over het water. Dat is wat je bij deze goed onderhouden en energiezuinige (energielabel A) vrijstaande watervilla ervaart. In 2018 is op een van de mooiste plekken van de regio en op 15 minuten fietsen van Haarlem dit prachtige huis met eigen ligplaats (te huur via Rijnland), berging en 2 eigen parkeerplaatsen gerealiseerd. Dit ruim opgezette huis beschikt naast een moderne keuken over een ruime woonkamer met zicht over het Spaarne, 4 goed formaat slaapkamers en 2 badkamers. Kom kijken en laat je verrassen door het prachtige uitzicht en de mooie zonsondergang.
Goed om te weten:
* Uniek uitzicht over het water
* Eigen ligplaats(huur via Rijnland) voor de deur
* Ruime woning met riant terras op het westen
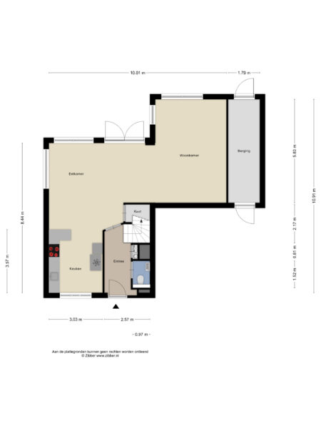
* Woonoppervlak ca. 159 m2 (zie meetrapport)
* Goed onderhouden en zo te betrekken
* Volledige voorzien van vloerverwarming
* Vier slaapkamers en 2 badkamers
* Veel bergruimte onder de kap
* Energielabel A
* Parkeren voor twee auto’s op eigen terrein
* Ruime aangebouwde berging met elektra
* Aanvaarding in overleg
Begane grond: voortuin, oprit voor 2 auto’s, berging, voordeur, ruime hal, toilet met fontein, meterkast deur naar woonkamer met grote glazen puien die prachtig zicht over het Spaarne geven, grote glazen deuren geven toegang naar het terras op het westen en naar het terras op het zuiden, open keuken met schiereiland met diverse inbouwapparatuur o.a. quooker en combi oven.
1e etage: overloop, badkamer aan voorzijde met bad, douche en wastafel en toilet, slaapkamer aan voorzijde, 2 slaapkamers aan achterzijde beide met prachtig zicht over het water.
2e etage: overloop met kast voor hybride warmtepomp en aansluitingen wasmachine en droger, grote slaapkamer over de hele breedte.
*ENGLISH TEXT*
PURE* living happiness with a beautiful view over the water. That is what you will experience in this well-maintained and energy-efficient (energy label A) detached water villa. In 2018, this beautiful house with its own mooring, storage room, and two private parking spaces was built in one of the most beautiful locations in the region. In addition to a modern kitchen, this spacious house has a large living room with a view over the Spaarne, four good-sized bedrooms, and two bathrooms. Come and see for yourself and be amazed by the beautiful view and stunning sunsets.
Good to know:
* Unique view over the water
* Private mooring in front of the door
* Spacious house with large west-facing terrace
* Living area approx. 159 m2 (see measurement report)
* Well maintained and ready to move in
* Fully equipped with underfloor heating
* Four bedrooms and 2 bathrooms
* Plenty of storage space under the roof
* Energy label A
* Parking for two cars on private property
* Spacious attached storage room with electricity
* Acceptance in consultation
Ground floor: front garden, driveway for 2 cars, storage room, front door, spacious hall, toilet with washbasin, meter cupboard, door to living room with large glass fronts offering a beautiful view over the Spaarne river, large glass doors giving access to the west-facing terrace and the south-facing terrace, open kitchen with peninsula and various built-in appliances, including a Quooker and combi oven.
1st floor: landing, bathroom at the front with bath, shower, sink, and toilet, bedroom at the front, 2 bedrooms at the rear, both with beautiful views over the water.
2nd floor: landing with cupboard for hybrid heat pump and connections for washing machine and dryer, large bedroom across the entire width.
Algemeen
- Plaats
- Spaarndam
- Status
- Verkocht
- Buurt
- Spaarndam (gedeeltelijk)
- Aantal kamers
- 5
- Aantal slaapkamers
- 4
- Aantal badkamers
- 2
- Woonoppervlakte
- 159 m2
- Perceel oppervlakte
- 254 m2
- Ligging
- In woonwijk, Vrij uitzicht, Aan vaarwater
- Bouwjaar
- 2018
- Isolatie
- Dakisolatie, Muurisolatie, Vloerisolatie, HR glas
- Type verwarming
- CV ketel, Vloerverwarming geheel, Warmtepomp
- Onderhoud buiten
- Goed
- Onderhoud binnen
- Goed
- Voorzieningen
- Mechanische ventilatie, TV kabel, Buitenzonwering
- Energieklasse
- A
- Soort dak
- Lessenaardak
- Parkeer faciliteiten
- Openbaar parkeren, Op eigen terrein
- Woning type
- Woonhuis





















































