Nieuwstraat 87, Weesp
BeschikbaarPrijs: € 947.000,-
Beschrijving
Monumentaal woon/werkpand in het hart van Weesp
In de historische kern van Weesp staat dit gemeentelijk monument uit 1725, dat in 2018 geheel onder architectuur is gerenoveerd. Achter de karakteristieke, klassieke gevel schuilt een verrassend modern huis met een open uitstraling waarin oud en nieuw harmonieus samenkomen.
De huidige bewoners hebben met liefde en oog voor detail gekozen voor hoogwaardige, natuurlijke en stijlvolle materialen. Door het consequent toepassen van eikenhout, staal en glas ademt het gehele huis een sfeer van rust en eenheid. Het pand geeft meerdere mogelijkheden om werk en wonen op een aantrekkelijke manier te combineren.
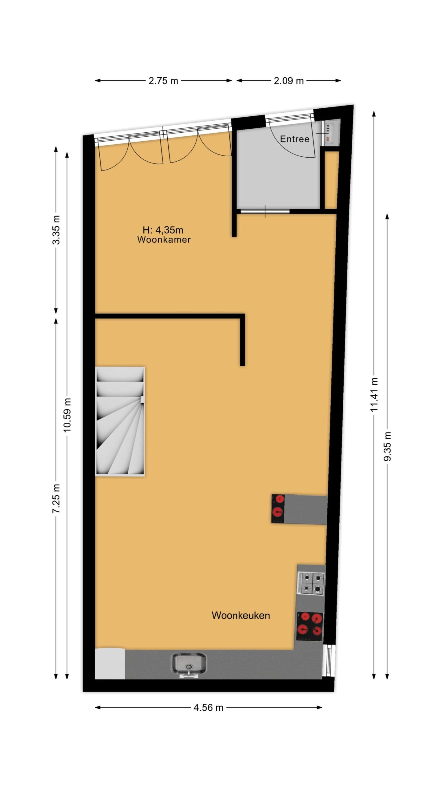
De royale woonkeuken vormt het hart van het huis. Bij een plafondhoogte van 4,5 meter met zichtbare authentieke balken ademt deze ruimte lucht en openheid. Aan de voorzijde is een sfeervolle zithoek met openslaande deuren over de breedte van de gevel. De vide die hier deels boven is gesitueerd, staat in verbinding met de leefruimte op de begane grond en biedt ruimte voor een open werkplek. Hier is ook de eerste badkamer met ligbad, toilet en wastafel gesitueerd.
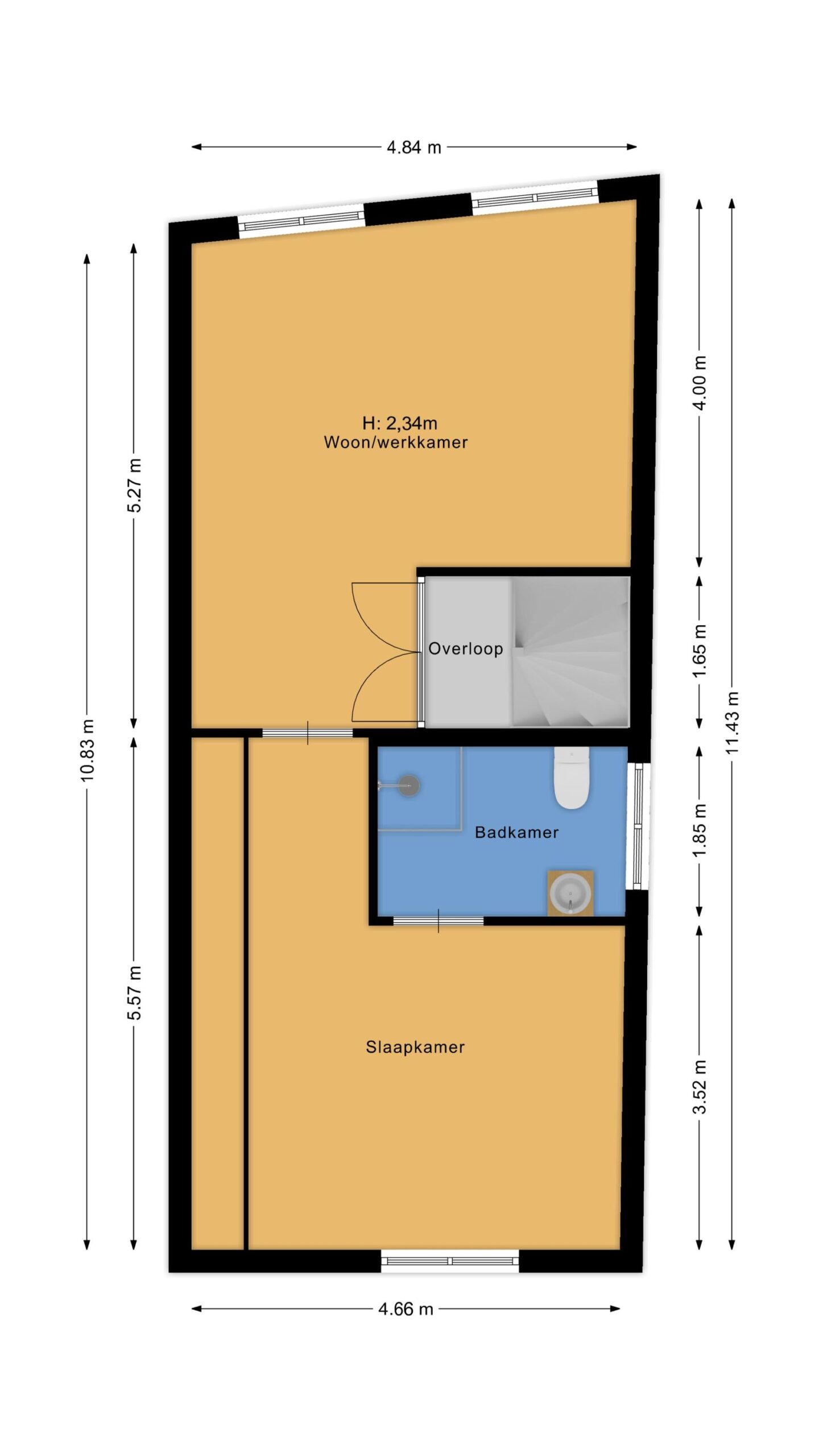
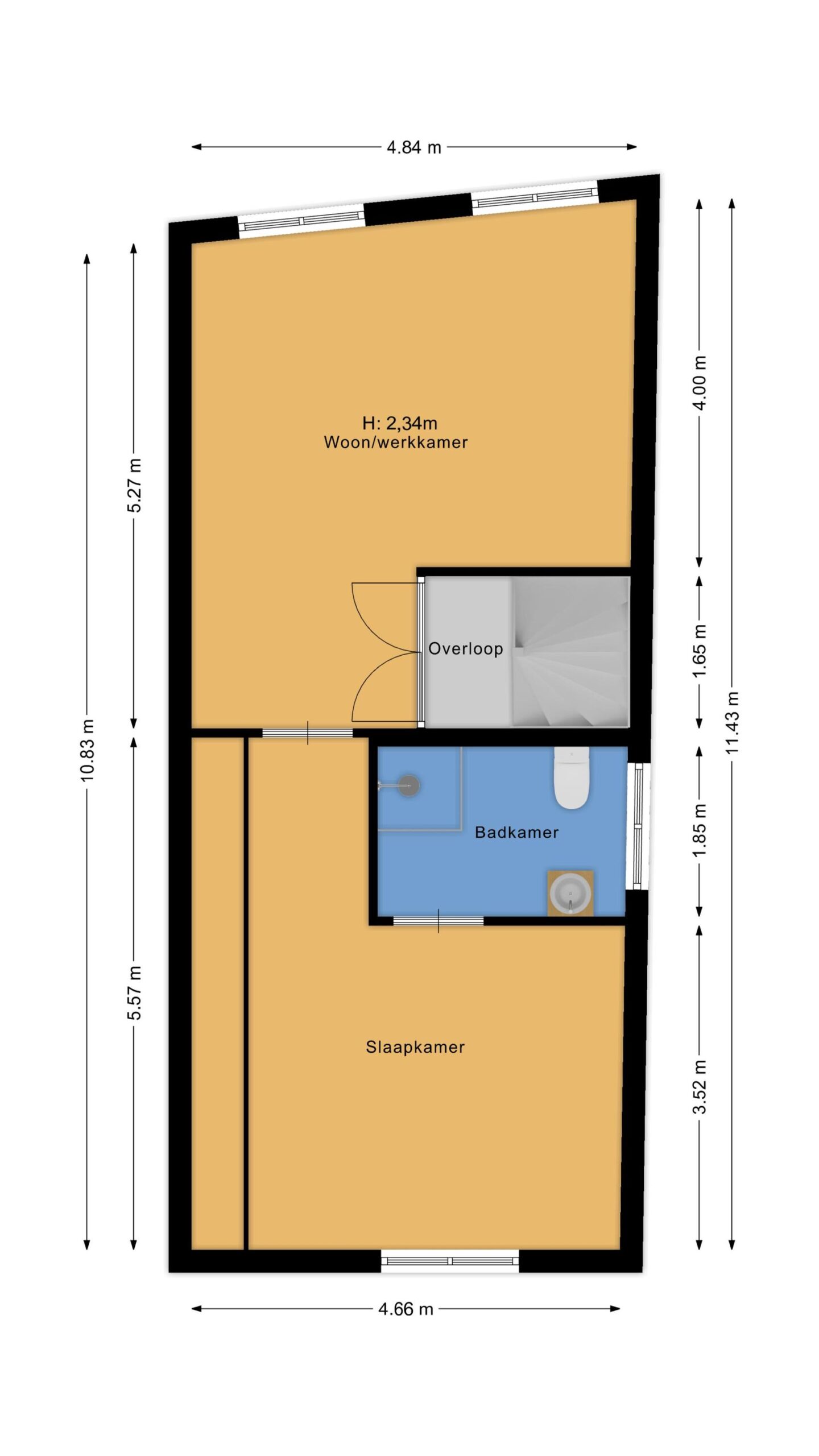
Op de eerste verdieping bevindt zich aan de voorzijde een lichte ruime living, die voor meerdere toepassingen geschikt is. Aan de achterzijde is een riante slaapkamer met aangrenzend een tweede badkamer met inloopdouche, toilet en wastafel. In de vaste kastenwand zijn de aansluitingen voor wasmachine en droger netjes weggewerkt.
De bovenste verdieping beschikt over nog twee ruime sfeervolle (slaap/werk) kamers met de kenmerkende originele dakspanten, een separaat toilet en een loggia op het zuidoosten — een heerlijke plek om van de middagzon te genieten.
De ligging van het pand is uitstekend: in het rustige deel van de oude binnenstad, op loopafstand van winkels, supermarkten, horeca en openbaar vervoer. Met de trein ben je in circa 15 minuten in Amsterdam.
De combinatie van monumentale architectuur, allure en wooncomfort maakt dit huis echt uniek.
Kenmerken:
• Volledig gerenoveerd en geïsoleerd in 2017/2018 onder architectuur
• Gemeentelijk monument met moderne, kwalitatieve uitstraling
• Uitzonderlijke plafondhoogte van ruim 4,50 meter in de woonkeuken
• Authentieke balken, natuurlijke materiaalkeuze
• Hoogwaardige en duurzame afwerking
• 4 (slaap)kamers + werkvide
• 2 badkamers + separaat toilet
• Loggia met ochtend en middagzon
• Gelegen in de historische binnenstad van Weesp
• Parkeren middels vergunningstelsel
Een bijzonder pand met karakter, klasse en comfort — absoluut een bezichtiging waard!
—————————————————————————————————————————————–
ENGLISH VERSION
Monumental Home with Industrial Elegance in the Heart of Weesp
In the heart of charming Weesp, a historic fortified town where picturesque canals, elegant façades and inviting boutiques create a truly special atmosphere, stands this exceptional detached municipal monument.
Weesp combines the tranquillity of a small town with the vibrancy of city life. Nestled along the River Vecht and just a short train ride from Amsterdam (approx. 15 minutes), it offers everything within easy reach: shops, restaurants, cafés, supermarkets, schools and a train station, all just a stroll away.
Behind the elegant, classic façade of this residence lies a surprisingly modern and light-filled home. Completely renovated and redesigned under architectural supervision in 2017/2018, the property now offers a perfect balance between historic character and contemporary living comfort. Every detail has been carefully considered, creating a warm yet refined aesthetic. The interior embraces an open, industrial design with high-quality materials and bespoke craftsmanship. Striking steel-framed doors, glass balustrades, exposed wooden beams and a beautiful oak staircase give the home a sense of understated luxury.
Living Spaces
The ground floor features a bright and inviting sitting room with French doors opening onto the quiet street, allowing natural light to flow through the space. At the rear lies the stunning kitchen-diner; the true heart of the home, boasting an impressive ceiling height of 4.50 metres. The visible original beams and steel accents create a unique atmosphere where warmth and modern design meet.
Above the kitchen, a mezzanine has been created, open to the space below; ideal as a home office or an additional seating area. The mezzanine level also includes a bathroom with bathtub, toilet and washbasin.
The first floor offers a spacious bedroom with an en-suite bathroom (walk-in shower, toilet and washbasin), as well as a bright additional room that can serve as a fourth bedroom or second lounge. Laundry connections are neatly concealed in a custom-built cupboard wall.
The top floor features two additional bedrooms, a separate toilet with washbasin, and access to a charming loggia, perfectly oriented for the morning and afternoon sun; an intimate retreat to enjoy the views over historic Weesp.
Highlights
• Listed municipal monument with distinctive industrial charm
• Fully renovated and insulated in 2017/2018 under architectural supervision
• Exceptional ceiling height (4.52 m) in the kitchen-diner
• Exposed beams, steel-framed doors, glass balustrades and oak staircase
• 4 bedrooms + mezzanine workspace
• 2 bathrooms + separate toilet
• Loggia with morning and afternoon sun
• Located in the historic town centre of Weesp
• Parking available via local permit system
Kenmerken
- Koopprijs
- € 947.000,-
- Plaats
- Weesp
- Status
- Beschikbaar
- Buurt
- Centrum
- Aantal kamers
- 6
- Aantal slaapkamers
- 4
- Aantal badkamers
- 3
- Woonoppervlakte
- 158 m2
- Perceel oppervlakte
- 63 m2
- Ligging
- Aan rustige weg, In centrum
- Bouwjaar
- 1725
- Isolatie
- Dakisolatie, Muurisolatie, Vloerisolatie
- Type verwarming
- CV ketel, Vloerverwarming gedeeltelijk, Houtkachel
- Onderhoud buiten
- Goed
- Onderhoud binnen
- Goed tot uitstekend
- Voorzieningen
- Mechanische ventilatie, TV kabel, Rookkanaal, Dakraam
- Energieklasse
- C
- Soort dak
- Zadeldak
- Woning type
- Woonhuis
Plattegronden
Uitzicht op straat
Zoek de locatie
kom jij kijken?
Een bezoek vertelt het meest. Onze makelaars nemen graag de tijd voor een rustige rondleiding.
Contacteer ons nu





































