Noorderstraat 83B, Amsterdam
VerkochtBeschrijving
PUUR* Wonen!
Licht en efficiënt ingedeeld 3-kamerappartement van ca. 57 m², gelegen op eigen grond! De woning ligt op een toplocatie in het hart van Amsterdam. Het betreft een nieuwbouwappartement dat volledig in oude karakteristieke stijl is gebouwd, dat volledig voldoet aan de hedendaagse woon- en comforteisen. Beide slaapkamers grenzen aan het balkon waarvan de master bedroom directe toegang heeft met openslaande deuren tot het balkon, een ruime en lichte woonkamer met open keuken en een fraaie eikenhouten parketvloer. Dankzij de drie hoge ramen aan de voorzijde geniet de woonkamer van een uitzonderlijke hoeveelheid daglicht.
INDELING:
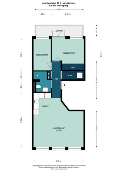
Via de gemeenschappelijke voordeur betreedt u het trappenhuis die opvallend ruim en licht is, iets wat je zelden ziet in Amsterdam. Het appartement bevindt zich op de eerste verdieping. Bij binnenkomst stapt u de hal binnen, die toegang biedt tot alle vertrekken van de woning. De gehele woning is voorzien van een stijlvolle eikenhouten parketvloer, wat zorgt voor een warme en luxe uitstraling. Aan de linkerzijde van de hal bevindt zich de lichte en sfeervolle woonkamer met open keuken. Dankzij drie grote draai-kiepramen met bovenlicht, valt er volop natuurlijk daglicht naar binnen. De moderne keuken is uitgerust met een vijfpits gasfornuis, een nieuwe combi-oven en alle benodigde inbouwapparatuur voor comfortabel koken.
Aan de rechterzijde van de hal bevinden zich twee slaapkamers. De master bedroom beschikt over een royale inbouwkast en geeft direct toegang tot het balkon van circa 7m². De tweede slaapkamer is compact maar praktisch ingedeeld en geschikt als volwaardige slaap- of werkkamer. Tussen de woonkamer en de slaapkamers in bevindt zich de moderne badkamer, voorzien van een ruime inloopdouche, een wastafel en een toilet. Ook is er een apart washok aanwezig.
LOCATIE:
Dit appartement is ideaal gelegen in het bruisende hart van Amsterdam, om de hoek van de iconische grachtengordel. Gelegen tussen de levendige Utrechtsestraat en de populaire Pijp bevindt u zich hier te midden van alles wat de stad zo geliefd maakt. Tevens ligt de rustige Noorderstraat om de hoek bij het gezellige Amstelveld. Op loopafstand vindt u een ruim aanbod aan gezellige cafés, uitstekende restaurants, unieke boetiekjes, scholen en een ruime keuze uit speeltuinen. De beroemde Albert Cuypmarkt ligt op een steenworp afstand. Ook bevindt zich slechts op enkele minuten lopen de metrohalte Vijzelgracht (Noord/Zuidlijn). Hierdoor bent u binnen enkele minuten op Amsterdam Centraal of Station Zuid. Ook tram- en busverbindingen zijn dichtbij, net als uitvalswegen richting de A10. Mocht u graag de auto willen pakken is er een hypermoderne parkeergarage op de Vijzelgracht en is alleen te gebruiken voor de vergunninghouders.
VVE:
* De VVE is gezond
* Service kosten bedragen € 100,- per maand
Eigen grond:
De woning is gelegen op eigen grond.
BIJZONDERHEDEN:
* Bouwjaar 2010
* Gelegen op eigen grond;
* 57m2 (NEN meetrapport aanwezig);
* Zeer gunstige ligging in het centrum van Amsterdam;
* Ruime en lichte doorzon-woonkamer met open keuken;
* Balkon aan de achterzijde van de woning (ca 7m2);
* Oplevering in overleg;
* Beton vloer;
* Nieuwe fundering;
* Ruime trapopgang;
Algemeen
- Plaats
- Amsterdam
- Status
- Verkocht
- Buurt
- Weteringbuurt
- Aantal kamers
- 3
- Aantal slaapkamers
- 2
- Aantal badkamers
- 1
- Woonoppervlakte
- 57 m2
- Ligging
- Aan rustige weg, In centrum
- Bouwjaar
- 2010
- Isolatie
- Dakisolatie, Muurisolatie, Vloerisolatie, Dubbelglas, Volledig geïsoleerd, HR glas
- Type verwarming
- CV ketel, Warmte terugwininstallatie
- Onderhoud buiten
- Redelijk tot goed
- Onderhoud binnen
- Goed tot uitstekend
- Voorzieningen
- TV kabel
- Energieklasse
- A
- Soort dak
- Plat dak
- Parkeer faciliteiten
- Betaald parkeren, Parkeervergunningen
- Woning type
- Appartement






















