Olympiaweg 32-2, Amsterdam
Onder bodPrijs: € 445.000,-
Beschrijving
PUUR* WONEN!
Zeer sfeervol en goed ingedeeld appartement gelegen middenin het geliefde Oud-Zuid, nabij het Olympisch stadion en het Vondelpark, met volledig, afgekochte erfpacht!
Dit appartement is gelegen op de tweede verdieping van een karakteristiek pand met fraaie details uit 1926 en beschikt over een sfeervolle woonkamer, moderne witte en open keuken, fijne slaapkamer en volledige isolerende beglazing. De woning heeft een zonnig balkon over de volledige breedte en een berging op de zolderverdieping en beschikt over een energielabel A.
Kortom, een turn-key appartement op een geweldige locatie!
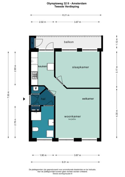
INDELING
Via het gemeenschappelijk trappenhuis is de entree op de tweede verdieping. Na de hal treed je binnen in de lichte, sfeervolle woonkamer aan de straatzijde. Deze woonkamer loopt door in de ruime keuken aan de achterzijde waar vandaan het balkon te bereiken is, dat over de volledige breedte gelegen is en voorzien is van een balkonkast. Hier kun je heerlijk genieten van de middag- en avondzon, met vrij uitzicht over groen.
De moderne keuken met stijlvol natuurstenen blad is voorzien van een koelkast met vriezer, vaatwasser, gaskookplaat en een combi oven-magnetron en is daarnaast voorzien van extra bovenkasten waardoor er veel kastruimte is.
Aan de achterzijde van het appartement, grenzend aan de rustige binnentuinen, is de ruime slaapkamer gesitueerd met kledingkast. De badkamer bevindt zich aan de straatzijde en is voorzien van een inloopdouche, wastafel met meubel, toilet, handdoekradiator, met de aansluiting voor de wasmachine en droger.
Daarnaast is er op de zolderverdieping een fijne berging aanwezig. In 2013/2014 is het geheel hoogwaardig gerenoveerd met nieuwe leidingen en elektra, waarbij wanden en kozijnen zijn geïsoleerd, een moderne mechanische ventilatie is aangebracht en een combi HR ketel is geïnstalleerd.
EIGENDOM
Wat betreft de erfpacht is het huidige tijdvak lopend t/m 31 december 2056 afgekocht. De overstap naar eeuwigdurende erfpacht is gemaakt en het eeuwigdurende tijdvlak na 2056 is ook afgekocht. Dus u heeft nooit meer omkijken naar de erfpacht.
BIJZONDERHEDEN
* Eeuwig afgekochte erfpacht
* Goed ingedeeld appartement, in 2014 volledig gerenoveerd;
* Zonnig balkon op het noordwesten;
* Royale berging op de zolderverdieping;
* Momenteel twee parkeervergunningen zonder wachttijd mogelijk;
* In 2014 is het gehele blok vernieuwbouwd opgeleverd;
* Erfpachtcanon eeuwigdurend afgekocht;
* De woning beschikt over een energielabel A met dubbele beglazing en isolatie;
* De Vereniging van Eigenaren wordt professioneel beheerd door Stedeplan;
* Er is een meerjarenonderhoudsplan waarvoor wordt gespaard;
* Karakteristiek pand uit periode 1926-1931 in Amsterdamse School stijl;
* Fantastische locatie, in nabijheid van Vondelpark, Amsterdamse Bos en de gezellige restaurants en trendy winkels van Oud-Zuid.
LOCATIE
Het appartement bevindt zich in de Stadionbuurt, Amsterdam-Zuid, op steenworp afstand van het Vondelpark, Olympiaplein en Stadionplein. Een rustige locatie in de stad, met een perfecte ligging nabij alles wat Oud-Zuid zo aantrekkelijk maakt. Zo ligt de bekende bakker Le Fournil om de hoek en zijn de Beethovenstraat, Cornelis Schuytstraat en de Amstelveenseweg op loopafstand. Elke zaterdag is er een gezellige markt op het Stadionplein. Direct om de hoek, aan de Marathonweg, bevinden zich populaire restaurants zoals Kiebert, restaurant Marathonweg en Bar Hendrik, allemaal met een heerlijk zonnig terras.
BEREIKBAARHEID
De verbindingen met het openbaar vervoer zijn uitstekend: op 5 minuten loopafstand ligt het Haarlemmermeerstation en ook Station Amsterdam Zuid is met vele trein- en metroverbindingen binnen 5 minuten fietsen bereikbaar. Met de auto is dit ook een toplocatie; je bent binnen enkele minuten op de A10. Het centrum, Amsterdamse Bos en het Vondelpark zijn met de fiets snel te bereiken. Voor de dagelijkse boodschappen zijn er op de hoek van de straat een een slager, een groenteboer en een Albert Heijn te vinden.
PARKEREN
Bewoners kunnen, zonder wachttijd, twee betaalde parkeervergunningen aanvragen op dit adres.
KADASTRALE AANDUIDING
Het appartementsrecht, rechtgevende op het uitsluitend gebruik van de woning met balkon gelegen op de tweede verdieping van na te melden gebouw, met een afzonderlijke berging gelegen op de zolderverdieping van dat gebouw, plaatselijk bekend Olympiaweg 32 2 te 1076 Z Amsterdam, kadastraal bekend gemeente Amsterdam, sectie AC, complexaanduiding 1370-A, appartementsindex 64, uitmakende het zestig/zevenduizendachtendertigste (60/7.038) aandeel in de gemeenschap.
VERENIGING VAN EIGENAARS
De Vereniging van Eigenaars is genaamd “Olympiaweg, Theseusstraat, Olympiakade en Speerstraat te Amsterdam” en wordt professioneel beheerd door Stedeplan Vastgoedbeheer. De maandelijkse bijdrage is € 107,83. Er is een MJOP aanwezig.
***ENGLISH BELOW***
PURE LIVING!
Charming and well-laid-out apartment located in the heart of the highly sought-after Oud-Zuid, near the Olympic Stadium and Vondelpark, with fully redeemed leasehold!
This apartment is situated on the second floor of a characteristic 1926 building with beautiful architectural details. It features a bright living room, modern open white kitchen, a comfortable bedroom, and fully insulating double glazing. The home comes with a sunny full-width balcony, an attic storage room, and has an energy label A.
In short: a turn-key apartment in a fantastic location!
LAYOUT
The entrance to the apartment is on the second floor, accessed via the communal staircase. The hallway leads into the bright and inviting living room at the front of the property. This living space flows into the spacious kitchen at the rear, from where you can access the balcony that stretches across the entire width of the apartment and includes a storage cabinet. Here, you can fully enjoy the afternoon and evening sun, with unobstructed green views.
The modern kitchen, finished with a stylish natural stone countertop, is equipped with a fridge-freezer, dishwasher, gas hob, and a combination oven-microwave. Additional upper cabinets provide ample storage space.
At the rear, overlooking the quiet inner gardens, you’ll find the spacious bedroom with wardrobe. The bathroom, located at the front, includes a walk-in shower, washbasin with vanity unit, toilet, towel radiator, and connections for a washing machine and dryer.
There is also a convenient private storage room on the attic floor. Between 2013 and 2014, the entire apartment was renovated to a high standard with new pipes and wiring, insulated walls and frames, modern mechanical ventilation, and a high-efficiency central heating boiler.
OWNERSHIP
The current leasehold period runs until December 31, 2056 and has been fully redeemed. The perpetual leasehold system has already been secured and redeemed as well. In other words: you will never have to worry about ground lease payments.
FEATURES
* Well-laid-out apartment, fully renovated in 2014;
* Sunny southwest-facing balcony;
* Large attic storage room;
* Currently eligible for two parking permits without waiting time;
* Entire block completed as new construction in 2014;
* Perpetual leasehold fully redeemed;
* Energy label A with double glazing and insulation;
* Professionally managed homeowners’ association (VvE) by Stedeplan;
* Multi-year maintenance plan (MJOP) in place;
* Characteristic building in Amsterdam School style (1926–1931);
* Prime location near Vondelpark, Amsterdamse Bos, and the vibrant restaurants and trendy shops of Oud-Zuid.
LOCATION
The apartment is located in the Stadionbuurt, Amsterdam-Zuid, just a stone’s throw from Vondelpark, Olympiaplein, and Stadionplein. A quiet area with perfect access to everything that makes Oud-Zuid so desirable. The famous bakery Le Fournil is just around the corner, and Beethovenstraat, Cornelis Schuytstraat, and Amstelveenseweg are all within walking distance. Every Saturday, a lively market takes place on Stadionplein. Popular restaurants such as Kiebert, Marathonweg, and Bar Hendrik, all with sunny terraces, are right nearby.
ACCESSIBILITY
Public transport connections are excellent: Haarlemmermeerstation is only a 5-minute walk away, and Amsterdam Zuid station with numerous train and metro links can be reached within 5 minutes by bike. By car, this is also an ideal location, with the A10 motorway just minutes away. The city center, Amsterdamse Bos, and Vondelpark are all quickly accessible by bike. For daily groceries, a butcher, greengrocer, and Albert Heijn supermarket are conveniently located at the end of the street.
PARKING
Residents can apply for two paid parking permits at this address without any waiting period.
CADASTRAL DETAILS
The apartment right, entitling the exclusive use of the home with balcony on the second floor of the building, with a separate storage room on the attic floor, locally known as Olympiaweg 32-2, 1076 Z Amsterdam. Registered with the municipality of Amsterdam, section AC, complex designation 1370-A, apartment index 64, representing a 60/7,038th share in the community.
HOMEOWNERS’ ASSOCIATION
The homeowners’ association is named “Olympiaweg, Theseusstraat, Olympiakade, and Speerstraat in Amsterdam” and is professionally managed by Stedeplan Vastgoedbeheer. The monthly service charge is €107.83, and a multi-year maintenance plan (MJOP) is in place.
Kenmerken
- Koopprijs
- € 445.000,-
- Plaats
- Amsterdam
- Status
- Onder bod
- Buurt
- Marathonbuurt Oost
- Aantal kamers
- 2
- Aantal slaapkamers
- 1
- Aantal badkamers
- 1
- Woonoppervlakte
- 46 m2
- Ligging
- In woonwijk
- Bouwjaar
- 1926
- Isolatie
- Dubbelglas
- Type verwarming
- CV ketel
- Onderhoud buiten
- Goed
- Onderhoud binnen
- Goed tot uitstekend
- Voorzieningen
- Mechanische ventilatie
- Energieklasse
- A
- Parkeer faciliteiten
- Betaald parkeren, Parkeervergunningen
- Schuur/bergruimte
- 1
- Woning type
- Appartement
Plattegronden
Uitzicht op straat
Zoek de locatie
kom jij kijken?
Een bezoek vertelt het meest. Onze makelaars nemen graag de tijd voor een rustige rondleiding.
Contacteer ons nu































