Oranjeplein 13, Haarlem
VerkochtBeschrijving
PUUR* wonen in dit brede gezinshuis (gemeentelijk monument) aan één van de mooiste pleinen in het Bosch & Vaartkwartier. Goed onderhouden, sfeervol herenhuis met zes slaapkamers en twee badkamers, bouwjaar ca. 1900, vele originele details zijn nog aanwezig, hoge plafonds, fantastische lichtinval, met vrij uitzicht over het Oranjeplein, voor- en achtertuin en de hele dag zon.
Locatie
Alle villa’s en herenhuizen aan het Oranjeplein zijn vóór of rond 1900 door verschillende architecten ontworpen, waardoor elk huis bijzonder is en het is alsof je teruggaat in de tijd als je het Oranjeplein binnenloopt. Het parkje heeft alleen bestemmingsverkeer en is daarom rustig en (mede door het hekwerk rondom het park) kindvriendelijk. De bossen De Hout en Elswout liggen op loopafstand, net als het bruisende stadsleven, Groenteboer Jos en IJssalon Garrone, ateliers, eetcafés en restaurants zoals Café Colette, Rigatoni, maar ook uitgaansgelegenheden en musea, zoals het Frans Hals en het Teylers Museum, de Toneelschuur, de Stadsschouwburg en de Philharmonie. Het huis ligt gunstig ten opzichte van de treinstations Haarlem en Heemstede-Aerdenhout, busstation De Tempelierstraat en uitvalswegen naar Amsterdam, Schiphol, Utrecht en Den Haag. De duinen en stranden zijn met de fiets bereikbaar, net als Amsterdam. Op Koningsdag is er de allerleukste vrijmarkt voor de deur.
Pluspunten
* Aan het Oranjeplein
* Vrij uitzicht op de Haarlemmerhout en de Spruitenbosstraat
* Historische charme/gevoel uit de bouwperiode is bewaard gebleven
* Bijzonder gezinshuis met ruimte voor alle kids (jong en oud) en/of au-pair
* Woonoppervlakte 249m²
* Zes slaapkamers en twee badkamers
* Voorgevel gereinigd knipvoeg en geïmpregneerd
* Vloerverwarming hal, keuken en serre
* Dak isolatie grotendeels dubbelglas en 5 zonnepanelen
* Gemeentelijk monument (dus geen energielabel nodig)
* Nefit Hoogrendement CV ketel 2019
* Alarm installatie
* Ingang Haarlemmer Hout: minder dan 5 minuut lopen
* Kinderboerderij de Houthoeve: 7 minuten fietsen
* Internationale school: 5 minuten fietsen
* Winkelstraat de Grote Houtstraat: 5 minuten fietsen
* Strand Bloemendaal/Zandvoort 20 min fietsen
* Oplevering in overleg
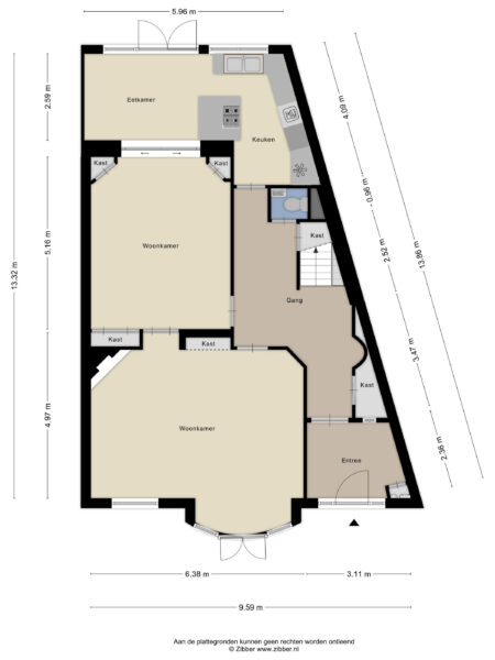
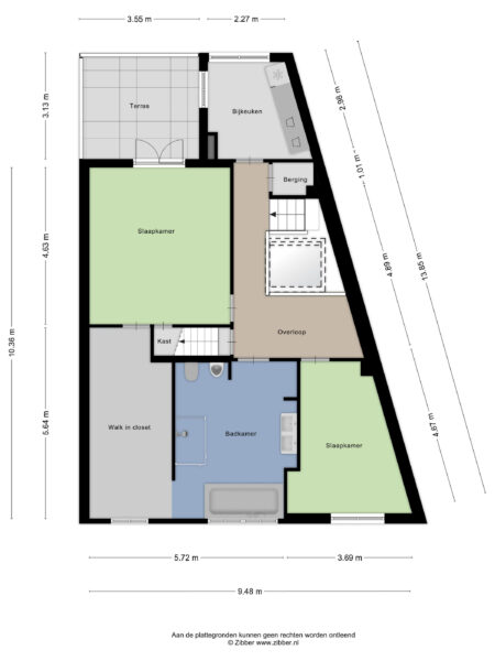
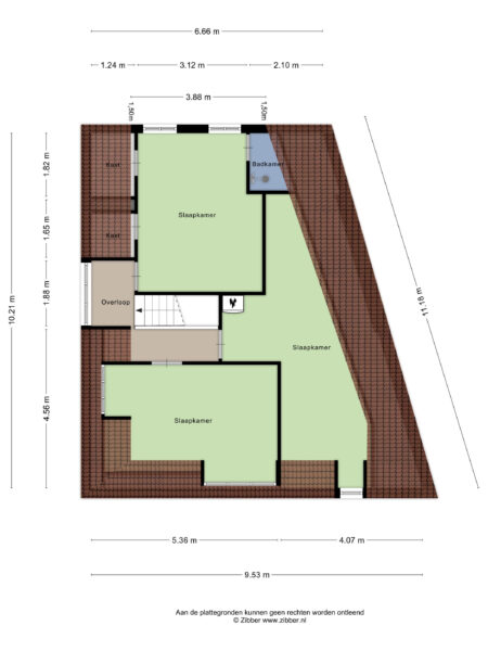
Indeling
Begane grond: voortuin, entree met vestibule en origineel tegelwerk, nieuwe meterkast en prachtige glas in lood ramen.
Kelder op stahoogte, bijzonder trappenhuis met daklicht (glas in lood), gang met toilet met fontein, toegang voorkamer met erker, hoge ornamenten plafonds en openslaande deuren en glas in lood ramen woonkamer met massief eiken (Hongaarse punt) vloeren, open haard (hout) en suite met originele kasten, tussen kamer, woonkeuken en openslaande deuren naar zonnige achtertuin op het westen.
1e Verdieping: overloop met trappenhuis voor een serenade en eiken vloerdelen. Slaapkamer aan de voorzijde, badkamer met ligbad inloop/doorloop douche, urinoir, toilet en toegang naar de kleedkamer met vaste kasten, hoofdslaapkamer met vaste kast en openslaande deuren naar terras op het westen. Via de overloop naar vaste kast en aparte waskamer.
2e Verdieping: overloop met dakkapel en brede eiken vloerdelen en hoge plafonds. Slaapkamer aan de achterzijde met vaste kast, toilet en aparte douche. Slaapkamer aan de voorzijde en een optie voor een derde ruime slaapkamer (nu in gebruik als bergzolder).
Zie voor de indeling en afmetingen de plattegronden.
– English text –
PUUR* living in this spacious family house (municipal monument) on one of the most beautiful squares in the Bosch & Vaartkwartier. Well maintained, attractive mansion with six bedrooms and two bathrooms, built in 1900, many original details are still present, high ceilings, fantastic light, with unobstructed views over the Orange Square, front and backyard and all day sun.
Location
All villas and mansions on Oranjeplein were designed before or around 1900 by different architects, which makes each house special and it is like going back in time when you walk into Oranjeplein. The little park has only destination traffic and is therefore quiet and (partly due to the fencing around the park) child-friendly. The forests De Hout and Elswout are within walking distance, just like the bustling city life, Groenteboer Jos and Ice Cream Parlor Garrone, studios, cafes and restaurants such as Café Colette, Rigatoni, as well as places of entertainment and museums, such as the Frans Hals and the Teylers Museum, the Toneelschuur, the Stadsschouwburg and the Philharmonie. The house is conveniently located to Haarlem and Heemstede-Aerdenhout train stations, bus station De Tempelierstraat and arterial roads to Amsterdam, Schiphol, Utrecht and The Hague. The dunes and beaches are accessible by bike, as is Amsterdam. On King’s Day there is the very best free market in front of the door.
Plus points
* On the Oranjeplein
* Unobstructed views of the Haarlemmerhout and Spruitenbosstraat
* Historic charm/feeling from the construction period has been preserved
* Special family home with room for all the kids (young and old) and / or au-pair.
* Living area 249m²
* Six bedrooms and two bathrooms
* Facade cleaned, grouted and impregnated
* Floor heating in hall, kitchen and conservatory
* Roof insulation, mostly double glazing and 5 solar panels.
* Municipal monument (so no energy label required)
* Nefit high efficiency boiler 2019
* Alarm system
* Entrance Haarlemmer Hout: less than 5 minutes walk
* Petting farm the Houthoeve: 7 minutes cycling
* International school: 5 minutes cycling
* Shopping street the Grote Houtstraat: 5 minutes cycling
* Beach Bloemendaal/Zandvoort: 20 min cycling
* Delivery in consultation
Layout
First floor: front garden, entrance with vestibule and original tiling, new meter cupboard and beautiful stained glass windows.
Basement at standing height, special staircase with skylight (stained glass), hallway with toilet with fountain, access front room with bay window, high ornamental ceilings and French doors and stained glass windows living room with solid oak (Hungarian point) floors, fireplace (wood) en suite with original cabinets, between room, kitchen diner and open swinging doors to sunny backyard facing west.
1st floor: landing with staircase for a serenade and oak floorboards. Front bedroom, bathroom with bath walk-in/through shower, urinal, toilet and access to dressing room with closets, master bedroom with closet and French doors to west-facing terrace. Through the landing to closet and separate laundry room.
2nd floor: landing with dormer window and wide oak floorboards and high ceilings. Bedroom at the rear with closet, toilet and separate shower. Bedroom at the front and an option for a third spacious bedroom (now used as storage attic).
See floor plans for layout and dimensions.
Algemeen
- Plaats
- Haarlem
- Status
- Verkocht
- Buurt
- Bosch en Vaart
- Aantal kamers
- 9
- Aantal slaapkamers
- 5
- Aantal badkamers
- 2
- Woonoppervlakte
- 249 m2
- Perceel oppervlakte
- 235 m2
- Ligging
- Aan park, Aan rustige weg, In woonwijk, Open ligging
- Isolatie
- Dakisolatie, Gedeeltelijk dubbelglas
- Type verwarming
- CV ketel, Vloerverwarming gedeeltelijk, Houtkachel
- Onderhoud buiten
- Goed tot uitstekend
- Onderhoud binnen
- Goed tot uitstekend
- Voorzieningen
- alarminstallatie, Dakraam, Zonnepanelen, Natuurlijke ventilatie
- Soort dak
- Samengesteld dak
- Parkeer faciliteiten
- Openbaar parkeren
- Woning type
- Woonhuis























































