Oranjestraat 148, Haarlem
BeschikbaarPrijs: € 840.000,-
Beschrijving
PUUR* wonen met riante tuin op het zuiden in de Leidsebuurt! In deze rustige straat, waar een charmante boom het aanzicht siert, staat dit in 2020 volledig verbouwde, energiezuinige (label B) gezinshuis met 4 goede formaat slaapkamers, 2 luxe badkamers en riante en fraai aangelegde tuin op het zuiden met veranda. Kom kijken en laat je verrassen door dit zo te betrekken gezinshuis!
De ligging in de gezellige ‘Leidsebuurt’ is ideaal, met het bruisende centrum van Haarlem op loopafstand. Buurtsuper, leuke koffietent en Plaza West met winkels zoals de AH en Etos liggen ‘om de hoek’ en het station is makkelijk met de fiets bereikbaar. De duinen en de stranden van Zandvoort en Bloemendaal zijn ook makkelijk met de fiets bereikbaar. Kom kijken en laat je verrassen!
Indeling
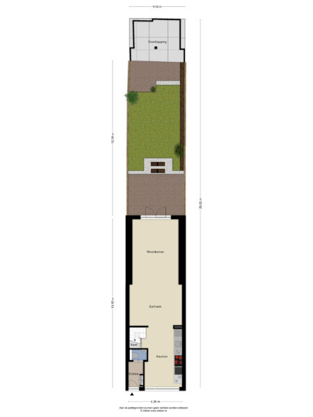
Begane grond: entree met meterkast en toilet met fontein, keuken met diverse inbouwapparatuur aan de voorzijde waardoor er aan de achterzijde een lichte tuingerichte woonkamer is gecreëerd, via de grote openslaande deuren toegang naar de bijna 16 meter en fraai aangelegde tuin op het zuiden met een sfeervolle veranda.
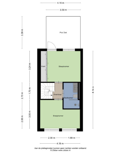
1e Verdieping: overloop, fraaie badkamer met inloopdouche, wastafelmeubel en wc, slaapkamer achterzijde over gehele breedte van het huis met vaste kast en deur naar platte dak. Slaapkamer voorzijde over de gehele breedte van het huis.
2e Verdieping: overloop, badkamer met ligbad, toilet en wastafelmeubel, slaapkamer achterzijde over de gehele breedte van het huis, slaapkamer aan voorzijde met aansluiting CV ketel en wasmachine droger opstelling
Zie voor de indeling en maatvoering de plattegronden.
Pluspunten:
* Ruime en lichte gezinswoning met 4 slaapkamers
* 2 moderne badkamers
* Woonoppervlak ca. 117m2 (zie meetrapport)
* Heerlijke tuin van ca. 16 meter diep op het zuiden
* Goed onderhouden woning met energielabel B
* Betonnen vloer op de begane grond
* Gunstige ligging in een leuke woonomgeving op loopafstand van het gezellige centrum
* Veel voorzieningen op loopafstand
* Parkeren d.m.v. vignettensysteem en bezoekersregeling direct verkrijgbaar
* Aanvaarding in overleg (kan spoedig)
De brochure en andere relevante stukken zijn te downloaden via onze eigen website.
*ENGLISH BELOW*
PURE* living with a spacious south-facing garden in the Leidsebuurt neighbourhood! In this quiet street, adorned by a charming tree, stands this family home, completely renovated in 2020, with 4 good-sized bedrooms, 2 luxurious bathrooms and a spacious and beautifully landscaped south-facing garden with a veranda. Come and see for yourself and be surprised by this ready-to-move-in family home!
The location in the pleasant “Leidsebuurt” neighbourhood is ideal, with the bustling centre of Haarlem within walking distance. A local supermarket, a nice coffee shop and Plaza West with shops such as AH and Etos are just around the corner, and the station is easily accessible by bicycle. The dunes and beaches of Zandvoort and Bloemendaal are also easily accessible by bicycle. Come and see for yourself and be surprised!
Layout
Ground floor: entrance hall with meter cupboard and toilet with washbasin, kitchen with various built-in appliances at the front, creating a bright, garden-facing living room at the rear, large French doors leading to the almost 16-metre-long, beautifully landscaped south-facing garden with an attractive veranda.
First floor: landing, beautiful bathroom with walk-in shower, washbasin and toilet, bedroom at the rear across the entire width of the house with built-in wardrobe and door to flat roof. Bedroom at the front across the entire width of the house.
Second floor: landing, bathroom with bath, toilet and washbasin, bedroom at the rear across the entire width of the house, bedroom at the front with connection for central heating boiler and washing machine/dryer.
See the floor plans for the layout and dimensions.
Advantages:
* Spacious and bright family home with 4 bedrooms
* 2 modern bathrooms
* Living area approx. 117m2 (see measurement report)
* Lovely garden approx. 16 metres deep, facing south
* Well-maintained home with energy label B
* Concrete floor on the ground floor
* Convenient location in a pleasant residential area within walking distance of the lively town centre
* Many amenities within walking distance
* Parking available immediately via vignette system and visitor regulations
* Acceptance in consultation (can be soon)
The brochure and other relevant documents can be downloaded from our website.
Kenmerken
- Koopprijs
- € 840.000,-
- Plaats
- Haarlem
- Status
- Beschikbaar
- Buurt
- Leidsebuurt-west
- Aantal kamers
- 7
- Aantal slaapkamers
- 4
- Aantal badkamers
- 2
- Woonoppervlakte
- 117 m2
- Perceel oppervlakte
- 133 m2
- Ligging
- Aan rustige weg, In centrum
- Bouwjaar
- 1890
- Isolatie
- Dakisolatie
- Type verwarming
- CV ketel
- Onderhoud buiten
- Goed
- Onderhoud binnen
- Goed tot uitstekend
- Voorzieningen
- Mechanische ventilatie, TV kabel, Glasvezel kabel
- Energieklasse
- B
- Soort dak
- Samengesteld dak
- Parkeer faciliteiten
- Betaald parkeren, Parkeervergunningen
- Woning type
- Woonhuis
Plattegronden
Uitzicht op straat
Zoek de locatie
kom jij kijken?
Een bezoek vertelt het meest. Onze makelaars nemen graag de tijd voor een rustige rondleiding.
Contacteer ons nu








































