Palamedesstraat 62, Haarlem
VerkochtBeschrijving
PUUR* wonen in een kindvriendelijke woonomgeving in deze lichte woning met zonnige tuin op het zuiden (met achterom). Dit sfeervolle gezinshuis heeft 3 slaapkamers en een open keuken. De zonnige achtertuin op het zuidwesten is voorzien van een vrijstaande berging en achterom en is vanaf 2015 grotendeels verbouwd.
Locatie
De woning ligt in het gewilde Vondelkwartier. Voor de kinderen zijn er tal van speeltuintjes, diverse scholen en kinderdagverblijven. Om de hoek vind je winkelcentrum Marsmanplein met lokale ondernemers, maar waar ook de meer bekende retailers en supermarkten zijn vertegenwoordigd. Stap op de fiets naar de gezellige markt in de Floressstraat of fiets binnen 15 minuten naar het centrum van Haarlem. Houd je van de natuur voor recreatie of om te sporten? Steek de Vondelweg over en je loopt zo recreatiegebied Spaarnwoude in. Of ontdek de Hekslootpolder, het pittoreske Spaarndam en Santpoort, het Schoterbos en het strand van Bloemendaal of Zandvoort. De woning is perfect bereikbaar met het openbaar vervoer gezien de goede busverbindingen om de hoek. Met de auto ben je binnen enkele minuten op de A9 richting diverse uitvalswegen.
Goed om te weten:
* Woonoppervlakte ca. 84 m² (zie meetrapport)
* Grotendeels verbouwd vanaf 2015
* Heerlijke lichte tussenwoning
* Badkamer komt uit 2023
* 6 Zonnepanelen
* Energielabel C
* Zonnige achtertuin met grote berging en achterom
* Goed onderhouden woning
* Gelegen in gezellige en kindvriendelijke buurt met veel voorzieningen
* Gemetselde fundering (geen houten palen)
* Vrij parkeren in de straat
* Dichtbij het groen van het Schoterbos en de Hekslootpolder
* Aanvaarding in overleg
Indeling
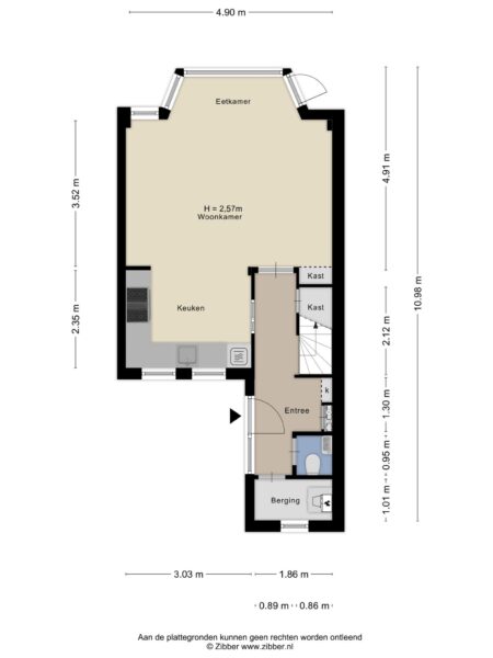
Begane grond: Entree, toilet, aan de voorzijde bevindt zich de wasruimte met CV-Ketel, meterkast, trapopgang naar de 1e verdieping met diepe trapkast. Woonkamer met ruime open keuken en aan de achterzijde het leefgedeelte met erker, deur naar tuin op het zuidwesten met berging en achterom.
1e verdieping:
overloop met vaste kast, slaapkamer aan de voorzijde met inbouwkast, slaapkamer aan de achterzijde, badkamer aan achterzijde met douche, wastafel en toilet.
2e verdieping: ruime overloop met bergruimte, slaapkamer met een velux dakraam en een dakkapel, vlizotrap naar vliering.
*ENGLISH TEXT*
PUUR* living in a child-friendly neighborhood in this bright home with sunny south-facing garden (with back entrance). This attractive family home has 3 bedrooms and an open kitchen. The sunny backyard facing southwest has a detached shed and back entrance and has been largely remodeled from 2015.
Location
The house is located in the popular Vondelkwartier. For the children there are numerous playgrounds, several schools and nurseries. Around the corner you will find shopping center Marsmanplein with local entrepreneurs, but where also the more famous retailers and supermarkets are represented. Get on your bike to the cozy market in the Floressstraat or bike within 15 minutes to the center of Haarlem. Love nature for recreation or exercise? Cross the Vondelweg and you can walk straight into recreational area Spaarnwoude. Or discover the Hekslootpolder, the picturesque Spaarndam and Santpoort, the Schoterbos and the beach of Bloemendaal or Zandvoort. The house is perfectly accessible by public transport given the good bus connections around the corner. By car you are within minutes on the A9 towards various highways.
Good to know:
* Living area approx. 84 m² (see measurement report).
* Largely renovated from 2015
* Lovely bright townhouse
* Bathroom is from 2023
* 6 Solar panels
* Energy label C
* Sunny backyard with large shed and back entrance.
* Well maintained house
* Located in cozy and child friendly neighborhood with many amenities
* Masonry foundation (no wooden posts)
* Free parking in the street
* Close to the greenery of the Schoterbos and Hekslootpolder
* Acceptance in consultation
Layout
Ground floor: Entrance, toilet, at the front is the laundry room with boiler, meter cupboard, staircase to the 1st floor with deep closet. Living room with spacious open kitchen and at the rear the living area with bay window, door to southwest facing garden with shed and back entrance.
1st floor:
landing with closet, front bedroom with built-in closet, rear bedroom, rear bathroom with shower, sink and toilet.
2nd floor: spacious landing with storage space, bedroom with velux skylight and dormer, loft ladder to attic.
Algemeen
- Plaats
- Haarlem
- Status
- Verkocht
- Buurt
- Van Aemstelbuurt
- Aantal kamers
- 5
- Aantal slaapkamers
- 3
- Aantal badkamers
- 1
- Woonoppervlakte
- 84 m2
- Perceel oppervlakte
- 114 m2
- Ligging
- Aan rustige weg, In woonwijk
- Bouwjaar
- 1950
- Isolatie
- Dakisolatie, Muurisolatie, HR glas
- Type verwarming
- CV ketel
- Onderhoud buiten
- Goed
- Onderhoud binnen
- Goed
- Voorzieningen
- Mechanische ventilatie, Glasvezel kabel, Zonnepanelen, Natuurlijke ventilatie
- Energieklasse
- C
- Soort dak
- Zadeldak
- Parkeer faciliteiten
- Openbaar parkeren
- Schuur/bergruimte
- 1
- Woning type
- Woonhuis






































