President Brandstraat 156, Amsterdam
Verkocht onder voorbehoudPrijs: € 465.000,-
Beschrijving
PUUR* Wonen
Gelegen aan een auto luw pleintje in Amsterdam, ligt dit sfeervolle en lichte appartement van 63,3 m² met een tuin van 35,33 m² en een praktische berging. Een woning met veel lichtinval, een open indeling en volop mogelijkheden om er een heerlijk thuis van te maken, ideaal voor wie op zoek is naar comfort, sfeer en flexibiliteit in de stad.
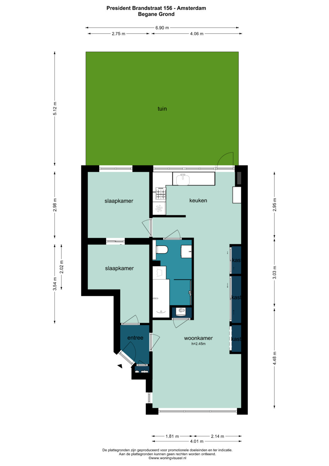
INDELING
Bij binnenkomst valt direct de lichte, open uitstraling van de woning op. De woonkamer aan de voorzijde heeft grote ramen waardoor het daglicht royaal naar binnen valt. In de woonkamer zijn inbouwkasten aanwezig; deze kunnen desgewenst worden aangepast of verwijderd om de ruimte verder te optimaliseren.
Aan de achterzijde bevindt zich de keuken, voorzien van een inbouwoven, koelkast en vriezer. Vanuit hier stap je direct de tuin in, een fijne plek om te ontspannen, buiten te eten of te genieten van de zon.
De slaapkamer aan de achterzijde biedt rust en privacy, met uitzicht op de tuin. Direct grenzend aan de slaapkamer ligt een tweede kamer, die zich uitstekend leent als werkplek, logeerkamer of kinderkamer.
De ruime badkamer is uitgerust met een ligbad, inloopdouche, wastafel met meubel en aansluiting voor de wasmachine.
Via de tuin bereik je de berging, handig voor fietsen of extra opslag. Deze berging is ook toegankelijk via de gezamenlijke ingang op de begane grond van het gebouw.
LOCATIE
De woning ligt in een prettige woonomgeving met alle voorzieningen binnen handbereik. Op loopafstand vind je verschillende winkels voor de dagelijkse boodschappen en gezellige horecaspots zoals Café Vrijdag, Coulisse, Loetje aan de Amstel en Bakhuys. Ook het Amstelstation en de Amstel liggen vlakbij, waardoor je snel in de stad of juist buiten de drukte bent.
Met de fiets ben je in enkele minuten in De Pijp of de Rivierenbuurt, waar je terecht kunt voor een ruim aanbod aan restaurants, cafés en boetiekjes. De combinatie van bereikbaarheid, levendigheid en wooncomfort maakt dit een heerlijke plek voor wie het beste van Amsterdam zoekt.
ERFPACHT
Koper is nog vrij om over te stappen naar eeuwigdurende voorwaarden, en de kosten zijn tot 15-10-2035 vooruitbetaald.
BIJZONDERHEDEN
* Woonoppervlakte: 63,3 m² (NEN 2580 meetrapport aanwezig);
* Tuin van 35,33 m²;
* Berging 5,2 m²;
* Ruime en lichte woonkamer met inbouwkasten;
* Slaapkamer aan de tuinzijde en mogelijkheid voor tweede kamer;
* Badkamer met ligbad, inloopdouche, wastafelmeubel en wasmachine-aansluiting;
* Keuken met inbouwoven, koelkast en vriezer;
* Houten vloer in de woonruimte;
* Berging bereikbaar via tuin en algemene ingang;
* Erfpacht afgekocht tot 2035;
* Energielabel C;
* VvE-bijdrage: € 140,- per maand;
* Veel mogelijkheden om de woning naar eigen smaak en wensen aan te passen;
* Oplevering in overleg.
***English***
Kenmerken
- Koopprijs
- € 465.000,-
- Plaats
- Amsterdam
- Status
- Verkocht onder voorbehoud
- Buurt
- Transvaalbuurt West
- Aantal kamers
- 3
- Aantal slaapkamers
- 2
- Aantal badkamers
- 1
- Woonoppervlakte
- 63 m2
- Ligging
- In woonwijk
- Bouwjaar
- 1985
- Isolatie
- Dakisolatie, Muurisolatie, Vloerisolatie, Dubbelglas
- Type verwarming
- CV ketel
- Onderhoud buiten
- Redelijk
- Onderhoud binnen
- Redelijk
- Voorzieningen
- Mechanische ventilatie, TV kabel, Natuurlijke ventilatie
- Soort dak
- Plat dak
- Parkeer faciliteiten
- Betaald parkeren, Parkeervergunningen
- Schuur/bergruimte
- 1
- Woning type
- Appartement
Plattegronden
Uitzicht op straat
Zoek de locatie
kom jij kijken?
Een bezoek vertelt het meest. Onze makelaars nemen graag de tijd voor een rustige rondleiding.
Contacteer ons nu





























