Prins Clausstraat 71, Haarlem
BeschikbaarPrijs: € 750.000,-
Beschrijving
PUUR* wonen: midden in de Koninginnebuurt in deze zeer sfeervolle en lichte 5-kamer woning (ca. 114 m2, volgens nieuwste NEN richtlijnen) met een zonnige en fraai aangelegde achtertuin, voorzien van stenen schuur en achterom. Ook beschikt de woning over vrij uitzicht aan de voorzijde. De woning ligt aan een rustige weg in een kindvriendelijke buurt, op loopafstand van zowel de stad als de prachtige Haarlemmerhout. Dankzij de uitbouw op de begane grond is er een ruime en lichte leefruimte ontstaan, gericht op de gezellige achtertuin, een heerlijke plek om te ontspannen, te eten met familie of te borrelen met vrienden.
De woning is goed onderhouden en daarom snel te betrekken. De ligging is ideaal: dicht bij uitvalswegen richting Amsterdam en Schiphol, op loopafstand van de bruisende binnenstad, diverse basisscholen en middelbare scholen, en binnen 25 minuten fietsen sta je op het strand.
Kom kijken, voel de sfeer en laat je verrassen door het pure woongenot dat deze bijzondere plek te bieden heeft.
Indeling:
Begane grond: entree/gang met toiletruimte en trapkast/garderoberuimte, open keuken aan de voorzijde met inbouwapparatuur, tuingerichte woonkamer met moderne schuifpui naar de tuin. Zonnige en gezellige tuin met stenen berging en achterom.
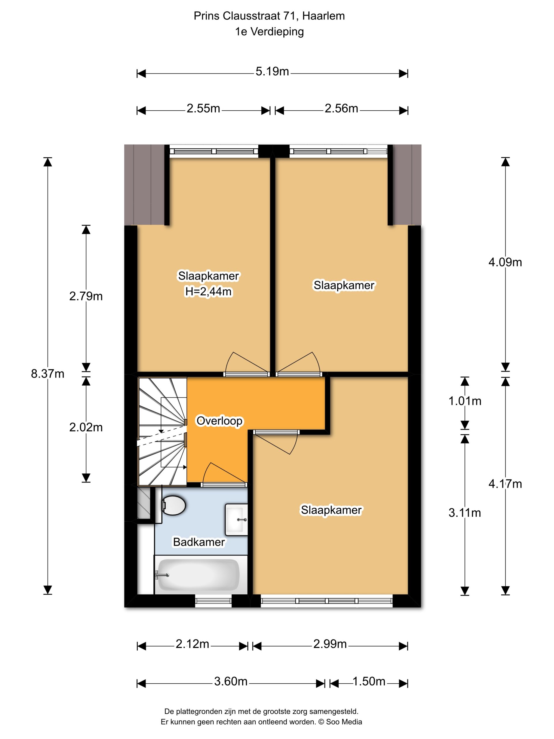
1e Verdieping: overloop, slaapkamer aan de voorzijde, moderne badkamer met ligbad/douche, toilet en wastafelmeubel, 2 slaapkamers aan de achterzijde met brede dakkapel.
2e Verdieping: overloop met aansluiting voor wasapparatuur, opstelling c.v.-ketel en bergruimte, slaapkamer met dakkapel en Velux dakraam en bergruimte achter knieschot.
Zie voor de indeling en de maatvoering de plattegronden.
Pluspunten:
* Zeer sfeervolle en eigentijdse gezinswoning (ca. 114 m2; zie meetrapport)
* Rustig gelegen in de Koninginnebuurt, op loopafstand van de binnenstad
* Zeer goed verzorgde sfeervolle woning
* Ruime living door uitbouw op de begane grond
* Heerlijk zonnige en fraai aangelegde tuin (ca. 40 m2) met berging en achterom
* Marmoleum vloeren door de gehele woning
* Moderne keuken met inbouwapparatuur en gerenoveerde toilet (2022)
* Moderne badkamer
* Goed geïsoleerde woning
* Centrale verwarming; Intergas HRE combiketel (2015)
* Gratis parkeren
* Grote Albert Heijn (Westergracht) en Vomar op loopafstand
* Oplevering in overleg
Een brochure kunt u downloaden via onze eigen website.
*ENGLISH BELOW*
PUUR* living: in the heart of the Koninginnebuurt neighbourhood, in this very attractive and bright 5-room house (approx. 114 m2, according to the latest NEN guidelines) with a sunny and beautifully landscaped back garden, equipped with a stone shed and back entrance. The house also has an unobstructed view at the front. The house is located on a quiet road in a child-friendly neighbourhood, within walking distance of both the city and the beautiful Haarlemmerhout. Thanks to the extension on the ground floor, a spacious and bright living space has been created, facing the cosy back garden, a wonderful place to relax, eat with family or have drinks with friends.
The house is well maintained and therefore ready to move into. The location is ideal: close to roads leading to Amsterdam and Schiphol Airport, within walking distance of the bustling city centre, various primary and secondary schools, and within 25 minutes by bicycle you are on the beach.
Come and see for yourself, feel the atmosphere and be surprised by the pure living pleasure that this special place has to offer.
Layout:
Ground floor: entrance/hallway with toilet and stair cupboard/wardrobe space, open kitchen at the front with built-in appliances, garden-facing living room with modern sliding doors to the garden. Sunny and cosy garden with stone shed and back entrance.
First floor: landing, bedroom at the front, modern bathroom with bath/shower, toilet and washbasin, two bedrooms at the rear with wide dormer window.
2nd floor: landing with connection for washing machine, central heating boiler and storage space, bedroom with dormer window and Velux skylight and storage space behind knee wall.
See the floor plans for the layout and dimensions.
Advantages:
* Very attractive and contemporary family home (approx. 114 m2; see measurement report)
* Quiet location in the Koninginnebuurt, within walking distance of the city centre
* Very well-maintained, attractive home
* Spacious living room due to extension on the ground floor
* Lovely sunny and beautifully landscaped garden (approx. 40 m2) with storage shed and back entrance
* Marmoleum flooring throughout the house
* Modern kitchen with built-in appliances and renovated toilet (2022)
* Modern bathroom
* Well-insulated home
* Central heating; Intergas HRE combi boiler (2015)
* Free parking
* Large Albert Heijn (Westergracht) and Vomar within walking distance
* Delivery in consultation
A brochure can be downloaded from our website.
Kenmerken
- Koopprijs
- € 750.000,-
- Plaats
- Haarlem
- Status
- Beschikbaar
- Buurt
- Koninginnebuurt
- Aantal kamers
- 5
- Aantal slaapkamers
- 4
- Aantal badkamers
- 1
- Woonoppervlakte
- 114 m2
- Perceel oppervlakte
- 109 m2
- Ligging
- Aan rustige weg, In woonwijk
- Bouwjaar
- 1988
- Isolatie
- Dakisolatie, Vloerisolatie, Gedeeltelijk dubbelglas
- Type verwarming
- CV ketel
- Onderhoud buiten
- Goed
- Onderhoud binnen
- Goed
- Voorzieningen
- Schuifpui, Dakraam
- Energieklasse
- C
- Soort dak
- Zadeldak
- Parkeer faciliteiten
- Openbaar parkeren
- Schuur/bergruimte
- 1
- Woning type
- Woonhuis
Plattegronden
Uitzicht op straat
Zoek de locatie
kom jij kijken?
Een bezoek vertelt het meest. Onze makelaars nemen graag de tijd voor een rustige rondleiding.
Contacteer ons nu














































