Prof. van Vlotenweg 10, Bloemendaal
VerkochtBeschrijving
Een herenhuis met karakter
In een autoluwe laan vind je dit karaktervolle, goed onderhouden herenhuis met voor- en zonnige achtertuin. Het herenhuis is in ca. 1903 gebouwd. Zodra je binnenstapt geniet je direct van de sfeer die je in dit hele huis terug gaat vinden. Dit is een huis met ruimte, hoge plafonds en mooie authentieke details. Echt een plek waar je meteen voelt dat er jarenlang met liefde wordt gewoond en waar je zelf ook jaren wilt gaan wonen.
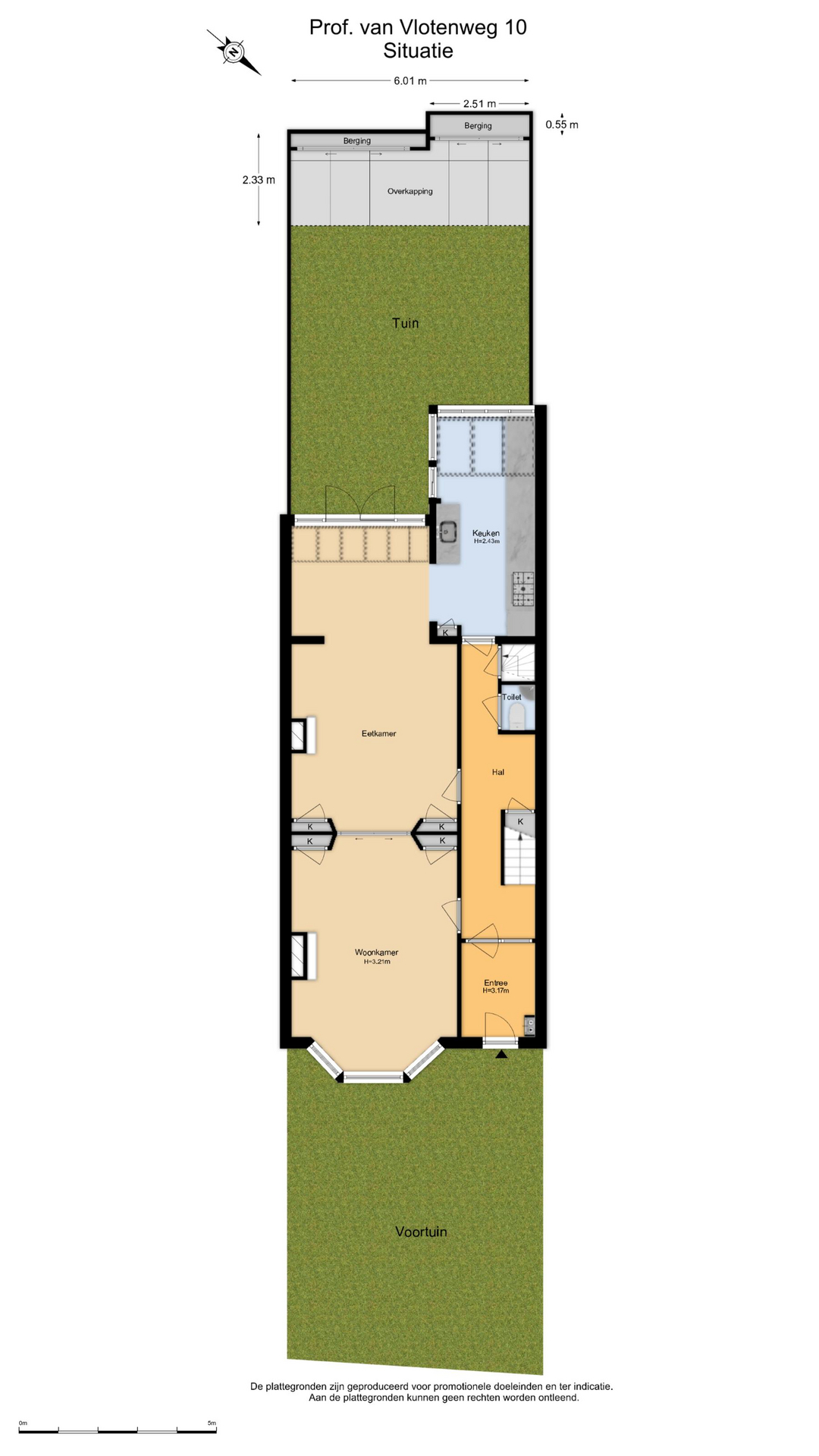
Op de parterre vind je een riante woonkamer en suite met een serre en een uitgebouwde keuken. Op de 1e en 2e verdieping zijn in totaal 5 slaapkamers en 2 badkamers. En zowel op de vliering als in de kelder is voldoende bergruimte aanwezig.
De achtertuin is heerlijk zonnig en is gelegen op het zuidwesten, waardoor je hier bijna de hele dag zon hebt. De tuin is voorzien van een zonnig terras en een gezellige veranda over de volle breedte van de tuin. In de diepe voortuin vind je genoeg ruimte om fietsen neer te zetten.
Zodra je de deur uitstapt, loop je gelijk naar dorpscentrum waar je uitstekend terecht kunt voor je dagelijkse boodschappen en waar diverse boetieks en restaurants vindt. Het NS-Station van Bloemendaal en Overveen met o.a. directe verbinding naar Haarlem, Amsterdam, Alkmaar en Zandvoort liggen dichtbij. Maak een ontspannen wandeling in het bos of in het mooie wandelgebied van Caprera, bekend om zijn unieke openluchttheater. Fiets eenvoudig naar het stadshart van Haarlem, naar het strand en de duinen en/of naar één van de andere vele natuurgebieden w.o. het Nationaal Park Kennemerduinen waar je een heerlijke dag aan duinmeer het Wed kunt beleven. En voor wie de auto wil pakken, de uitvalswegen naar o.a. Amsterdam, Alkmaar en Den Haag zijn makkelijk bereikbaar. Ook voor de kinderen is dit een fijne locatie om te wonen. Op korte loop- en fietsafstand vind je divers basis, voortgezet en hoger onderwijs en vele sportfaciliteiten. Dit herenhuis combineert karakter, ruimte en een centrale ligging. Perfect voor wie comfortabel en stijlvol wil wonen met alles binnen handbereik.
Indeling:
Parterre: entree, vestibule met marmeren vloer, ornamenten plafond en glas-in-lood, ruime hal met berken triplex vloer, trapkast, toilet met fontein en trap naar kelder, sfeervolle woonkamer en suite voorzien van erker met glas-in-lood bovenramen, ornamenten plafond, twee originele schouwen waarvan 1 met houtkachel, houten vloer, suitestel met glas-in-lood schuifdeuren, 4 vaste kasten en serre met lichtstraat en openslaande deuren naar tuin, half open nette keuken met servieskast en deur naar tuin, via hal trap naar….
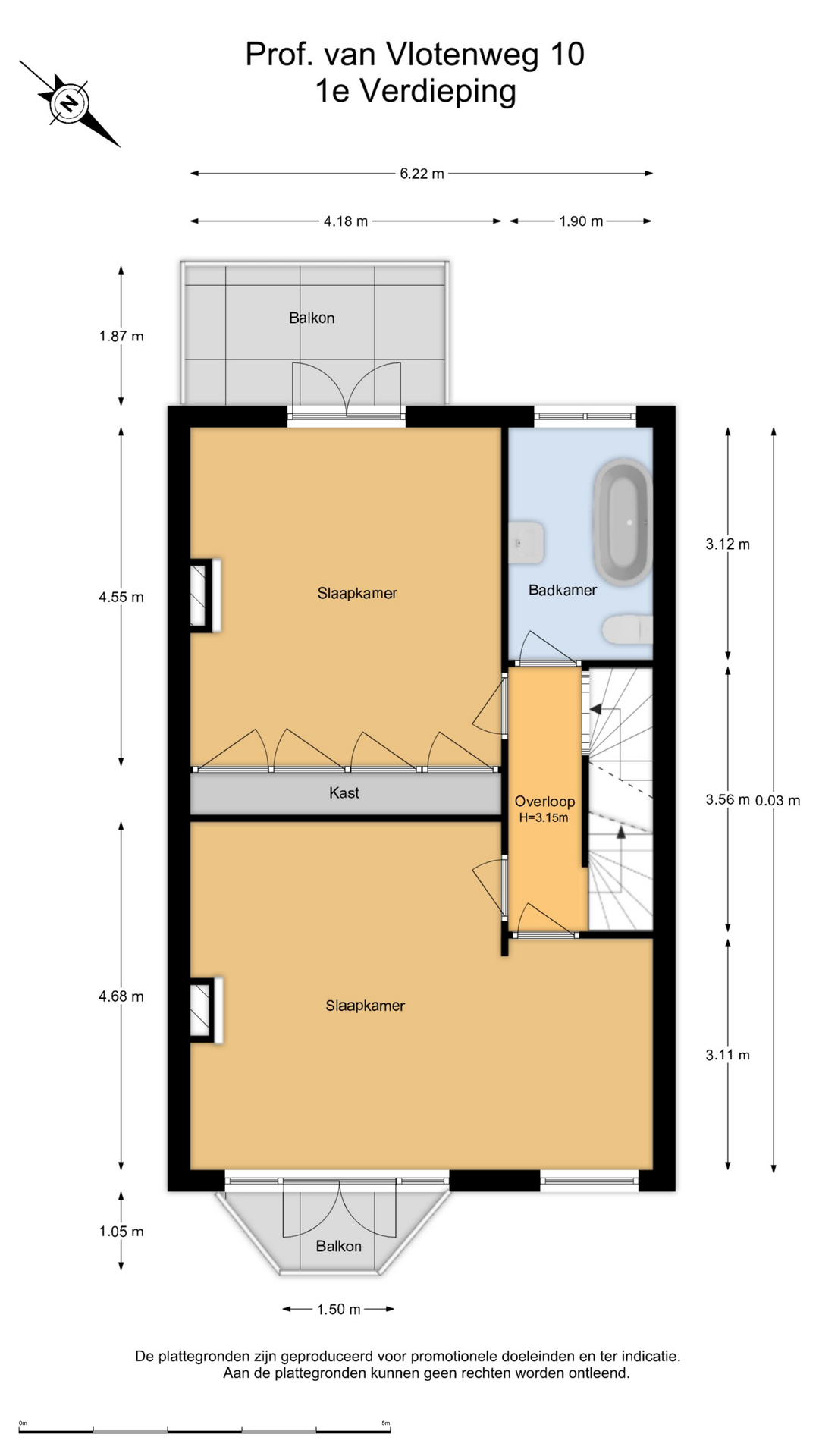
1e Verdieping: overloop, zeer royale slaapkamer aan voorzijde (eenvoudig terug te brengen naar 2 kamers) met authentieke schouw, berken triplex vloer en openslaande deuren naar balkon, slaapkamer aan achterzijde voorzien van houten vloer, schouw, royale kastenwand en openslaande deuren naar dakterras, badkamer voorzien van granitovloer, orginele tegelwand, ligbad op pootjes, wastafel en toilet met bidetdouche, via overloop trap naar….
2e Verdieping: overloop met houten vloer, dakraam, bergruimte en toegang naar bergvliering, slaapkamer aan voorzijde met houten vloer en dakraam, slaapkamer aan achterzijde voorzien van berken triplex vloer en dakkapel, 2e badkamer met douche, wastafel, wasmachine/droger aansluiting en dakraam
Bijzonderheden:
* Woonoppervlakte ca. 201 m2, inhoud ca. 833 m3 en 217 m2 eigen grond
* Royaal herenhuis met 5 slaapkamers en 2 badkamers
* Hoge plafonds
* Ruime maatvoering
* Stijlvolle authentieke details
* Zonnige tuin met achterom
* Voor indeling en maatvoering zie plattegronden
* Oplevering in overleg
Algemeen
- Plaats
- Bloemendaal
- Status
- Verkocht
- Buurt
- Bloemendaal
- Aantal kamers
- 7
- Aantal slaapkamers
- 5
- Aantal badkamers
- 2
- Woonoppervlakte
- 201 m2
- Perceel oppervlakte
- 217 m2
- Ligging
- Aan rustige weg, In woonwijk
- Bouwjaar
- 1903
- Isolatie
- Vloerisolatie, Gedeeltelijk dubbelglas, Voorzetramen
- Type verwarming
- CV ketel, Houtkachel
- Onderhoud buiten
- Goed
- Onderhoud binnen
- Goed
- Voorzieningen
- TV kabel, Buitenzonwering, Rookkanaal, Dakraam
- Energieklasse
- D
- Soort dak
- Zadeldak
- Parkeer faciliteiten
- Openbaar parkeren
- Woning type
- Woonhuis


















































