Rhijnvis Feithstraat 16-1, Amsterdam
VerkochtBeschrijving
PUUR* Wonen!
Welkom in dit super lichte en goed gelegen hoekappartement op de Rhijnvis Feithstraat. Dit appartement is handig ingedeeld met een keuken aan de voorzijde en 2 kamers welke uitkijken op de groene Wilheminastraat.
Naast dat de woning goed geïsoleerd is, is er een klein terrasje aan de achterzijde en Frans balkon aan de voorzijde met ochtendzon.
Nieuwsgierig geworden? Neem dan snel contact met ons op!
INDELING
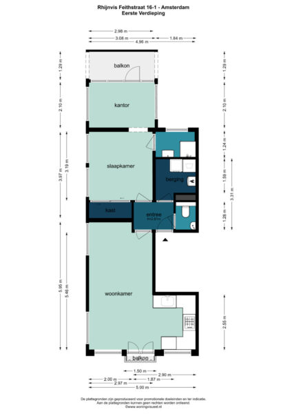
Via het goed onderhouden gezamenlijke trappenhuis komt u in de hal van de woning die toegang biedt tot alle vertrekken.
Aan de voorzijde is de door de hoekligging een licht overgoten woonkamer met open-keuken. Deze keuken die uitkijkt op de Rhijnvis Feithstraat is voorzien van SMEG keuken apparatuur met een 5-pits gasfornuis en afzuigkap. Door de hoge raampartijen is deze kant van het appartement de hele dag voorzien van daglicht maar kan ‘s avonds omgetoverd worden tot een sfeervolle woonkamer. Terug bij de hal bereikt u de slaapkamer met een ruim 2-persoons bed en inbouwkast, ook deze kamer is voorzien van 2 grote ramen. Via de slaapkamer bereikt u de badkamer die voorzien is van een douchecabine en een openslaand raam. Achter de slaapkamer is een ruimte te vinden de momenteel gebruikt wordt als atelier, deze ruimte is natuurlijk ook als 2 de slaapkamer of werkkamer te gebruiken en heeft toegang tot een klein terras op het zuiden. Niet te vergeten om te benoemen is dat deze woning is voorzien van een separaat toilet en een zeer ruime opbergkast waar naast de droger en wasmachine echt veel ruimte is voor koffers of keuken voorraad.
OMGEVING
Gelegen in het gezellige Oud West in een dwarsstraat van de Wilhelminastraat en de Kanaalstraat op loopafstand van het Vondelpark. In deze leuke buurt zijn vele (delicatessen)winkels, restaurants, koffietentjes en gezellige cafés te vinden met voor ieder wat wils. Het populaire cultureel en culinair centrum De Hallen bevindt zich op slechts 5 minuten fietsen. De Ten Kate markt, Overtoom en Bilderdijkkade zijn op loopafstand gelegen voor de dagelijkse boodschappen. Het Vondelpark met allerlei voorzieningen voor sport en ontspanning ligt op 3 minuten loopafstand, daarnaast is het slechts 10 minuten fietsen naar het Centrum of het Museumplein. binnen 5 minuten bent u al op de A10 met opties biedt naar de A4 of de A5. Op de overtoom zijn tramhaltes te vinden die u al snel naar uw gewenste locatie kunnen brengen, zo kunt u met de tram Amsterdam Centraal bereiken binnen 17 minuten.
BIJZONDERHEDEN
* Eigen grond;
* Hoekwoning;
* Veel daglicht;
* Veel bergruimte;
* Energielabel C;
* Geheel voorzien van dubbele beglazing;
* Atelier/werkkamer;
* Klein terras op het zuidwesten;
* Naast het Vondelpark;
* Actieve VVE met € 150,- service kosten per maand;
* Het huiskamer festival jaarlijks in de straat:
Algemeen
- Plaats
- Amsterdam
- Status
- Verkocht
- Buurt
- Cremerbuurt West
- Aantal kamers
- 3
- Aantal slaapkamers
- 2
- Woonoppervlakte
- 52 m2
- Perceel oppervlakte
- 52 m2
- Ligging
- Aan rustige weg
- Type verwarming
- CV ketel
- Onderhoud buiten
- Goed
- Onderhoud binnen
- Goed
- Voorzieningen
- Mechanische ventilatie
- Energieklasse
- C
- Soort dak
- Plat dak
- Parkeer faciliteiten
- Openbaar parkeren, Betaald parkeren, Parkeervergunningen
- Schuur/bergruimte
- 3
- Woning type
- Appartement
























