Ritmeesterstraat 9, Haarlem
BeschikbaarPrijs: € 1.150.000,-
Beschrijving
PUUR* wonen aan de Ritmeesterstraat 9. Een mooie combinatie van comfort, licht en ruimte aan de rand van het centrum.
Een ruime, sfeervolle en heerlijk lichte gezinswoning op een unieke plek in Haarlem: welkom op het monumentale en stadse Ripperdaterrein! Hier woon je in een gezellige en kindvriendelijke buurt met veel jonge gezinnen, vlakbij de bruisende binnenstad en toch in een rustige, autoluwe omgeving.
Deze royale woning van ca. 152 m2 is gesitueerd in de voormalige stallen, waar de charme van de historische bouwstijl prachtig samengaat met het comfort van een moderne woning. Dankzij de hoge plafonds en de grote raampartijen geniet je overal van een zee aan licht.
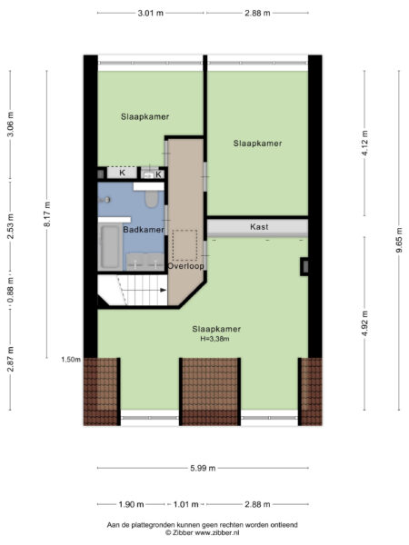
De indeling is perfect voor gezinnen: een ruime en lichte living met luxe open keuken, vier slaapkamers, een extra zit-/speelruimte en volop praktische bergruimte. In 2021 is er smaakvol verbouwd: een nieuwe, hoogwaardige keuken met inbouwapparatuur en een extra slaapkamer met walk-in closet op de tussenverdieping.
De woning is uitstekend onderhouden en direct te betrekken.
En dan de tuin… zonnig, gezellig en een verlengstuk van de living. Dé plek om met een kop koffie te ontspannen of lange zomeravonden te genieten van een barbecue met vrienden en familie.
Laat je niet misleiden door de monumentale status: de woning is zeer goed geïsoleerd en beschikt over energielabel A+. Comfortabel wonen met een lage energierekening dus!
De buurt maakt het plaatje compleet: autoluw, groen en kindvriendelijk. Voor de dagelijkse boodschappen en een goede kop koffie kun je terecht bij de buurtwinkels om de hoek. Voor ontspanning wandel je naar de Haarlemmer Kweektuin of fiets je zo naar Nationaal Park Zuid-Kennemerland. Parkeren? Geen zorgen: je hebt je eigen vaste plek in de nabijgelegen Cronjé garage.
Een heerlijke plek om te wonen, met een leuke mix van bewoners en ideaal voor (jonge) gezinnen en expats die houden van ruimte, licht en stadse gezelligheid.
Goed om te weten
* Zeer sfeervolle, lichte en comfortabele gezinswoning
* Woonoppervlak ca. 152 m2 (zie meetrapport)
* Energielabel A+ (meer wooncomfort en meer leencapaciteit)
* Goed onderhouden woning en makkelijk te betrekken
* Fijne stadstuin op het westen
* Veel lichtinval door grote raampartijen en hoog plafond (ca. 4,60m!!)
* Ruime living met luxe eiland keuken (2021)
* 4 Slaapkamers en extra zit-/speelplek
* Veel bergruimte in de woning
* Begane grond v.v. vloerverwarming
* Dit is één van de ruimste woningen in het project
* Privé parkeerplaats in de afgesloten parkeergarage (bij de prijs inbegrepen)
* Rustige, autoluwe en zeer kindvriendelijke woonomgeving
* Op loopafstand van diverse buurtwinkels, het station en bruisende centrum
* Actieve VvE, servicekosten ca. € 283,- p/mnd (incl. parkeerplaats)
* Aanvaarding in overleg
*ENGLISH*
PUUR* living at Ritmeesterstraat 9. A beautiful combination of comfort, light, and space on the edge of the city center.
A spacious, charming, and wonderfully bright family home in a unique location in Haarlem: welcome to the historic and urban Ripperdaterrein! Here you’ll live in a pleasant and family-friendly neighborhood with many young families, close to the bustling city center, yet in a quiet, car-free environment.
This spacious home of approximately 152 m² is situated in the former stables, where the charm of the historic architectural style blends beautifully with the comfort of a modern home. Thanks to the high ceilings and large windows, you’ll enjoy a wealth of light throughout.
The layout is perfect for families: a spacious and bright living room with a luxurious open-plan kitchen, four bedrooms, an additional sitting/playroom, and plenty of practical storage space. Tastefully renovated in 2021, it features a new, high-quality kitchen with built-in appliances and an additional bedroom with a walk-in closet on the mezzanine.
The home is excellently maintained and ready to move into.
And then there’s the garden… sunny, cozy, and an extension of the living room. The perfect place to relax with a cup of coffee or enjoy long summer evenings with friends and family at a barbecue.
Don’t be fooled by its listed status: the house is very well insulated and has an A+ energy label. Comfortable living with low energy bills!
The neighborhood completes the picture: car-free, green, and child-friendly. For daily groceries and a good cup of coffee, you can visit the local shops around the corner. For relaxation, you can walk to the Haarlemmer Kweektuin or cycle to Zuid-Kennemerland National Park. Parking? No worries: you have your own designated space in the nearby Cronjé garage.
A wonderful place to live, with a nice mix of residents and ideal for (young) families and expats who appreciate space, light, and the coziness of the city.
Good to know
* A very attractive, bright, and comfortable family home
* Living area approx. 152 m² (see measurement report)
* Energy label A+ (more living comfort and increased borrowing capacity)
* Well-maintained home and easy to move into
* Lovely west-facing city garden
* Abundant natural light thanks to large windows and high ceilings (approx. 4.60 m!!)
* Spacious living room with luxurious island kitchen (2021)
* 4 bedrooms and an additional seating/play area
* Ample storage space throughout the home
* Ground floor with underfloor heating
* This is one of the most spacious homes in the project
* Private parking space in the secure parking garage (included in the price)
* Quiet, car-free, and very child-friendly neighborhood
* Within walking distance of various local shops, the train station, and the vibrant city center
* Active homeowners association (VvE), service costs approx. € 283,- per month (including parking space)
* Acceptance upon agreement
Kenmerken
- Koopprijs
- € 1.150.000,-
- Plaats
- Haarlem
- Status
- Beschikbaar
- Buurt
- Ripperdabuurt
- Aantal kamers
- 6
- Aantal slaapkamers
- 4
- Aantal badkamers
- 1
- Woonoppervlakte
- 152 m2
- Ligging
- Aan rustige weg, In woonwijk, Beschutte ligging
- Bouwjaar
- 1884
- Isolatie
- Volledig geïsoleerd
- Type verwarming
- CV ketel, Vloerverwarming gedeeltelijk
- Onderhoud buiten
- Goed
- Onderhoud binnen
- Goed
- Voorzieningen
- Glasvezel kabel, Balansventilatie
- Energieklasse
- A+
- Soort dak
- Samengesteld dak
- Parkeer faciliteiten
- Parkeergarage
- Woning type
- Woonhuis
Plattegronden
Uitzicht op straat
Zoek de locatie
kom jij kijken?
Een bezoek vertelt het meest. Onze makelaars nemen graag de tijd voor een rustige rondleiding.
Contacteer ons nu























































