Robert Kochlaan 602, Haarlem
BeschikbaarPrijs: € 400.000,-
Beschrijving
PUUR* wonen aan de Robert Kochlaan in dit lichte en comfortabele appartement met waanzinnig uitzicht.
Midden in een rustige, groene straat van Haarlem-Zuid ligt dit heerlijke 3-kamerappartement op een plek waar comfort en rust samenkomen. Robert Kochlaan 602 is een woning die je meteen omarmt: licht, ruim en met een fijne sfeer die je doet verlangen naar thuiskomen.
De woonkamer is royaal en voorzien van grote ramen die het appartement overladen met daglicht en een prachtig uitzicht bieden over het groen van de omgeving. Het balkon is een ideale plek om in alle rust van een kop koffie te genieten of de avondzon (westen) op te vangen. De keuken is netjes en functioneel, en de twee slaapkamers bieden voldoende ruimte voor een gezin, thuiskantoor of logeerkamer.
Goed om te weten:
*Woonoppervlak 97m2 (NEN2580)
*Royale, lichte ruimtes met veel daglicht
*Actieve VvE (246,- pm, inclusief voorschot stookkosten)
*Ruim balkon op het westen
*Energielabel C
*Gelegen in een rustige, kindvriendelijke en groene straat
*Nabij winkels (winkelcentrum Schalkwijk) , scholen én het bruisende centrum van Haarlem
*Mogelijkheden startersvrijstelling
*Perfect voor starters, stellen of als fijn pied-à-terre
*Oplevering kan snel
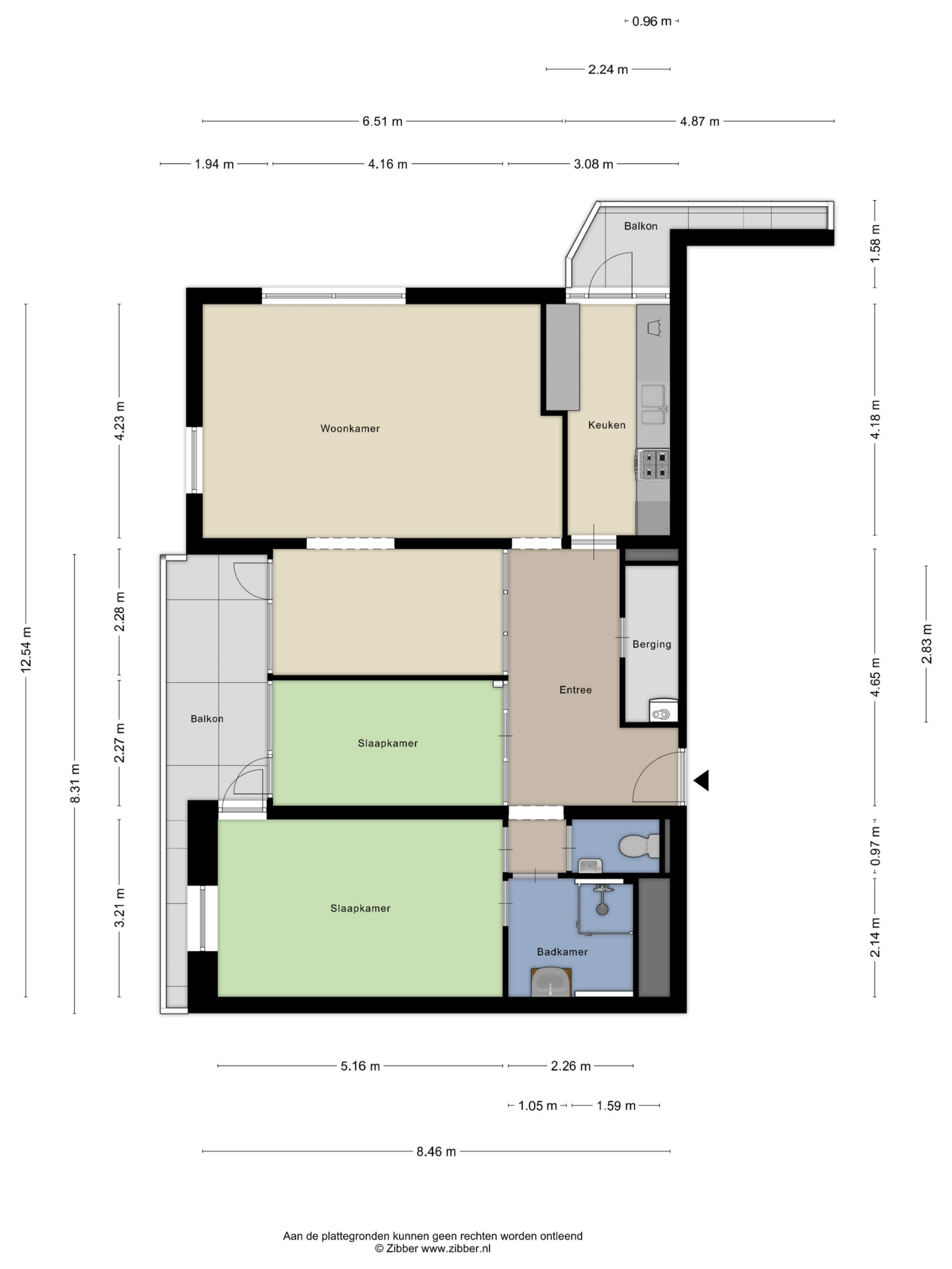
Indeling:
Parterre: Bellentableau, postvakken en toegang tot de berging
7de verdieping: ruime hal, vanuit hier toegang tot alle kamers, Links seperaat toilet en badkamer met douche, wastafel en radiator. Beide slaapkamers hebben toegang tot het balkon. Gesloten keuken met inbouwapparatuur, toegang tot het tweede balkon en extra berg/stookruimte met boiler en ruimte voor wasmachine.
Woonkamer met fantastisch uitzicht en veel licht door de grote raampartijen. Ook vanuit hier toegang tot het balkon.
Locatie:
In deze buurt ervaar je het beste van twee werelden: een rustige, groene omgeving én alles wat Haarlem te bieden heeft binnen handbereik. Het centrum, de duinen en het strand zijn eenvoudig bereikbaar, net als de uitvalswegen naar Amsterdam, Schiphol en Alkmaar.
Een fijn, licht appartement met karakter, rust en een toplocatie – Robert Kochlaan 602 nodigt uit tot wonen en genieten.
*ENGLISH BELOW*
PUUR* living on Robert Kochlaan in this bright and comfortable flat – your green oasis in Haarlem-Zuid
This delightful 3-room flat is located in the middle of a quiet, green street in Haarlem-Zuid, in a place where comfort and tranquillity come together. Robert Kochlaan 602 is a home that immediately embraces you: light, spacious and with a pleasant atmosphere that makes you long to come home.
The living room is spacious and has large windows that flood the flat with daylight and offer a beautiful view of the green surroundings. The balcony is an ideal place to enjoy a cup of coffee in peace or catch the evening sun (west). The kitchen is neat and functional, and the two bedrooms offer enough space for a family, home office or guest room.
Good to know:
*Living area 97m2 (NEN2580)
*Spacious, bright rooms with plenty of natural light
*Active owners’ association (246 per month, including advance heating costs)
*Spacious west-facing balcony
*Energy label C
*Located in a quiet, child-friendly and green street
*Close to shops (Schalkwijk shopping centre), schools and the bustling centre of Haarlem
*Possibility of starter exemption
*Perfect for first-time buyers, couples or as a nice pied-à-terre
*Quick delivery possible
Layout:
Ground floor: Doorbell panel, post boxes and access to the storage room.
7th floor: spacious hall, from here access to all rooms, separate toilet and bathroom with shower, washbasin and radiator on the left. Both bedrooms have access to the balcony. Closed kitchen with built-in appliances, access to the second balcony and extra storage/boiler room with boiler and space for washing machine.
Living room with fantastic views and lots of light through the large windows. Access to the balcony from here as well.
Location:
In this neighbourhood, you experience the best of both worlds: a quiet, green environment and everything Haarlem has to offer within easy reach. The city centre, the dunes and the beach are easily accessible, as are the roads to Amsterdam, Schiphol and Alkmaar.
A lovely, light apartment with character, tranquillity and a prime location – Robert Kochlaan 602 invites you to live and enjoy.
Kenmerken
- Koopprijs
- € 400.000,-
- Plaats
- Haarlem
- Status
- Beschikbaar
- Buurt
- Geneesherenbuurt
- Aantal kamers
- 3
- Aantal slaapkamers
- 2
- Aantal badkamers
- 1
- Woonoppervlakte
- 97 m2
- Ligging
- Aan rustige weg, In woonwijk, Vrij uitzicht
- Bouwjaar
- 1971
- Isolatie
- Dakisolatie, Dubbelglas
- Type verwarming
- Blokverwarming
- Onderhoud buiten
- Goed
- Onderhoud binnen
- Goed
- Voorzieningen
- Mechanische ventilatie, TV kabel, Natuurlijke ventilatie
- Energieklasse
- C
- Soort dak
- Plat dak
- Parkeer faciliteiten
- Openbaar parkeren
- Schuur/bergruimte
- 1
- Woning type
- Appartement
Plattegronden
Uitzicht op straat
Zoek de locatie
kom jij kijken?
Een bezoek vertelt het meest. Onze makelaars nemen graag de tijd voor een rustige rondleiding.
Contacteer ons nu






































