Schoterweg 68A, Haarlem
BeschikbaarPrijs: € 475.000,-
Beschrijving
PUUR* wonen in deze goed onderhouden bovenwoning (thans ingedeeld als 2 appartementen) met een heerlijk dakterras, om de hoek van de gezellige Cronjéstraat. De woning beschikt over lichte en sfeervolle ruimtes. In de presentatie zijn enkele ingerichte sfeerimpressies opgenomen die goed laten zien hoe de ruimtes tot hun recht kunnen komen. Hierdoor krijg je direct een prettig beeld van de mogelijkheden en de indeling.
Locatie
De woning heeft een perfecte ligging: de levendige Cronjé-winkelstraat, diverse horecagelegenheden en sportclubs bevinden zich op loopafstand. Ook het bruisende centrum van Haarlem, de Schotersingel, het sfeervolle Kleverpark, het centraal station en meerdere busverbindingen zijn snel te bereiken, zowel te voet als per fiets. Via het Kleverpark fiets je bovendien zo naar het Bloemendaalse strand. Dankzij de centrale positie – tussen de uitvalswegen (A9), de randweg en Bloemendaal aan Zee (slechts 25 minuten fietsen) – is deze woonomgeving bijzonder geliefd.
Goed om te weten:
* Zeer lichte dubbele bovenwoning
* Woonoppervlakte ca. 100m2 (zie meetrapport)
* thans ingericht als 2 appartementen
* Dakterras van ca. 9m2
* Energielabel D
* Parkeren met vergunning
* Gelegen in een rustige buurt, met diverse winkels en sportclubs op loopafstand
* NS station op ca. 5 minuten loopafstand
* Haarlem centrum, strand en duinen op fietsafstand
* Oplevering kan snel
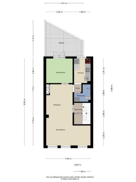
Indeling;
Begane grond: hal met meterkast en trapopgang
1e verdieping; overloop met toegang naar de L-vormige woonkamer, aan de achterzijde bevind zich de slaapkamer met openslaande deuren naar het zonneterras op het oosten. Dichte keuken aan de achterzijde met inbouwapparatuur. Badkamer voorzien van toilet, douche en wastafelmeubel.
2e verdieping; Overloop, woonkamer met eetgedeelte en trap naar de vide. Slaapkamer aan de achterzijde. Dichte keuken met inbouwapparatuur, badkamer voorzien van toilet, douche en wastafelmeubel.
Vide over de gehele breedte van de woning.
Zie voor de indeling en maatvoering de plattegronden.
De brochure kan je downloaden via onze eigen website.
*ENGLISH TEXT*
PUUR* living in this well-maintained upper-level home (currently divided into two apartments) with a lovely roof terrace, just around the corner from the charming Cronjé street. The apartment offers bright and inviting spaces. The presentation includes a number of furnished artificial impression images that provide a clear sense of how the rooms can be arranged and utilized, giving you an immediate feel for the layout and possibilities.
Location
The property is perfectly located: the lively Cronjé shopping street, various restaurants and sports clubs are within walking distance. The bustling center of Haarlem, the Schotersingel, the atmospheric Kleverpark, the central station, and several bus connections are also within easy reach, both on foot and by bike. You can also cycle to the beach at Bloemendaal via the Kleverpark. Thanks to its central location—between the highways (A9), the ring road, and Bloemendaal aan Zee (only a 25-minute bike ride)—this residential area is particularly popular.
Good to know:
* Very bright double upper apartment
* Living area approx. 100m² (see measurement report)
* Currently furnished as 2 apartments
* Roof terrace of approx. 9m2
* Energy label D
* Parking with permit
* Located in a quiet neighborhood, with various shops and sports clubs within walking distance
* Train station approx. 5 minutes’ walk away
* Haarlem city center, beach, and dunes within cycling distance
* Delivery can be arranged quickly
Layout;
Ground floor: hall with meter cupboard and staircase.
First floor: landing with access to the L-shaped living room. At the rear is the bedroom with French doors to the east-facing sun terrace. Separate kitchen at the rear with built-in appliances. Bathroom with toilet, shower, and washbasin.
2nd floor: landing, living room with dining area and stairs to the loft. Bedroom at the rear. Separate kitchen with built-in appliances, bathroom with toilet, shower, and washbasin.
Loft across the entire width of the house.
See the floor plans for the layout and dimensions.
You can download the brochure from our website.
Kenmerken
- Koopprijs
- € 475.000,-
- Plaats
- Haarlem
- Status
- Beschikbaar
- Buurt
- Nelson Mandelabuurt
- Aantal kamers
- 4
- Aantal slaapkamers
- 2
- Aantal badkamers
- 2
- Woonoppervlakte
- 100 m2
- Ligging
- In centrum, In woonwijk
- Bouwjaar
- 1900
- Isolatie
- Dubbelglas
- Type verwarming
- CV ketel
- Onderhoud buiten
- Goed
- Onderhoud binnen
- Goed
- Voorzieningen
- TV kabel, Dakraam
- Energieklasse
- D
- Soort dak
- Mansardedak
- Parkeer faciliteiten
- Betaald parkeren, Parkeervergunningen
- Woning type
- Appartement
Plattegronden
Uitzicht op straat
Zoek de locatie
kom jij kijken?
Een bezoek vertelt het meest. Onze makelaars nemen graag de tijd voor een rustige rondleiding.
Contacteer ons nu











































