Spaarne 67A, Haarlem
BeschikbaarPrijs: € 825.000,-
Beschrijving
PUUR* wonen aan het Spaarne betekent wonen op een unieke locatie met een prachtig panoramisch uitzicht over het rivierwater en de rondvarende boten. Perfect voor liefhebbers van licht, water en sfeer. Dit luxe maisonnette-appartement van 117 m² woonoppervlak is verdeeld over twee woonlagen van een karakteristiek stadspand met een gevel die in 2001 is herbouwd.
Dit appartement beschikt over een nieuwe open woonkeuken (2021), een inpandige berging en een heerlijke patio/atrium tuin. Hier geniet je van rust, ruimte en privacy , terwijl alle levendigheid van het centrum zich op een steenworp afstand bevindt.
De ligging is ideaal: aan de rustige én parkeertechnisch gunstige zijde van het Spaarne, met uitvalswegen binnen enkele minuten bereikbaar.
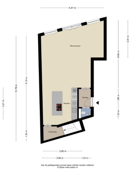
Indeling
Begane grond (complex)
Representatieve gezamenlijke entree met toegang tot de bergingen van de drie appartementen. Via de privéberging bereikt u het appartement.
Eerste verdieping (woonverdieping)
Hoofdentree van het appartement. Hal met toilet en fontein.
De royale woonkamer strekt zich uit over de volledige breedte van het pand (ca. 7 meter) en beschikt over drie grote raampartijen aan de voorzijde. Het resultaat? Een schitterend, vrij uitzicht over het Spaarne dat nooit verveelt.
De eikenhouten vloerdelen, openslaande deuren en het Franse balkon versterken het lichte en stijlvolle karakter van de ruimte.
De automatische zonwering en markiezen aan de voorzijde van de leefruimte geven ook op de warme dagen veel comfort.
Aan de achterzijde bevindt zich de moderne open woonkeuken met een heerlijk kookeiland (2021), voorzien van uiterst hoogwaardige en slimme inbouwapparatuur van Bosch. Een fijne plek om te koken en te tafelen.
Via het inpandige trappenhuis bereikt u de slaapverdieping.
Begane grond (slaapverdieping)
Hal met garderoberuimte, separaat toilet met fontein en mechanische ventilatie, en een praktische wasruimte.
De royale hoofdslaapkamer biedt via een gang toegang tot de patio/atrium tuin — een rustige en beschutte buitenruimte. De tweede slaapkamer is multifunctioneel in te richten als werk-, studie-, logeer- of kleedkamer. Beide kamers beschikken over inbouwkasten en zijn afzonderlijk bereikbaar via de hal. Door de vele ramen heb je ook in beide slaapvertrekken veel licht vanuit buiten.
De ruime badkamer is uitgerust met een inloopdouche en dubbele wastafel. Daarnaast is er een aparte berging met vaste kast, cv-opstelling en extra ruimte voor was-/droog apparatuur.
Goed om te weten
* Kleinschalig appartementencomplex met slechts drie wooneenheden
* Bouwjaar ca. 1850 | In 2001 volledig verbouwd en gesplitst
* Eerste verdieping voorzien van fraaie eikenhouten vloerdelen
* Begane grond voorzien van comfortabele vloerverwarming
* Geheel voorzien van dubbele beglazing
* Servicekosten ca. € 144,- per maand
* Actieve en gezonde VvE
* Gelegen in beschermd stadsgezicht
* Parkeervergunningengebied Zone C (Oost) – meerdere vergunningen mogelijk + bezoekersvignetten, digitaal aan te melden (direct beschikbaar)
* Woonoppervlakte ca. 117 m²
* Inpandige berging ca. 8 m²
* Oplevering in overleg (voorkeur juni)
Een unieke kans om comfortabel en stijlvol te wonen op één van de mooiste plekken aan het Spaarne.
De brochure is te downloaden via onze eigen website.
*ENGLISH*
PUUR* living on the Spaarne means living in a unique location with a beautiful panoramic view of the river and the boats sailing by. Perfect for lovers of light, water and atmosphere. This luxurious maisonette apartment with 117 m² of living space is spread over two floors of a characteristic city building with a façade that was rebuilt in 2001.
This flat has a new open-plan kitchen (2021), an indoor storage room and a lovely patio/atrium garden. Here you can enjoy peace, space and privacy, while all the liveliness of the city centre is just a stone’s throw away.
The location is ideal: on the quiet side of the Spaarne with convenient parking, and with major roads just a few minutes away.
Layout
Ground floor (complex)
Representative communal entrance with access to the storage rooms of the three apartments. You reach the apartment via the private storage room.
First floor (living area)
Main entrance to the flat. Hallway with toilet and washbasin.
The spacious living room extends across the entire width of the property (approx. 7 metres) and has three large windows at the front. The result? A magnificent, unobstructed view of the Spaarne river that never gets boring.
The oak floorboards, French doors and French balcony enhance the light and stylish character of the space.
The automatic sun blinds and awnings at the front of the living area also provide great comfort on hot days.
At the rear is the modern open-plan kitchen with a delightful cooking island (2021), equipped with high-quality, smart built-in appliances from Bosch. A lovely place to cook and dine.
The internal staircase leads to the sleeping area.
Ground floor (sleeping area)
Hallway with cloakroom, separate toilet with washbasin and mechanical ventilation, and a practical laundry room.
The spacious master bedroom provides access to the patio/atrium garden via a corridor — a quiet and sheltered outdoor space. The second bedroom can be used as a multifunctional space, such as a study, guest room or dressing room. Both rooms have built-in wardrobes and are separately accessible via the hall. The many windows allow plenty of natural light into both bedrooms.
The spacious bathroom is equipped with a walk-in shower and double sink. There is also a separate storage room with a built-in cupboard, central heating system and extra space for washing/drying appliances.
Good to know
* Small-scale apartment complex with only three residential units
* Built around 1850 | Completely renovated and divided in 2001
* First floor with beautiful oak flooring
* Ground floor with comfortable underfloor heating
* Fully equipped with double glazing
* Service costs approx. £144 per month
* Active and healthy owners’ association
* Located in a protected cityscape
* Parking permit area Zone C (East) – multiple permits possible + visitor vignettes, digital registration (available immediately)
* Living area approx. 117 m²
* Indoor storage room approx. 8 m²
* Delivery in consultation (preferably June)
A unique opportunity to live comfortably and stylishly in one of the most beautiful locations on the Spaarne.
The brochure can be downloaded from our website.
Kenmerken
- Koopprijs
- € 825.000,-
- Plaats
- Haarlem
- Status
- Beschikbaar
- Buurt
- Burgwal
- Aantal kamers
- 5
- Aantal slaapkamers
- 2
- Aantal badkamers
- 2
- Woonoppervlakte
- 117 m2
- Ligging
- Aan water, In centrum, Vrij uitzicht
- Type verwarming
- CV ketel
- Onderhoud buiten
- Goed tot uitstekend
- Onderhoud binnen
- Uitstekend
- Voorzieningen
- Mechanische ventilatie, Rolluiken, TV kabel, Buitenzonwering, Schuifpui, Frans balkon, Glasvezel kabel, Domtica, Natuurlijke ventilatie
- Energieklasse
- C
- Soort dak
- Zadeldak
- Parkeer faciliteiten
- Betaald parkeren, Parkeervergunningen
- Schuur/bergruimte
- 1
- Woning type
- Appartement
Plattegronden
Uitzicht op straat
Zoek de locatie
kom jij kijken?
Een bezoek vertelt het meest. Onze makelaars nemen graag de tijd voor een rustige rondleiding.
Contacteer ons nu











































