Te Winkelhof 12, Heemstede
VerkochtBeschrijving
Dit moderne 3 kamer appartement met royaal dakterras en eigen berging is gelegen op de 1e verdieping van een kleinschalig appartementencomplex in de rustige Geleerdenwijk. Het appartement betreft het grote type woning binnen het complex “De Geleerdenhof” en bestaat uit een ruime woonkamer met een moderne open keuken die door de extra zijraam en de grote raampartijen heerlijk licht zijn. Ook heb je hier weinig inkijk waardoor je hier lekker vrij zit. Verder vind je in het appartement 2 slaapkamers, een modern toilet en een moderne badkamer. Zowel het toilet als de badkamer is in 2021 vernieuwd. Vanuit de woonkamer is het zonnige terras bereikbaar. Het royale dakterras is op het zuidoosten gelegen en biedt veel privacy. En je hebt nog een eigen berging, deze bevindt zich in de onderbouw.
De ligging is werkelijk ideaal. Rondom het complex vind je enkele winkeltjes waaronder een supermarkt maar ook ligt op korte loopafstand de gezellige winkelstraten De Binnenweg en de Raadhuisstraat. Hier vind je niet alleen alles voor je dagelijkse boodschappen maar ook leuke boetieks, diverse eetgelegenheden en een wekelijkse markt. Wil je even naar de gezellige binnenstad van Haarlem dan ben je daar met ca. 10 minuten fietsen. De bushalte bevindt zich om de hoek dus zowel op de fiets als met de bus ben je zo in Haarlem. Ook het NS-Station met directe verbinding naar o.a. Haarlem, Amsterdam, Den Haag en Leiden is binnen enkele minuten via het fietsbruggetje over de Leidsevaart bereikbaar. En voor vertier of evt cultuur hoef je ook niet lang op pad, zo vind je de theaterzaal en filmhuis De Luifel zo goed als om de hoek. Fietsend bereik je binnen enkele minuten het mooie Groenendaalse bos, het overdekte zwembad en diverse sportfaciliteiten w.o. het overdekte zwembad. En wat te denken van prachtige fietstochten naar de kust met de mooie stranden en duinen van Zandvoort/Bloemendaal en naar diverse mooie natuurgebieden die deze omgeving rijk is. En ga je met de auto op pad dan zijn er in de directe woonomgeving diverse uitvalswegen te vinden. Het fijne is dat bij het appartement er rondom gratis parkeergelegenheid is zodat je de auto altijd dichtbij kunt parkeren.
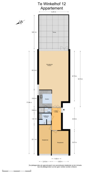
Indeling:
Parterre: afgesloten entree met bellentableau en brievenbussen, gemeenschappelijke hal met trap naar….
1e Verdieping: entree appartement, zeer ruime hal voorzien van modern zwevend toilet met fontein en kast met cv-ketel, ruime woonkamer met open keuken voorzien van diverse inbouwapparatuur en marmer aanrechtblad, extra zijraam, grote raampartijen en deur naar dakterras, 2 slaapkamers, moderne badkamer voorzien van inloopdouche met handdouche, rainshower en zitje, wastafelmeubel, wasmachine/droger aansluiting en vloerverwarming
Bijzonderheden:
* Woonoppervlakte ca. 85 m2 en inhoud ca. 275 m3
* Modern 3 kamer appartement
* Geheel voorzien van massief eiken houten vloer
* Zonnig dakterras op het zuidoosten
* Veel privacy
* Nieuw toilet en badkamer (2021)
* Badkamer voorzien van vloerverwarming
* Voor- en achterzijde voorzien van elektrische zonwering
* Slaapkamers en deur naar terras voorzien van horren
* Video intercominstallatie aanwezig
* Eigen berging in onderbouw
* Servicekosten thans € 150,= per maand
* Vrij parkeren rondom het complex
* Winkels en NS-Station op zeer korte afstand
* Voor indeling en maatvoering zie plattegronden
* Oplevering in overleg
Algemeen
- Plaats
- Heemstede
- Status
- Verkocht
- Buurt
- Geleerdenbuurt
- Aantal kamers
- 3
- Aantal slaapkamers
- 2
- Aantal badkamers
- 1
- Woonoppervlakte
- 85 m2
- Ligging
- Aan rustige weg, In woonwijk
- Bouwjaar
- 1979
- Isolatie
- Dubbelglas
- Type verwarming
- CV ketel, Vloerverwarming gedeeltelijk
- Onderhoud buiten
- Goed
- Onderhoud binnen
- Goed
- Voorzieningen
- TV kabel, Buitenzonwering
- Energieklasse
- B
- Soort dak
- Plat dak
- Parkeer faciliteiten
- Openbaar parkeren
- Schuur/bergruimte
- 1
- Woning type
- Appartement



























