Tempeliersstraat 34ZW, Haarlem
BeschikbaarPrijs: € 350.000,-
Beschrijving
PUUR* wonen in de Koninginnebuurt van Haarlem – een plek waar stadse levendigheid samenkomt met comfortabel gelijkvloers wonen, en waar een kluswoning met volop potentie wacht om naar eigen smaak te worden gerealiseerd.
Aan de recent vernieuwde Tempeliersstraat ligt deze lichte benedenwoning van ca. 77 m² met een zonnige tuin op het zuiden. De woning vraagt om een grondige modernisering, maar biedt juist daardoor een mooie kans om alles volledig naar eigen smaak en stijl te realiseren.
De woning beschikt momenteel over een riante leefruimte, een ruime keuken en een slaapkamer in de aanbouw. De indeling is gelijkvloers en de lichtinval is prettig, waardoor hier na renovatie een comfortabel stadsappartement kan ontstaan. De knusse stadstuin op het zuiden maakt het plaatje compleet: een rustige buitenplek midden in de stad.
De Tempeliersstraat en het Houtplein zijn recent volledig opnieuw aangelegd en hebben een frisse, strakke uitstraling gekregen. De ligging is ideaal: aan de rand van het centrum, met winkels, horeca, cultuur en openbaar vervoer allemaal op loopafstand.
Kortom: een kluswoning op een fijne locatie in Haarlem, waar je na verbouwing kunt genieten van puur, comfortabel en gelijkvloers wonen in de stad.
Goed om te weten:
* Kluswoning
* Benedenwoning met gemengde bestemming
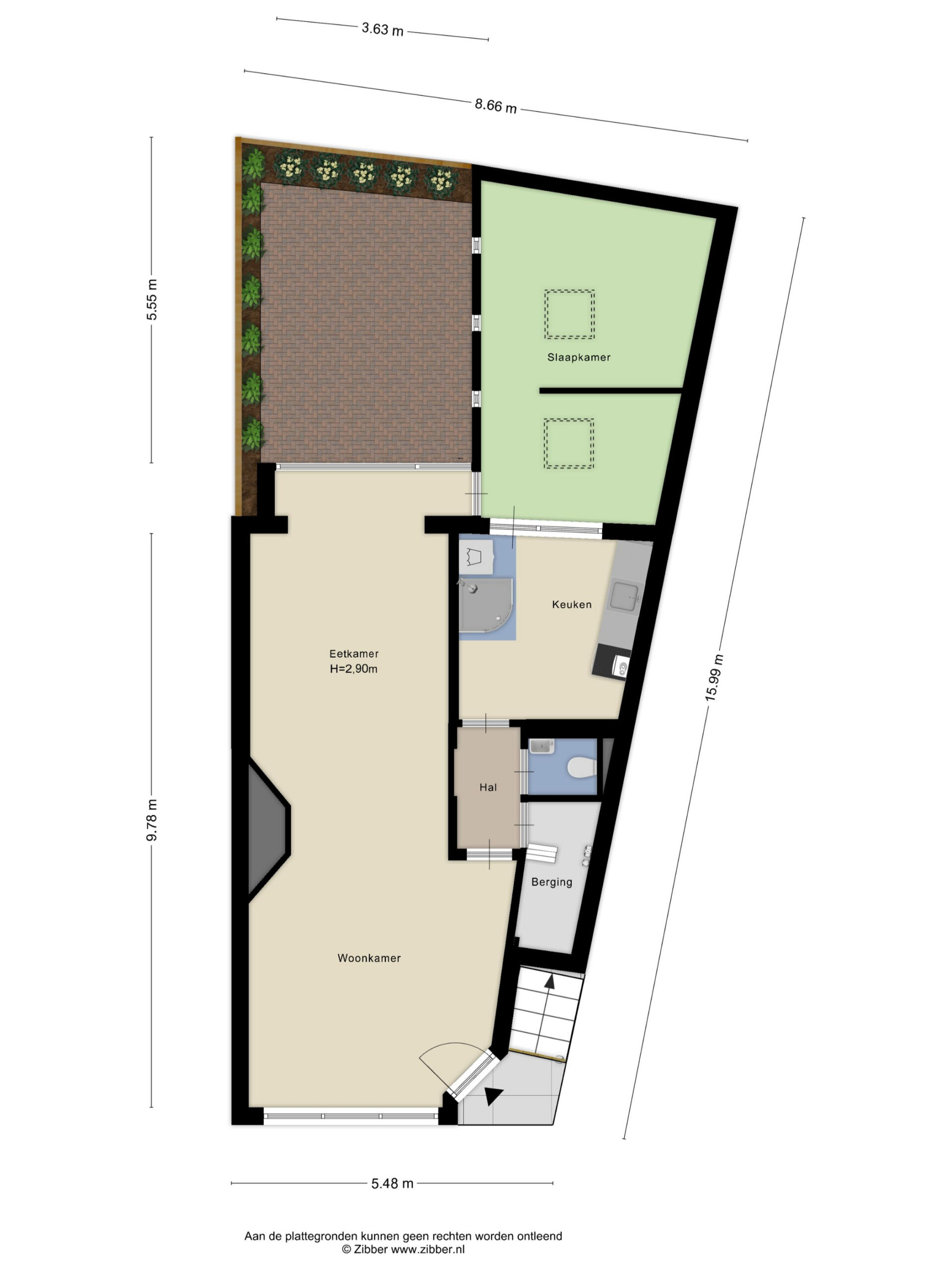
* Zie voor de indeling en de maatvoering de plattegrond.
* Op loopafstand van de gezellige binnenstad en alle voorzieningen
* Woonoppervlak circa 77 m2 (zie meetrapport)
* Fijne leefruimte
* Diverse indelingsmogelijkheden
* Gelijkvloers wonen
* Energielabel C
* Verwarming middels Remeha Tzerra HR combiketel uit 2017
* Gemetselde fundering (geen palen)
* Recent opgestarte VvE, servicekosten € 140,- per maand
* Eventueel aanspraak mogelijk op startersvrijstelling overdrachtsbelasting (onder voorwaarden)
* Parkeren middels parkeervignet
* Notaris keuze verkoper, Jager Notarissen!
* Aanvaarding in overleg, kan snel
– English –
PUUR* living in Haarlem’s Koninginnebuurt – a place where urban vibrancy meets comfortable single-storey living, and where a fixer-upper with plenty of potential awaits to be transformed to your own taste.
Located on the recently renovated Tempeliersstraat, this bright ground-floor flat of approx. 77 m² features a sunny south-facing garden. The property requires thorough modernisation, but this very fact offers a wonderful opportunity to create a home entirely to your own taste and style.
The property currently features a spacious living area, a large kitchen and a bedroom in the extension. The layout is on one level and the natural light is pleasant, meaning that a comfortable city flat could be created here following renovation. The cosy south-facing city garden completes the picture: a peaceful outdoor space right in the heart of the city.
Tempeliersstraat and Houtplein have recently been completely refurbished and now have a fresh, sleek look. The location is ideal: on the edge of the city centre, with shops, restaurants, cultural attractions and public transport all within walking distance.
In short: a fixer-upper in a lovely location in Haarlem, where, once renovated, you can enjoy simple, comfortable, single-storey living in the city.
Good to know:
* Complete renovation needed
* Ground-floor flat with mixed-use designation
* See the floor plan for the layout and dimensions.
* Within walking distance of the lively city centre and all amenities
* Living area approx. 77 m² (see survey report)
* Lovely living space
* Various layout options
* Single-storey living
* Energy rating C
* Heating via Remeha Tzerra HR combi boiler from 2017
* Brick foundation (no piles)
* Recently established owners’ association, service charges €140 per month
* Potential eligibility for first-time buyer exemption from transfer tax (subject to conditions)
* Parking via parking permit
* Notary chosen by the seller: Jager Notarissen
* Completion by mutual agreement, can be arranged quickly
Kenmerken
- Koopprijs
- € 350.000,-
- Plaats
- Haarlem
- Status
- Beschikbaar
- Buurt
- Koninginnebuurt
- Aantal kamers
- 3
- Aantal slaapkamers
- 1
- Woonoppervlakte
- 77 m2
- Ligging
- In centrum
- Bouwjaar
- 1921
- Isolatie
- Grotendeels dubbelglas
- Type verwarming
- CV ketel
- Onderhoud buiten
- Goed
- Onderhoud binnen
- Matig
- Voorzieningen
- Buitenzonwering, Rookkanaal, Schuifpui, Glasvezel kabel
- Energieklasse
- C
- Soort dak
- Plat dak
- Parkeer faciliteiten
- Betaald parkeren, Parkeervergunningen
- Woning type
- Appartement
Plattegronden
Uitzicht op straat
Zoek de locatie
kom jij kijken?
Een bezoek vertelt het meest. Onze makelaars nemen graag de tijd voor een rustige rondleiding.
Contacteer ons nu



































