Tjerk Hiddesstraat 8F 2, Zandvoort
Verkocht onder voorbehoudPrijs: € 395.000,-
Beschrijving
Wonen met fantastisch uitzicht
Met een prachtig uitzicht op de zee staat nagenoeg aan de boulevard dit zeer ruime drie kamer appartement met groot zonnig balkon op het zuidwesten, een extra balkon op het noordoosten en eigen berging in de onderbouw. Het appartement is gelegen op de 1e verdieping en bestaat o.a. uit een grote woonkamer met een moderne open keuken, een slaapkamer, een open werk/tv kamer, een badkamer, een zonnig balkon over de volle breedte op het zuidwesten met een fantastisch uitzicht, een extra balkon op het noordoosten en een eigen berging met fontein en wasmachine aansluiting op de parterre. De grote raampartijen in de woonkamer maken het binnen lekker licht en zorgen voor een uniek uitzicht! Zowel in de woonkamer als op het balkon geniet je van een mooi uitzicht en ‘s avonds ook van prachtige zonsondergangen. Zodra je de woning verlaat staat je binnen 2 minuten met je voeten in de branding, zit je zo op het terras van één van de vele leuke strandtenten, lig je op het strand of op je surfplank in de zee of sta je met bijv. zonsopkomst te suppen. Ook ben je zo in de duinen of in het gezellige centrum van Zandvoort met diverse boetieks, restaurants, uitgaansgelegenheden en supermarkten. Het NS-Station met directe verbinding naar Haarlem en diverse busverbindingen liggen op korte afstand evenals vele mooie natuurgebieden, scholen, sportfaciliteiten, het F1 circuit en uitvalswegen.
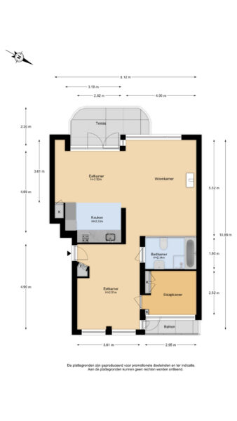
Indeling:
Parterre: gemeenschappelijk entree met brievenbussen en bellentableau, afgesloten hal met trappenhuis en toegang naar berging met fontein en wasmachine aansluiting
1e Verdieping: entree appartement, ruime woonkamer met houtkachel, eiken houten vloer en grote openslaande pui naar zonnig balkon, moderne open keuken met diverse inbouwapparatuur, eiken houten vloer en diepe inbouwkast, royale werk/tvkamer (evt terug te brengen naar slaapkamer) met eiken houten vloer, deur naar balkon op het noordoosten, slaapkamer met vaste kastenwand, eiken houten vloer en deur naar balkon, marmeren badkamer voorzien van ligbad, douche, wastafel, toilet en vloerverwarming
Bijzonderheden:
* Woonoppervlakte ca. 76 m2, inhoud ca. 239 m3
* Fantastisch uitzicht
* Isolatieglas aanwezig
* Appartement voorzien van massief eiken houten vloer
* Badkamer voorzien van vloerverwarming
* Zonnig terras op het zuidwesten
* 2e Balkon op het noordoosten
* Afgesloten entree
* Eigen berging op de parterre
* Geen doorgaand verkeer in de straat “Cul de sac”
* Servicekosten thans € 314,41 per maand inclusief voorschot stookkosten
* Voor indeling en maatvoering zie plattegronden
* Oplevering in overleg
Kenmerken
- Koopprijs
- € 395.000,-
- Plaats
- Zandvoort
- Status
- Verkocht onder voorbehoud
- Buurt
- Boulevard Noord
- Aantal kamers
- 3
- Aantal slaapkamers
- 2
- Aantal badkamers
- 1
- Woonoppervlakte
- 76 m2
- Ligging
- Aan rustige weg, In woonwijk, Vrij uitzicht, Zeezicht
- Bouwjaar
- 1960
- Isolatie
- Dubbelglas
- Type verwarming
- Blokverwarming, Vloerverwarming gedeeltelijk, Houtkachel
- Onderhoud buiten
- Goed
- Onderhoud binnen
- Goed
- Voorzieningen
- TV kabel, Rookkanaal
- Energieklasse
- F
- Soort dak
- Plat dak
- Parkeer faciliteiten
- Openbaar parkeren, Parkeervergunningen
- Schuur/bergruimte
- 1
- Woning type
- Appartement
Plattegronden
Uitzicht op straat
Zoek de locatie
kom jij kijken?
Een bezoek vertelt het meest. Onze makelaars nemen graag de tijd voor een rustige rondleiding.
Contacteer ons nu





































