Tweede Jan van der Heijdenstraat 28-3, Amsterdam
VerkochtBeschrijving
PUUR Wonen*
Ruim dubbel bovenhuis van ca. 121 m², gelegen in één van de gezelligste buurten van Amsterdam: De Pijp. Deze woning, verdeeld over de derde en vierde verdieping, beschikt over vier slaapkamers, een ruime badkamer, een comfortabele woon-/leefruimte, een open keuken en twee balkons op het zuiden. Het appartement ligt op eigen grond en is de afgelopen jaren op duurzaam vlak sterk verbeterd (energielabel A). Zo is de woning voorzien van vloerisolatie en HR+ beglazing, wat bijdraagt aan een beter wooncomfort en een lagere energierekening.
INDELING:
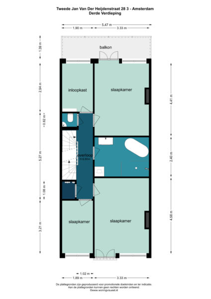
Via de gemeenschappelijke voordeur bereikt u de entree van het appartement op de tweede verdieping. Met de trap bereikt u de derde verdieping waar zich maar liefst vier goed bemeten slaapkamers bevinden. Eveneens bevind zich hier de badkamer die in 2024 volledig gerenoveerd is en een moderne uitstraling heeft met een ligbad, een ruime inloopdouche en aansluitingen voor zowel een wasmachine als een droger. Aan de achterzijde van deze verdieping vindt u een balkon.
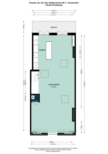
De vierde verdieping vormt het hart van de woning. Hier bevindt zich het royale woongedeelte met een ruime woonkamer en een open keuken. Dankzij meerdere dakramen en openslaande glazen deuren naar het balkon valt hier bijzonder veel daglicht naar binnen, wat zorgt voor een lichte en open sfeer.
Het appartement is volledig voorzien van vloerisolatie en HR+ ramen, wat zorgt voor extra wooncomfort en een verbeterde energie-efficiëntie.
OMGEVING:
Het appartement bevindt zich in een rustige straat in stadsdeel Zuid, op korte afstand van het Sarphatipark, de Van Woustraat en de levendige Albert Cuypmarkt. De buurt biedt een breed scala aan winkels, scholen en hippe horecazaken. Dankzij de centrale ligging is het appartement uitstekend bereikbaar, zowel met het openbaar vervoer als per fiets. Met de auto bent u via de nabijgelegen op- en afritten (RAI – S109 en Amstel – S110) snel op de Ring A10.
ERFPACHT:
De woning is gelegen op EIGEN GROND.
BIJZONDERHEDEN:
* Dubbel bovenhuis van ca. 121m2;
* Gelegen op EIGEN GROND;
* Energielabel A;
* 2 ruime en zonnige balkons gelegen op het zuiden;
* Slapen beneden, wonen boven;
* Open leefkeuken;
* Vloerisolatie;
* HR+ ramen/kozijnen voor en achter (2025);
* Recentelijk gerenoveerde badkamer (2024);
* De rest van de woning is volledig gerenoveerd in 2020;
* 2 ingebouwde opbergkasten;
* Veel licht, mede dankzij de dakramen;
* Philips Hue aangesloten op alle lampen;
* Veel privacy wegens ver liggende buren;
* Nabij gelegen het Sarphatipark en Vondelpark;
* Oplevering in overleg.
* Energielabel A;
Algemeen
- Plaats
- Amsterdam
- Status
- Verkocht
- Buurt
- Sarphatiparkbuurt
- Aantal kamers
- 4
- Aantal slaapkamers
- 4
- Aantal badkamers
- 1
- Woonoppervlakte
- 121 m2
- Perceel oppervlakte
- 121 m2
- Ligging
- Aan park, Aan rustige weg, In centrum
- Bouwjaar
- 1887
- Isolatie
- Vloerisolatie, Dubbelglas, HR glas
- Type verwarming
- CV ketel
- Onderhoud buiten
- Goed tot uitstekend
- Onderhoud binnen
- Goed tot uitstekend
- Voorzieningen
- Mechanische ventilatie, Dakraam
- Energieklasse
- A
- Parkeer faciliteiten
- Openbaar parkeren, Parkeervergunningen
- Woning type
- Appartement



































