Van Hallstraat 15-1, Amsterdam
Onder bodPrijs: € 365.000,-
Beschrijving
PUUR* Wonen aan de sfeervolle Van Hallstraat in Westerpark-buurt!
Ontdek dit charmante appartement van ca. 44 m², gelegen op de eerste verdieping van een karakteristiek pand in het geliefde Westerpark- en Staatsliedenbuurt. De woning beschikt over een lichte woonkamer met Frans balkon, een fijne slaapkamer met toegang tot het balkon, een moderne keuken met hoogwaardige inbouwapparatuur, een verzorgde badkamer én een praktische berging op de begane grond.
Dankzij de recente renovatie in 2022 combineert het appartement authentieke details met hedendaags wooncomfort, een heerlijke plek om thuis te komen.
INDELING
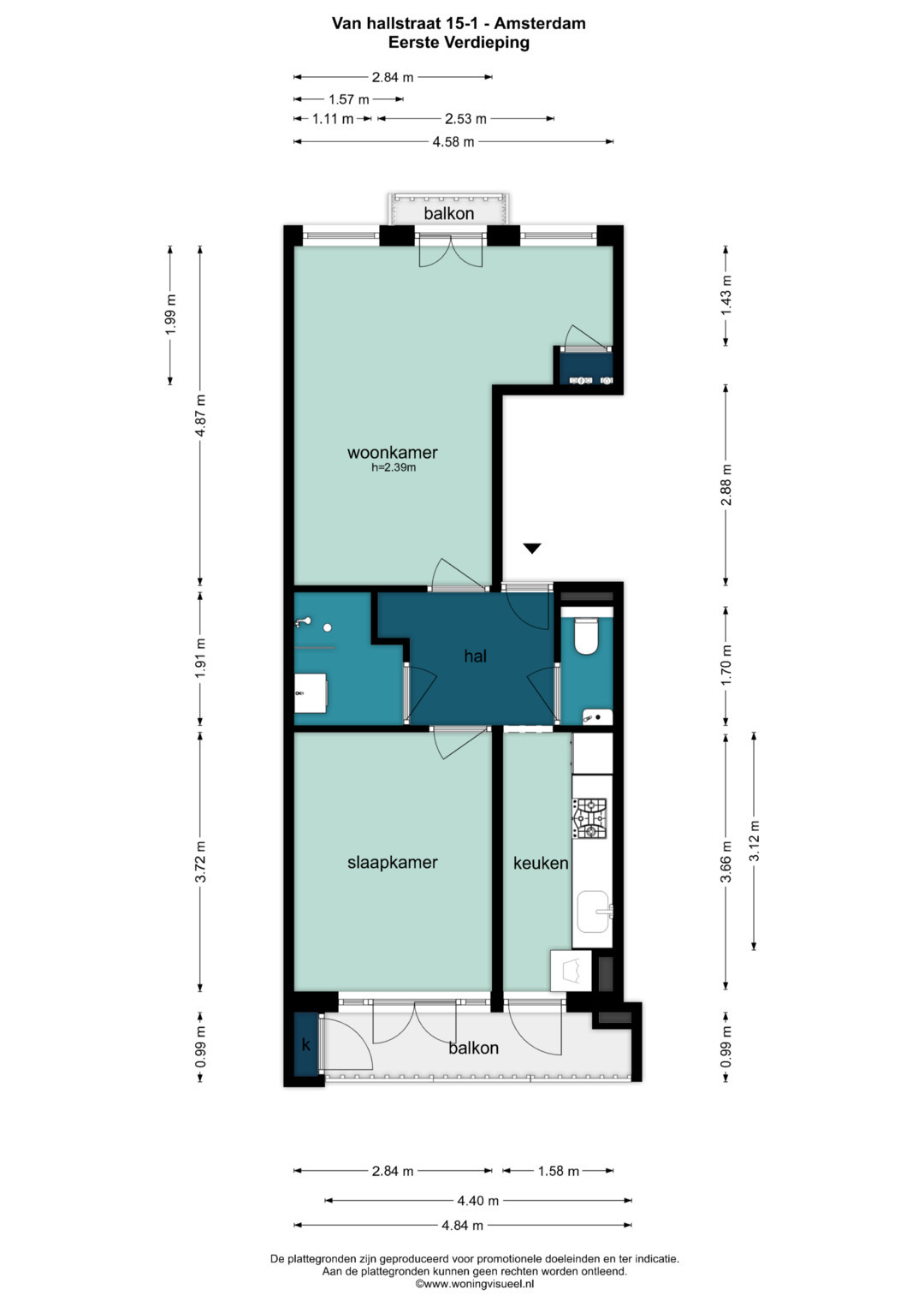
Via het gemeenschappelijke trappenhuis bereik je de woning op de eerste verdieping. Bij binnenkomst valt meteen de lichte en sfeervolle woonkamer op. De hoge ramen aan de straatzijde zorgen voor een prachtige lichtinval, terwijl de openslaande deuren naar het Franse balkon een charmant en luchtig gevoel geven. De ruimte biedt voldoende plaats voor een comfortabele zit- en eethoek, waardoor de woonkamer direct warm en uitnodigend aanvoelt.
De keuken is apart gelegen en uitgerust met diverse hoogwaardige inbouwapparatuur, waaronder een Quooker en een Bora-inductiekookplaat. Deze modern afgewerkte keuken biedt alle gemakken die je zoekt, inclusief een aansluiting voor de wasmachine. Alles voelt doordacht en functioneel aan, ideaal voor wie graag kookt.
Aan de rustige achterzijde bevindt zich de slaapkamer, ruim genoeg voor een tweepersoonsbed en met voldoende kastruimte. Daarnaast is er ruimte om een thuiswerkbureau te plaatsen, fijn voor wie graag vanuit huis werkt. Vanuit de slaapkamer stap je zo het balkon op.
Het balkon ligt op het oosten, perfect voor een zonnige start van de dag. Dankzij de ligging aan de groene binnentuinen kun je hier bovendien tot laat genieten van de rust en het buitenleven. Aan de voorzijde kan je genieten van het vrije uitzicht met de namiddag zon. De badkamer is netjes afgewerkt en voorzien van een inloopdouche en wastafel met meubel. Het toilet is separaat en bevindt zich naast de entree.
Daarnaast beschikt het appartement over een zeer praktische berging, ideaal voor het opbergen extra spullen, een echte plus aan deze woning. De woning is uitstekend onderhouden, voorzien van energielabel C en beschikt over een moderne CV-installatie uit 2022, wat zorgt voor extra comfort en een energiezuinig leefklimaat.
LOCATIE
De Van Hallstraat ligt midden in de hippe Staatsliedenbuurt, een van de populairste plekken onder jonge Amsterdammers. Je woont hier om de hoek van hotspots zoals Café Restaurant Amsterdam, Café Beurre, Brouwerij Troost, Louf en talloze koffietentjes. De Jordaan en de Noordermarkt liggen op loopafstand, net als het cultuur- en recreatiegebied van het Westerpark. De buurt voelt levendig en creatief, maar biedt tegelijk voldoende rust door de ligging aan de binnentuinen. De bereikbaarheid is uitstekend: diverse tram- en busverbindingen liggen op loopafstand, en met de fiets sta je binnen enkele minuten in het centrum. Via de A10 ben je ook zo de stad uit.
BIJZONDERHEDEN
* Woonoppervlakte: ca. 44 m² (NEN2580 meetrapport aanwezig)
* Erfpacht vooruit betaald tot en met oktober 2075
* Zeer licht appartement
* Luxe keuken met o.a. Quooker en Bora-inductie
* Goed onderhouden badkamer met inloopdouche
* Frans balkon aan de voorzijde (west) + balkon aan de achterzijde (oost)
* Recentelijk gerenoveerd (2022)
* Energielabel C
* CV-installatie uit 2022
* Actieve en gezonde VvE
* Servicekosten: € 198,- per maand
* Oplevering in overleg
***English*
PUUR* Living on the Charming Van Hallstraat in Westerpark!
Discover this charming apartment of approximately 44 m², located on the first floor of a characterful building in the popular Westerpark and Staatsliedenbuurt area. The home features a bright living room with a French balcony, a cozy bedroom with access to the balcony, a modern kitchen with high-end built-in appliances, a well-maintained bathroom, and a practical storage room on the ground floor.
Thanks to the recent renovation in 2022, the apartment combines authentic details with contemporary comfort—a delightful place to call home.
LAYOUT
Accessible via the communal staircase, the apartment welcomes you to a bright and inviting living room. The tall windows at the front let in abundant natural light, while the French doors to the balcony create a charming and airy atmosphere. The space offers ample room for both a comfortable seating and dining area, making the living room immediately warm and inviting.
The separate kitchen is equipped with a range of high-quality built-in appliances, including a Quooker tap and Bora induction cooktop. This modern kitchen is thoughtfully designed with functionality in mind, including a connection for a washing machine—perfect for those who love to cook.
At the quiet rear of the apartment is the bedroom, spacious enough for a double bed and ample wardrobe space. There is also room for a home office, ideal for remote work. The bedroom provides direct access to the balcony.
The east-facing balcony is perfect for a sunny start to the day. Situated alongside the green inner gardens, it offers tranquility and a sense of outdoor living well into the evening. At the front, you can enjoy unobstructed views and the afternoon sun. The bathroom is neatly finished and features a walk-in shower and a vanity unit. The toilet is separate and located next to the entrance.
Additionally, the apartment includes a highly practical storage room, ideal for extra belongings—a true bonus. The property is excellently maintained, has an energy label C, and a modern central heating system from 2022, providing extra comfort and an energy-efficient living environment.
LOCATION
Van Hallstraat is located in the heart of the trendy Staatsliedenbuurt, one of the most popular areas among young Amsterdammers. You’ll live just around the corner from hotspots such as Café Restaurant Amsterdam, Café Beurre, Brouwerij Troost, Louf, and countless coffee spots. The Jordaan and Noordermarkt are within walking distance, as is the cultural and recreational area of Westerpark. The neighborhood feels lively and creative, while still offering peace and quiet thanks to its position near the inner gardens. Accessibility is excellent: various tram and bus connections are within walking distance, and you can reach the city center by bike in just a few minutes. The A10 motorway also provides quick access out of the city.
HIGHLIGHTS
* Living area: approx. 44 m² (NEN2580 measurement report available)
* Ground lease prepaid until October 2075
* Extremely bright apartment
* Luxury kitchen with Quooker and Bora induction
* Well-maintained bathroom with walk-in shower
* French balcony at the front (west) + balcony at the rear (east)
* Recently renovated (2022)
* Energy label C
* Central heating system from 2022
* Active and healthy homeowners’ association (VvE)
* Service costs: €198 per month
* Delivery in consultation
Kenmerken
- Koopprijs
- € 365.000,-
- Plaats
- Amsterdam
- Status
- Onder bod
- Buurt
- Westerstaatsman
- Aantal kamers
- 2
- Aantal slaapkamers
- 1
- Aantal badkamers
- 1
- Woonoppervlakte
- 44 m2
- Ligging
- Aan park, Aan drukke weg, In woonwijk
- Type verwarming
- CV ketel
- Onderhoud buiten
- Goed
- Onderhoud binnen
- Goed
- Voorzieningen
- TV kabel, Frans balkon, Natuurlijke ventilatie
- Energieklasse
- C
- Soort dak
- Plat dak
- Parkeer faciliteiten
- Betaald parkeren, Parkeervergunningen
- Woning type
- Appartement
Plattegronden
Uitzicht op straat
Zoek de locatie
kom jij kijken?
Een bezoek vertelt het meest. Onze makelaars nemen graag de tijd voor een rustige rondleiding.
Contacteer ons nu


























