Van Ostadestraat 301-3, Amsterdam
VerkochtBeschrijving
PUUR* WONEN
In het hart van de geliefde Amsterdamse Pijp bieden wij dit moderne en uitstekend onderhouden appartement aan van circa 36 m², gelegen op EIGEN GROND en voorzien van energielabel A. Het pand is onlangs in 2024 gesplitst en beschikt over een nieuwe fundering. De woning is uitgerust met hoogwaardig vacuümglas, airconditioning én infraroodverwarming, wat zorgt voor optimale isolatie, extra comfort en energiezuinig wonen.
Het appartement is niet gestyled, maar omdat de indeling vrijwel identiek is aan Van Ostadestraat 301-1, kan deze woning uitstekend dienen als referentie voor inrichting en sfeer.???
OMGEVING
De woning is gelegen in de rustige, maar centraal gelegen Van Ostadestraat, midden in de bruisende Pijp. Hier woon je op loopafstand van de Albert Cuypmarkt, tal van koffietentjes, restaurants en boetieks. Voor ontspanning ligt het Sarphatipark om de hoek. De Noord/Zuidlijn, trams, bussen en diverse uitvalswegen zijn snel bereikbaar, waardoor alle delen van de stad binnen handbereik liggen.
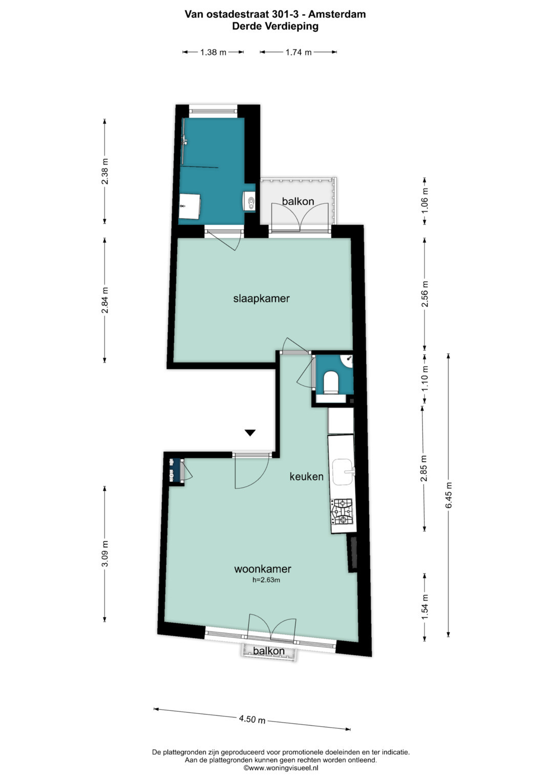
INDELING
Via het gemeenschappelijke trappenhuis bereik je het appartement op de derde verdieping. Aan de voorzijde bevindt zich de lichte woonkamer met 3 grote raampartijen voorzien van vacuümglas, wat zorgt voor uitstekende warmte- én geluidsisolatie. De open keuken sluit mooi aan op de woonkamer en biedt de mogelijkheid tot het creëren van een fijne, compacte leefruimte. De slaapkamer bevindt zich aan de achterzijde en geeft toegang tot het balkon van circa 2 m². De badkamer is modern ingericht en voorzien van een douche, wastafel en toilet.
BIJZONDERHEDEN
* 36,4 m² woonoppervlak (NEN2580 meetrapport aanwezig)
* Energielabel A
* Hoogwaardig vacuümglas voor uitstekende isolatie
* Airco verwarming en/of infraroodverwarming
* Gelegen op EIGEN GROND
* Balkon van circa 2 m²
* Nieuwe fundering en splitsing in 2024
* Zeer goed onderhouden appartement
* Indeling nagenoeg identiek aan Van Ostadestraat 301-1 (ideaal als inspiratiewoning)
* Perfecte ligging in de Pijp
* Schilderwerkzaamheden van het pand 2024 uitgevoerd
* Zeer net trappenhuis
Algemeen
- Plaats
- Amsterdam
- Status
- Verkocht
- Buurt
- Van der Helstpleinbuurt
- Aantal kamers
- 3
- Aantal slaapkamers
- 1
- Woonoppervlakte
- 36 m2
- Perceel oppervlakte
- 36 m2
- Ligging
- In centrum
- Bouwjaar
- 1908
- Isolatie
- Dakisolatie, Muurisolatie, Vloerisolatie
- Onderhoud buiten
- Uitstekend
- Onderhoud binnen
- Uitstekend
- Voorzieningen
- Mechanische ventilatie, Airconditioning, Frans balkon
- Energieklasse
- A
- Parkeer faciliteiten
- Openbaar parkeren, Betaald parkeren
- Woning type
- Appartement


















