Van Ostadestraat 32-3, Amsterdam
BeschikbaarPrijs: € 975.000,-
Beschrijving
PUUR* wonen in de geliefde De Pijp waar levendigheid, karakter en comfort samenkomen in een charmante bovenwoning aan de Van Ostadestraat op eigen grond.
Aan de Van Ostadestraat 32 3 ligt deze sfeervolle en goed ingedeelde bovenwoning van 125m2., verdeeld over twee woonlagen en voorzien van een royaal en zonnig dakterras. De woning combineert authentieke details met een prettige lichtinval en een praktische indeling, wat zorgt voor een heerlijke woonbeleving midden in de stad.
Grote raampartijen, hoge plafonds en karakteristieke elementen zoals ornamentenplafonds en schouwen geven de woning een warme en stijlvolle uitstraling. De combinatie van een lichte woonkamer, open keuken, twee ruime slaapkamers en een royaal dakterras maakt dit een ideaal thuis voor zowel stellen als (jonge) gezinnen.
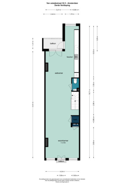
INDELING:
Entree:
Via het gemeenschappelijke trappenhuis bereik je de woning op de eerste woonlaag.
Woonverdieping:
Bij binnenkomst stap je in een royale en open leefruimte. Aan de voorzijde bevindt zich de lichte woonkamer met hoge raampartijen en openslaande deuren naar een charmant Frans balkon. De ruimte wordt gekenmerkt door een fraai ornamentenplafond en een stijlvolle schouw, wat zorgt voor een karaktervolle sfeer.
Aan de achterzijde van de woning bevindt zich de eetkamer, met voldoende ruimte voor een grote eettafel; ideaal voor gezellige diners of een gezinssituatie. De open keuken sluit hier naadloos op aan en beschikt over veel werkruimte, een los gasfornuis met een robuuste uitstraling en volop opbergruimte.
Vanuit de eetkamer geven openslaande deuren toegang tot het balkon aan de achterzijde. Dit balkon ligt op het zuiden, waardoor je hier de hele dag kunt genieten van de zon. Door de directe verbinding tussen binnen en buiten ontstaat een heerlijk verlengd leefgevoel, waarbij de eetkamer en het balkon naadloos in elkaar overlopen en het buitenleven echt onderdeel wordt van de woonruimte.
Tevens bevindt zich op deze verdieping een separaat toilet, praktisch gesitueerd en netjes afgewerkt.
Slaap verdieping:
Midden in de leefruimte bevindt zich een karakteristieke trap naar de bovenste woonlaag. Hier kom je uit op een ruime en lichte overloop, voorzien van een koepel die zorgt voor een aangename daglichttoetreding. Tevens is er een praktische en moderne inbouwkast met veel bergruimte. Van deze grote ‘midden’ ruimte zou vrij eenvoudig een derde slaapkamer gemaakt kunnen worden.
Op deze verdieping bevinden zich twee royale slaapkamers, gesitueerd aan zowel de voor- als achterzijde van de woning. De slaapkamer aan de voorzijde beschikt over subtiel weggewerkte planken in de muur, wat zorgt voor een strak en functioneel geheel.
Daarnaast vind je op deze verdieping een separate wasruimte, waar zowel een wasmachine en droger past. Ook is er ruimte voor extra bergruimte.
Naast de trap die leidt naar het dakterras bevindt zich de goed onderhouden en modern afgewerkte badkamer. Deze is voorzien van een ligbad, een regendouche en een lange wastafel met dubbele kraan, wat zorgt voor een comfortabel en luxe geheel.
Dakterras:
Via een vaste trap en een dakopbouw bereik je het royale dakterras van ruim 32m2. Dit is een heerlijke plek waar je de hele dag van de zon kunt genieten. Het terras biedt voldoende ruimte voor een comfortabele loungeset en is perfect voor ontspannen momenten of gezellige avonden met vrienden/familie.
OMGEVING EN BEREIKBAARHEID:
De woning is gelegen in het hart van De Pijp, één van de meest geliefde en levendige wijken van Amsterdam. De Van Ostadestraat is een rustige straat, terwijl je om de hoek direct wordt ondergedompeld in de dynamiek van de buurt.
Op loopafstand vind je de bekende Albert Cuypmarkt, diverse gezellige cafés, restaurants en koffietentjes, evenals winkels voor de dagelijkse boodschappen. Ook het Sarphatipark ligt nabij, een fijne plek voor ontspanning en recreatie.
De bereikbaarheid is uitstekend: met de fiets ben je binnen enkele minuten in het centrum en dankzij de nabijgelegen haltes van de Noord/Zuidlijn en diverse tram- en busverbindingen is de rest van de stad eenvoudig te bereiken.
BIJZONDERHEDEN:
* Gelegen op een toplocatie in De Pijp
* Gelegen op eigen grond!
* Bovenwoning verdeeld over twee woonlagen
* Royaal en zonnig dakterras
* Balkon op het zuiden
* Lichte woonkamer met Frans balkon
* Karakteristieke details zoals ornamentenplafond en schouwen
* Open keuken met veel werk- en opbergruimte
* Twee ruime slaapkamers
* Moderne badkamer met ligbad, regendouche en dubbele wastafel
* Separate wasruimte
* Veel natuurlijk licht door grote raampartijen en koepel en dakopbouw naar het dakterras
* Energielabel D
* Servicekosten: €260,-
* Oplevering in overleg
***ENGLISH***
PUUR* living in the highly sought-after De Pijp, where vibrancy, character, and comfort come together in a charming upper-floor apartment on Van Ostadestraat, situated on freehold land.
Located at Van Ostadestraat 32-3, this attractive and well-designed upper-floor apartment of approximately 125 m² is spread over two levels and features a spacious and sunny roof terrace. The property combines authentic details with pleasant natural light and a practical layout, creating a wonderful living experience in the heart of the city.
Large windows, high ceilings, and characteristic features such as ornamental ceilings and fireplaces give the home a warm and elegant feel. The combination of a bright living room, open kitchen, two generous bedrooms, and a large roof terrace makes this an ideal home for couples and (young) families alike.
LAYOUT:
Entrance:
Access to the apartment is via the communal staircase, leading to the first residential level.
Living floor:
Upon entering, you step into a spacious and open living area. At the front, you will find the bright living room with large windows and French doors opening onto a charming French balcony. The space is defined by a beautiful ornamental ceiling and a stylish fireplace, creating a characterful atmosphere.
At the rear of the property is the dining area, offering ample space for a large dining table; ideal for entertaining or family living. The open kitchen connects seamlessly and features generous workspace, a freestanding gas stove with a robust look, and plenty of storage.
French doors from the dining area provide access to the south-facing balcony, where you can enjoy the sun throughout the day. The direct connection between indoors and outdoors enhances the living experience, allowing the dining area and balcony to flow naturally into one another.
This floor also includes a separate toilet, conveniently located and neatly finished.
Sleeping floor:
In the center of the living space, a characteristic staircase leads to the upper floor. Here, you arrive at a spacious and bright landing, featuring a skylight that provides pleasant natural daylight. There is also a practical and modern built-in wardrobe offering ample storage. This generous central space could relatively easily be converted into a third bedroom.
This level offers two large bedrooms, located at both the front and rear of the property. The front bedroom features subtly integrated shelving within the wall, creating a sleek and functional design.
Additionally, there is a separate laundry room on this floor, with space for both a washing machine and dryer, as well as extra storage.
Adjacent to the staircase leading to the roof terrace is the well-maintained and modern bathroom, equipped with a bathtub, rain shower, and a long double vanity, providing a comfortable and luxurious feel.
Roof terrace:
A fixed staircase and roof extension lead to the spacious roof terrace of over 32 m². This is a wonderful place to enjoy the sun all day long. The terrace offers ample space for a comfortable lounge set and is perfect for relaxing or entertaining friends and family.
LOCATION AND ACCESSIBILITY:
The property is located in the heart of De Pijp, one of Amsterdam’s most popular and vibrant neighborhoods. Van Ostadestraat itself is a quiet street, yet just around the corner you are immersed in the lively atmosphere of the area.
Within walking distance, you will find the famous Albert Cuyp Market, a wide variety of cafés, restaurants, and coffee spots, as well as shops for daily groceries. Sarphatipark is also nearby, offering a pleasant space for relaxation and recreation.
Accessibility is excellent: the city center can be reached within minutes by bike, and with nearby stops for the North/South metro line as well as various tram and bus connections, the rest of the city is easily accessible.
HIGHLIGHTS:
* Prime location in De Pijp
* Situated on freehold land (no leasehold)
* Upper-floor apartment spread over two levels
* Spacious and sunny roof terrace
* South-facing balcony
* Bright living room with French balcony
* Characteristic details such as ornamental ceilings and fireplaces
* Open kitchen with ample workspace and storage
* Two generous bedrooms
* Modern bathroom with bathtub, rain shower, and double vanity
* Separate laundry room
* Abundant natural light through large windows, skylight, and roof extension
* Energy label D
* Service charges: €260 per month
* Transfer date in consultation
Kenmerken
- Koopprijs
- € 975.000,-
- Plaats
- Amsterdam
- Status
- Beschikbaar
- Buurt
- Cornelis Troostbuurt
- Aantal kamers
- 3
- Aantal slaapkamers
- 2
- Aantal badkamers
- 1
- Woonoppervlakte
- 125 m2
- Ligging
- Aan rustige weg, In centrum, In woonwijk
- Type verwarming
- CV ketel
- Onderhoud buiten
- Goed
- Onderhoud binnen
- Goed
- Voorzieningen
- Mechanische ventilatie, Frans balkon, Natuurlijke ventilatie
- Energieklasse
- D
- Soort dak
- Plat dak
- Parkeer faciliteiten
- Betaald parkeren, Parkeervergunningen
- Schuur/bergruimte
- 1
- Woning type
- Appartement
Plattegronden
Uitzicht op straat
Zoek de locatie
kom jij kijken?
Een bezoek vertelt het meest. Onze makelaars nemen graag de tijd voor een rustige rondleiding.
Contacteer ons nu












































