Van Ostadestraat 436, Amsterdam
BeschikbaarPrijs: € 900.000,-
Beschrijving
PUUR* wonen
Midden in het hart van de geliefde Amsterdamse wijk De Pijp bieden wij met trots dit charmante en goed onderhouden volledige woonhuis van circa 85,5 m² aan, verdeeld over de begane grond, eerste verdieping en sfeervolle zolderverdieping. De woning combineert karakter, comfort, een zeldzame kans om een compleet huis te bemachtigen in deze geliefde buurt.
De authentieke voorgevel geeft het huis direct een warme uitstraling, terwijl binnen een lichte woonkamer, moderne keuken en meerdere slaapkamers op u wachten. Buiten beschikt de woning over een ruime tuin van circa 28 m² met een grote schuur van circa 5,6 m², én een balkon van circa 8,3 m² op de eerste verdieping.
De woning is gelegen op eigen grond. De tuin valt onder erfpacht, waarvoor een canon van € 173,87 geldt tot en met 31/12/2039.
INDELING
Begane grond:
Via de charmante voorgevel stapt u binnen in de lichte woonkamer, waar de openslaande deuren naar de tuin meteen in het oog springen. Aan de achterzijde bevindt zich de keuken, die direct grenst aan de buitenruimte.
De tuin is verrassend ruim voor deze locatie in De Pijp en biedt volop mogelijkheden voor een loungeset en eettafel. Achterin bevindt zich een ruime schuur van circa 5,6 m², ideaal voor opslag, fietsen of hobby’s.
Centraal in de woning vindt u de trap naar boven. Hier komt de originele trapbalustrade mooi tot zijn recht.
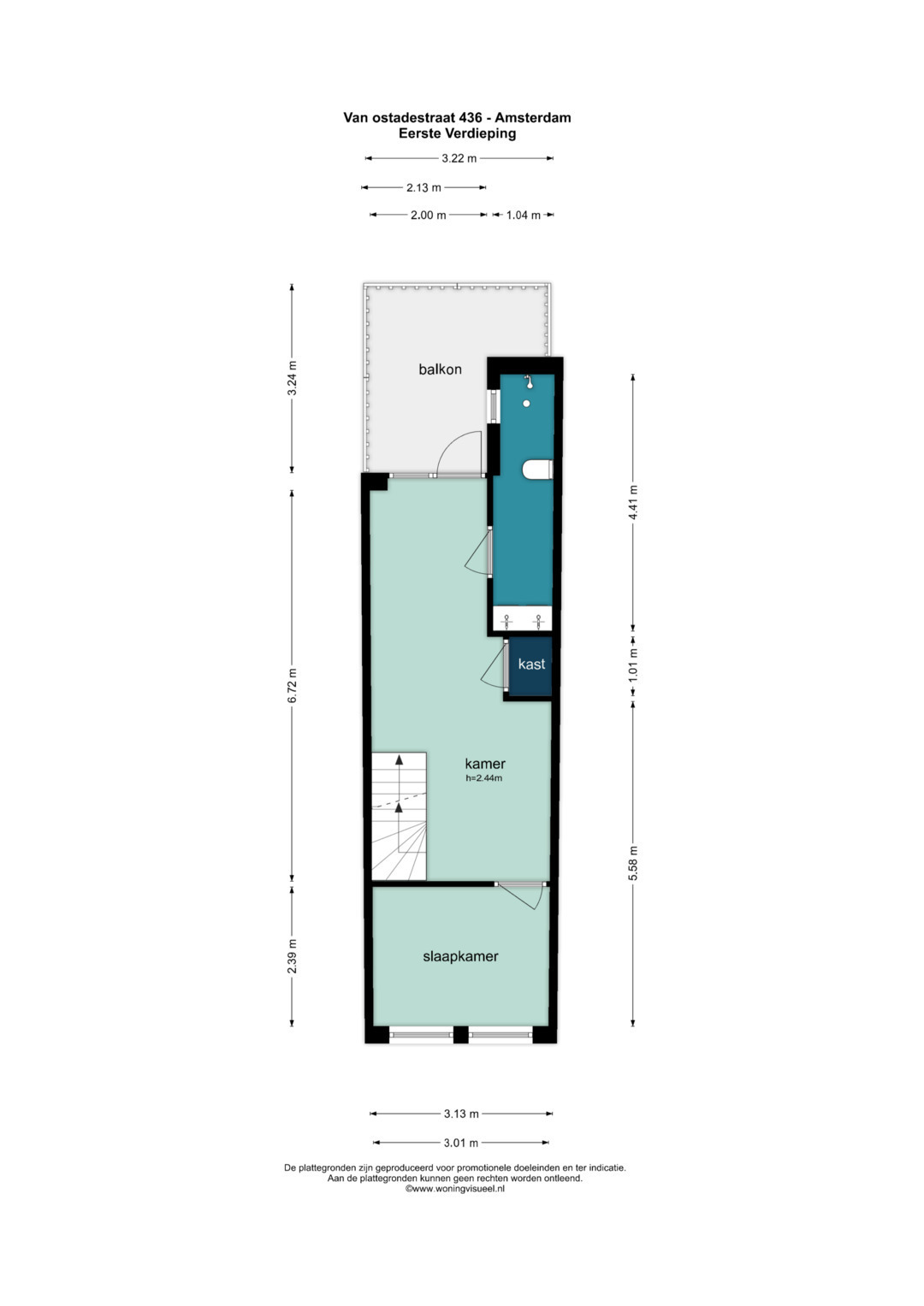
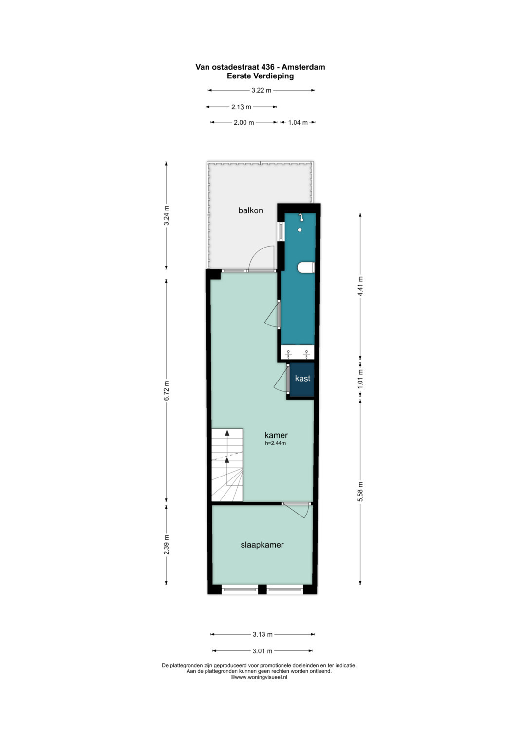
Eerste verdieping:
Op deze verdieping bevindt zich een lichte slaapkamer, waarbij de originele glas-in-loodramen een prachtig klassiek accent vormen en voor een warme sfeer zorgen. Daarnaast vindt u hier de badkamer, uitgerust met een inloopdouche, toilet en wastafel. In de hal op de eerste verdieping is er veel ruimte, waardoor er de mogelijkheid is om een bureau te plaatsen voor werk of studie. Vanuit de verdieping is er tevens toegang tot het balkon van circa 8,3 m², gelegen aan de rustige achterzijde.
Zolderverdieping:
De bovenste verdieping biedt twee knusse slaapkamers met dakramen, ideaal als kinder-, werk- of logeerruimte.
Locatie:
Van Ostadestraat 436 ligt in een rustige en geliefde straat midden in De Pijp, op loopafstand van de Albert Cuypmarkt, het Sarphatipark en talloze cafés, boetieks en restaurants. Ook de Noord/Zuidlijn en diverse tramverbindingen zijn nabij, waardoor de bereikbaarheid uitstekend is. Een perfecte balans tussen rustig wonen en het bruisende stadsleven.
Grond situatie:
Het woonhuis staat op eigen grond, de tuin op gemeentelijke erfpacht. De jaarlijkse erfpacht voor de tuin bedraagt € 173,87 per jaar en wordt elke 5 jaar geïndexeerd. Eerste index per 2029 en het contract is voortdurend en loopt tot 31-12-2029.
HIGHLIGHTS
* Woning op eigen grond;
* Compleet woonhuis: begane grond, eerste verdieping en zolder;
* 85,5 m² woonoppervlakte (NEN 2580 meetrapport beschikbaar);
* Energielabel D;
* Ruime tuin van ca. 28 m²;
* De tuin is gelegen op erfpacht, canon € 173,87 tot en met 2039 (alleen over de tuin);
* Schuur van ca. 5,6 m²;
* Balkon van ca. 8,3 m²;
* Originele glas-in-loodramen, originele trapbalustrade & authentieke voorgevel;
* 3 slaap-, kinder-, werk- of logeerkamers;
* Rustige ligging in hartje De Pijp.
*** English***
PURE* living in the Heart of De Pijp
Right in the heart of Amsterdam’s beloved De Pijp neighborhood, we proudly present this charming and well-maintained townhouse of approximately 85.5 m², spanning the ground floor, first floor, and a cozy attic. Combining character, comfort, and a rare opportunity to own a complete home in this sought-after area, this property is a true gem.
The authentic façade immediately radiates warmth, while inside, a bright living room, modern kitchen, and multiple bedrooms await. Outside, you’ll find a generous garden of approximately 28 m² with a large shed of around 5.6 m², as well as a balcony of approximately 8.3 m² on the first floor.
The property is situated on freehold land. The garden is subject to a leasehold, with a current ground rent of €173.87 valid through 2029.
LAYOUT
Ground Floor:
Step through the charming façade into a bright living room, where French doors seamlessly connect the interior to the garden. At the rear of the house, the modern kitchen opens directly onto the outdoor space.
For a property in the heart of De Pijp, the garden is surprisingly spacious, offering plenty of room for a lounge set and dining area. At the rear, a large shed of approximately 5.6 m² provides practical storage for bicycles, tools, or hobbies.
Centrally located in the home, the staircase to the upper floors features the original railing, adding a touch of classic charm.
First Floor:
The first floor features a bright bedroom with original stained-glass windows, which provide a beautiful classic accent and a warm atmosphere. The bathroom includes a walk-in shower, toilet, and sink. The hallway on this level is spacious enough to accommodate a desk for work or study. From here, you can also access the balcony of approximately 8.3 m², situated at the quiet rear of the house.
Attic:
The top floor offers two cozy bedrooms with skylights, perfect for children, a home office, or guest rooms.
Land situation:
The house itself stands on freehold land, while the garden is on municipal leasehold. The annual ground rent for the garden is €173.87 and is indexed every five years. The first indexation will take place in 2029, and the contract is continuous and runs until 31-12-2029.
LOCATION
Van Ostadestraat 436 is located on a peaceful and highly desirable street in the heart of De Pijp, within walking distance of the Albert Cuyp Market, Sarphati Park, and countless cafés, boutiques, and restaurants. Excellent public transport options are nearby, including the North/South metro line and several tram lines, making the city easily accessible. This location offers the perfect balance between tranquil living and vibrant city life.
HIGHLIGHTS
* Freehold land for the house;
* Complete townhouse: ground floor, first floor, and attic;
* Approximately 85.5 m² of living space (NEN 2580 measurement report available);
* Energy label D;
* Garden on leasehold, ground rent €173.87 until 2039 (garden only);
* Generous garden of approx. 28 m²;
* Shed of approx. 5.6 m²;
* Balcony of approx. 8.3 m²;
* Original stained-glass windows, staircase railing, and authentic façade;
* Three bedrooms suitable for sleeping, children, work, or guests;
* Quiet, central location in De Pijp.
Kenmerken
- Koopprijs
- € 900.000,-
- Plaats
- Amsterdam
- Status
- Beschikbaar
- Buurt
- Willibrordusbuurt
- Aantal kamers
- 5
- Aantal slaapkamers
- 3
- Aantal badkamers
- 1
- Woonoppervlakte
- 86 m2
- Perceel oppervlakte
- 76 m2
- Ligging
- Aan rustige weg, In centrum
- Bouwjaar
- 1880
- Type verwarming
- CV ketel
- Onderhoud buiten
- Goed tot uitstekend
- Onderhoud binnen
- Goed tot uitstekend
- Voorzieningen
- Mechanische ventilatie, TV kabel
- Energieklasse
- D
- Soort dak
- Tentdak
- Parkeer faciliteiten
- Openbaar parkeren, Betaald parkeren, Parkeervergunningen
- Schuur/bergruimte
- 1
- Woning type
- Woonhuis
Plattegronden
Uitzicht op straat
Zoek de locatie
kom jij kijken?
Een bezoek vertelt het meest. Onze makelaars nemen graag de tijd voor een rustige rondleiding.
Contacteer ons nu





























