Veenbergplein 27, Haarlem
VerkochtBeschrijving
PUUR* wonen in deze karakteristieke jaren ’30 gezinswoning met vrij uitzicht over plein in de Bomenbuurt. Aan dit rustige en kindvriendelijke plein staat deze fijne woning met voortuin en zonnige achtertuin op het westen met achterom. Veel van de originele details zijn nog bewaard gebleven, denk hierbij aan het glas-in-lood, granito vloer en mooie marmeren schouwen. Het dak is in 2022 volledig vernieuwd en toen ook geïsoleerd. Kom kijken en laat je verrassen door dit leuke gezinshuis
Locatie
De Bomenbuurt is een gewilde buurt: rustig en toch dichtbij het centrum van Haarlem. In de buurt zijn er verschillende winkels en supermarkten en de Generaal Cronjéstraat is op loopafstand. Ook is er veel “groen” in de directe omgeving. De woning ligt aan het leuke beschutte Veenbergplein en vlakbij de sportvelden aan de Jan Haringstraat met de daar achtergelegen speeltuin “Burcht ter Cleeff” en het weiland met de bekende Schoterveense Molen en de Haarlemmer Kweektuin met natuurspeeltuin, kabouterpad, het Kweekcafé en de ruïnes Huis ter Kleef. Het strand en de duinen zijn op circa 20 fietsminuten en op ongeveer 5 minuten fietsen is station Haarlem en dan ben je in 15 minuten op Amsterdam Centraal.
Goed om te weten:
* Woonoppervlakte circa 133m² (zie meetrapport)
* 5 slaapkamers
* Mogelijkheid voor tweede badkamer
* Vrij uitzicht over het plein
* Groot perceel van 144m²
* Energielabel C
* Veel parkeerruimte voor de deur
* Achtertuin op het westen met achterom
* Mogelijkheid voor 2e badkamer
* Dak in 2022 vernieuwd, geïsoleerd met garantie
* Achtertuin met achterom op het westen
* Dichtbij het centrum van Haarlem en het centraal station
* Oplevering in overleg
Indeling
Begane grond: Voortuin, vestibule met granito, glas-in-lood en origineel tegelwerk, hal met trapkast en modern toilet met fontein, dubbele deuren naar de ruime woonkamer met aan voorzijde een mooie marmeren schouw met open haard. Aan de achterzijde de eetkamer met open keuken en openslaande deuren naar de tuin op westen voorzien met schuur en achterom
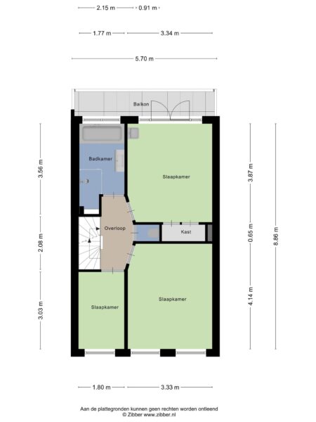
Eerste verdieping: overloop met toilet, ruime badkamer aan achterzijde met bad, inloopdouche en wastafelmeubel, slaapkamer achterzijde met vaste kasten en toegang naar het balkon over de hele breedte van het huis. Twee slaapkamers aan de voorzijde, beide met mooi zicht over het plein.
Tweede verdieping: riante overloop, grote slaapkamer aan achterzijde over de gehele breedte van het huis, ruime wasruimte met aansluitingen voor een tweede badkamer, grote slaapkamer aan voorzijde over de gehele breedte
Zie voor de indeling en afmetingen de plattegronden.
Via overloop toegang tot ruime bergvliering
*ENGLISH TEXT*
PUUR* living in this characteristic ’30s family home with unobstructed views over the square in the Bomenbuurt. On this quiet and child-friendly square is this fine home with front garden and sunny backyard facing west with back entrance. Many of the original details have been preserved, think of the stained glass, granite floors and beautiful marble fireplaces. The roof was completely renewed in 2022 and then also insulated. Come look and be surprised by this nice family home.
Location
The Bomenbuurt is a sought-after neighborhood: quiet yet close to the center of Haarlem. In the neighborhood there are several stores and supermarkets and the General Cronjéstraat is within walking distance. There is also a lot of “green” in the immediate vicinity. The house is located on the nice sheltered Veenbergplein and near the sports fields on the Jan Haringstraat with the playground “Burcht ter Cleeff” behind it and the meadow with the famous Schoterveense Molen and the Haarlemmer Kweektuin with nature playground, kabouterpad, the Kweekcafé and the ruins Huis ter Kleef. The beach and dunes are about 20 biking minutes away and about 5 minutes by bike is Haarlem train station and then you can get to Amsterdam Central in 15 minutes.
Good to know:
* Living area approximately 133m² (see measurement report)
* 5 bedrooms
* Possibility for second bathroom
* Unobstructed views over the square
* Large plot of 144m²
* Energy label C
* Lots of parking space in front of the door
* West-facing backyard with back entrance
* Possibility for 2nd bathroom
* Roof renewed in 2022, insulated with warranty
* Backyard with back entrance on the west
* Close to the center of Haarlem and central station
* Delivery in consultation
Classification
First floor: Front garden, vestibule with granite, stained glass and original tiling, hall with stairs cupboard and modern toilet with fountain, double doors to the spacious living room with a beautiful marble fireplace at the front. At the rear, the dining room with open kitchen and doors to the garden on the west with shed and back entrance.
Second floor: landing with toilet, spacious bathroom at the rear with bath, walk-in shower and washbasin, rear bedroom with closets and access to the balcony over the entire width of the house. Two bedrooms at the front, both with nice views over the square.
Second floor: spacious landing, large rear bedroom across the width of the house, spacious laundry room with connections for a second bathroom, large front bedroom across the width of the house.
See floor plans for layout and dimensions.
Through overflow access to large storage attic
Algemeen
- Plaats
- Haarlem
- Status
- Verkocht
- Buurt
- Schoterveenpolder
- Aantal kamers
- 7
- Aantal slaapkamers
- 5
- Aantal badkamers
- 1
- Woonoppervlakte
- 133 m2
- Perceel oppervlakte
- 139 m2
- Ligging
- Aan rustige weg, In woonwijk, Vrij uitzicht
- Bouwjaar
- 1933
- Isolatie
- Dakisolatie, Dubbelglas
- Type verwarming
- CV ketel, Open haard
- Onderhoud buiten
- Goed
- Onderhoud binnen
- Goed
- Voorzieningen
- TV kabel, Dakraam, Glasvezel kabel, Natuurlijke ventilatie
- Energieklasse
- C
- Soort dak
- Samengesteld dak
- Parkeer faciliteiten
- Openbaar parkeren
- Woning type
- Woonhuis






















































