Veldzigtlaan 124, Haarlem
VerkochtBeschrijving
PUUR* wonen in de rustige en groene wijk Veldzigt, aan de rand van Haarlem en Overveen, bevindt zich dit charmante 2-kamerappartement op de bovenste verdieping van een goed onderhouden complex. Met een woonoppervlakte van ca. 40 m², een zonnig balkon op het westen en vrij uitzicht over de gemeenschappelijke binnentuin, biedt deze woning een ideale combinatie van comfort en locatie.
Goed om te weten:
* Bouwjaar: 1965
* Energielabel C
* Zonnig balkon op het westen met vrij uitzicht
* Geheel voorzien van dubbel glas
* Actieve en gezonde VvE
* Eigen berging en gezamenlijke fietsenberging
* Lift aanwezig in het complex
* Verwarming middels blokverwarming
* Servicekosten: ca. €280,- per maand (incl. stookkosten, water en opstalverzekering)
Indeling:
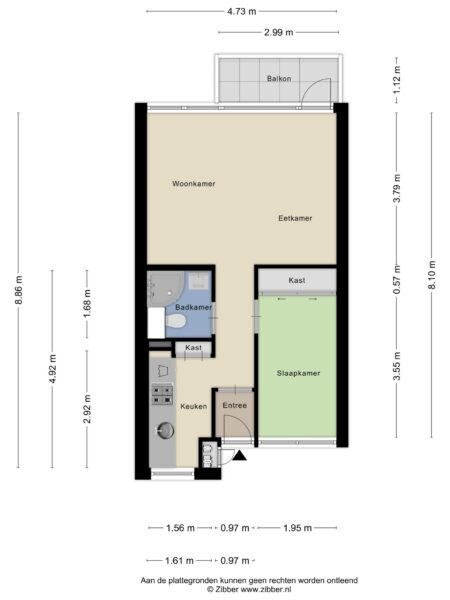
Bij binnenkomst leidt de hal naar alle vertrekken. De lichte woonkamer aan de achterzijde heeft grote ramen en biedt toegang tot het balkon, waar u kunt genieten van de middag- en avondzon. De keuken is voorzien van inbouwapparatuur en biedt ruimte voor een wasmachine. De slaapkamer aan de voorzijde beschikt over een inbouwkast. De badkamer is uitgerust met een douche, wastafelmeubel, radiator en toilet. De gehele woning is voorzien van een houten vloer.
Locatie:
De Veldzigtlaan is ideaal gelegen: op loopafstand van de dorpskern van Overveen met diverse winkels en supermarkten, en op fietsafstand van het centrum van Haarlem. Natuurgebieden zoals het Brouwerskolkpark en Nationaal Park Zuid-Kennemerland zijn nabij, evenals het strand van Bloemendaal. Openbaar vervoer is uitstekend geregeld met bushaltes en station Overveen in de buurt.
*ENGLISH TEXT*
PUUR* living in the quiet and green Veldzigt district, on the edge of Haarlem and Overveen, is this charming 2-room flat on the top floor of a well-maintained complex. With a living area of around 40 m², a sunny west-facing balcony and unobstructed views over the communal courtyard garden, this property offers an ideal combination of comfort and location.
Good to know:
* Year of construction: 1965
* Energylabel C
* Sunny west-facing balcony with unobstructed views
* Fully double-glazed
* Active and healthy VvE
* Private storage room and communal bicycle storage
* Lift in the complex
* Heating via block heating
* Service costs: approx. €280,- per month (incl. heating, water and building insurance)
Layout:
Upon entering, the hallway leads to all rooms. The bright living room at the rear has large windows and provides access to the balcony, where you can enjoy the afternoon and evening sun. The kitchen is equipped with built-in appliances and offers space for a washing machine. The front bedroom features a built-in wardrobe. The bathroom is equipped with a shower, washbasin, radiator and toilet.
Location:
Veldzigtlaan is ideally located: within walking distance of the village centre of Overveen with several shops and supermarkets, and within cycling distance of the centre of Haarlem. Nature areas such as the Brouwerskolkpark and Zuid-Kennemerland National Park are nearby, as is the beach of Bloemendaal. Public transport is excellent with bus stops and Overveen station nearby
Algemeen
- Plaats
- Haarlem
- Status
- Verkocht
- Buurt
- Veldzigt
- Aantal kamers
- 2
- Aantal slaapkamers
- 1
- Aantal badkamers
- 1
- Woonoppervlakte
- 39 m2
- Ligging
- Aan rustige weg, In woonwijk, Vrij uitzicht
- Bouwjaar
- 1965
- Isolatie
- Dakisolatie, Dubbelglas
- Type verwarming
- Blokverwarming
- Onderhoud buiten
- Redelijk tot goed
- Onderhoud binnen
- Goed
- Voorzieningen
- TV kabel, Glasvezel kabel, Natuurlijke ventilatie
- Energieklasse
- C
- Soort dak
- Plat dak
- Parkeer faciliteiten
- Parkeervergunningen
- Schuur/bergruimte
- 1
- Woning type
- Appartement























