Vogelenzangseweg 79a4, Vogelenzang
BeschikbaarPrijs: € 895.000,-
Beschrijving
Gelijkvloers wonen met een fantastisch wijds uitzicht
Op de parterre van een mooi, kleinschalig appartementencomplex genaamd Beuckendael ligt dit zeer comfortabele 3 kamer appartement met een groot zonnig terras, een eigen berging en een inpandige parkeerplaats. Het complex maakt o.a. samen met Beuckenduyn deel uit van landgoed Beuckenhaege (ca. 2 ha groot). U woont hier rustig, comfortabel en heerlijk gelijkvloers. Het appartement heeft een rustige en unieke ligging. Vanuit de vele raampartijen die het rijk is, er is een fijn lichtinval en heeft u een vrij zicht op het parkachtige groen en een landelijk wijds uitzicht over de tegenover gelegen weilanden.
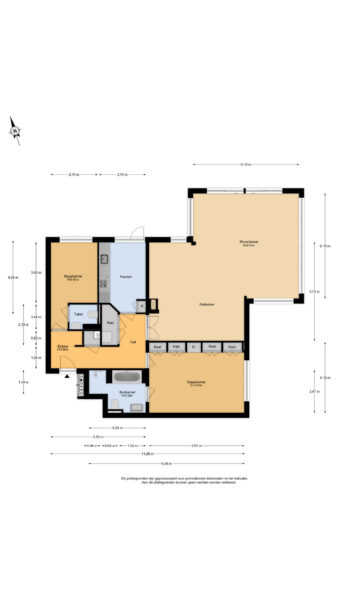
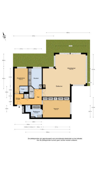
Het riante appartement heeft een ruimtelijke indeling en een uitstekende woonoppervlakte van ca. 134 m². U beschikt over een ruime woonkamer, een moderne nette keuken, twee slaapkamers waarvan 1 met toegang tot de moderne nette badkamer. Een inpandige berging met wasmachine aansluiting en gasten toilet. Vanuit zowel de woonkamer, de keuken, als één van de slaapkamers is het zonnige terras bereikbaar. Dit terras grenst aan de gemeenschappelijke en fraai aangelegde tuin, wat zorgt voor een extra ruimtelijk en open gevoel.
In het souterrain heeft u een eigen ruime berging en een vaste parkeerplaats in de afgesloten parkeerkelder. Zowel de berging als de parkeergarage zijn rechtstreeks binnendoor via de gemeenschappelijke hal met lift en het trappenhuis bereikbaar. Het complex is voorzien van een afgesloten entree en een videofoon installatie waardoor er een fijn en geborgen woongenot gecreëerd wordt. Daarnaast is er op het terrein voldoende parkeergelegenheid aanwezig waaronder enkele plekken met een elektrisch oplaadpunt.
Op zeer korte afstand bevindt zich het dorpscentrum van Vogelenzang met een aantal winkels en voorzieningen. De winkelstraat van Bennebroek en Heemstede liggen tevens dichtbij alsmede het gezellige stadshart van Haarlem welke met ca. 15 automin. bereikbaar is. Tevens bevinden zich sportclubs, restaurants, diverse prachtige natuurgebieden en buitenplaatsen w.o. Leyduin en de ingang van de Waterleidingduinen, het strand van Langevelderslag/Zandvoort en diverse uitvalswegen naar Amsterdam, Wassenaar/Den Haag liggen in directe woonomgeving.
Indeling:
Parterre: entree met bellentableau, brievenbussen, afgesloten hal met toegang naar lift en trappenhuis, entree appartement, hal met garderobenis, gasten toilet, inpandige berging met wasmachine/droger aansluiting en bergkast met cv-ketel, zeer royale en lichte woonkamer met veel grote raampartijen en dubbele schuifpui naar het terras, moderne nette keuken met diverse inbouwapparatuur en deur naar terras, slaapkamer met grote kastenwand en toegang naar moderne nette badkamer voorzien van ligbad, douche, wastafelmeubel, zwevend toilet en handdoekradiator, 2e slaapkamer met schuifpui naar terras en aansluitend gasten toilet met modern zwevend toilet en wastafelmeubel
Bijzonderheden:
* Woonoppervlakte ca. 134 m2 en inhoud ca. 500 m3
* Parterre appartement
* Fijn lichtinval
* Zeer zonnig terras
* Vrij en wijds uitzicht over weilanden
* Diverse extra’s: alarminstallatie, videofooninstallatie
* Het gebouw is voorzien van zonnepanelen, die gebruikt worden voor de stroomvoorziening van het gebouw en laadpaal
* Bezoekers parkeren op eigen terrein
* Lift naar inpandige garage en berging aanwezig
* Servicekosten thans €416,87 per maand
* Voor indeling en maatvoering zie plattegronden
* Een uitgebreide verkoopbrochure kunt u downloaden via onze site
* Oplevering in overleg
Kenmerken
- Koopprijs
- € 895.000,-
- Plaats
- Vogelenzang
- Status
- Beschikbaar
- Buurt
- Vogelenzang
- Aantal kamers
- 4
- Aantal slaapkamers
- 2
- Aantal badkamers
- 1
- Woonoppervlakte
- 134 m2
- Ligging
- Aan park, Aan rustige weg, Vrij uitzicht, Beschutte ligging, In bosrijke omgeving
- Bouwjaar
- 1988
- Isolatie
- Volledig geïsoleerd
- Type verwarming
- CV ketel
- Onderhoud buiten
- Goed
- Onderhoud binnen
- Goed
- Voorzieningen
- alarminstallatie, TV kabel, Lift, Glasvezel kabel
- Energieklasse
- C
- Parkeer faciliteiten
- Op eigen terrein
- Schuur/bergruimte
- 1
- Woning type
- Appartement
Plattegronden
Uitzicht op straat
Zoek de locatie
kom jij kijken?
Een bezoek vertelt het meest. Onze makelaars nemen graag de tijd voor een rustige rondleiding.
Contacteer ons nu












































