Voorzorgstraat 64A, Haarlem
VerkochtBeschrijving
Sfeervolle zeer lichte hoekwoning gelegen in de gezellige Leidsebuurt op de hoek van de Voorzorgstraat en Leidsestraat. Door de grote raampartijen rondom de begane grond is de woning extra licht en er is ” vrij” uitzicht in de omliggende straten. Deze woning heeft een oppervlakte van ca. 73 m2 verdeeld over twee woonlagen en op de 1e verdieping is een terras over de breedte van de woning gelegen op het zuid/westen. Op de begane grond is een ruime woonkamer met open eenvoudige keuken. Op de 1e verdieping zijn twee slaapkamers waarvan de achterkamer toegang geeft tot een terras over de breedte van de woning. De ligging is perfect op loopafstand van het centrum van Haarlem en letterlijk om de hoek zijn de winkels van Plaza west met o.a de Albert Heijn, Etos, Aldi etc. De buitenzijde is goed onderhouden en grotendeels voorzien van dubbel glas en de fundering is ook vernieuwd.
Kortom een gezellige sfeervolle woning welke snel te betrekken is.
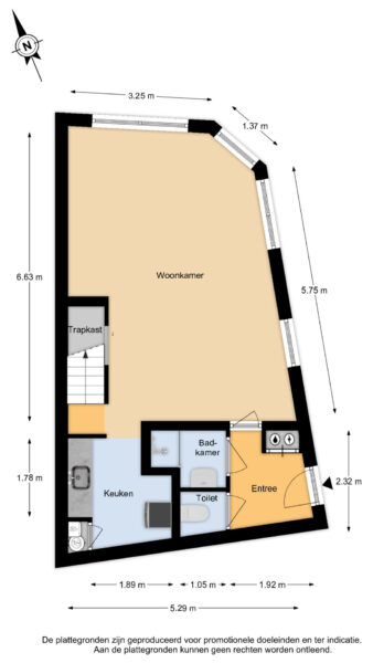
Indeling:
Begane grond: entree, hal, meterkast, toilet, badkamer met douche en wastafel, lichte woonkamer met open trap, trapkast, semi open eenvoudige keuken
1e verdieping: overloop, voorslaapkamer, achterslaapkamer met toegang naar terras.
Algemeen:
* fundering vernieuwd
* extra lichte woonkamer door hoekligging
* grotendeels v.v. isolerende beglazing
* platte dak vernieuwd
* voorzien van C.V. installatie
* Knus dakterras op de 1e verdieping
* Oplevering in overleg (kan snel)
Algemeen
- Plaats
- Haarlem
- Status
- Verkocht
- Buurt
- Leidsebuurt-west
- Aantal kamers
- 3
- Aantal slaapkamers
- 2
- Aantal badkamers
- 1
- Woonoppervlakte
- 73 m2
- Perceel oppervlakte
- 50 m2
- Ligging
- Aan rustige weg, In woonwijk
- Bouwjaar
- 1890
- Isolatie
- Muurisolatie, Dubbelglas
- Type verwarming
- CV ketel
- Onderhoud buiten
- Goed
- Onderhoud binnen
- Goed
- Energieklasse
- C
- Soort dak
- Plat dak
- Parkeer faciliteiten
- Betaald parkeren
- Woning type
- Woonhuis





























