Wagenweg 154, Haarlem
BeschikbaarPrijs: € 1.560.000,-
Beschrijving
PUUR* woongeluk: zeer sfeervol familiehuis in het Bos en Vaart Kwartier met direct bij binnenkomst een fijn gevoel.
Met vrij uitzicht op het stadsbos “de Haarlemmerhout”, dichtbij het centrum van de stad, staat dit prachtige herenhuis met heerlijke beschutte onder architectuur aangelegde tuin met schuur en achterom, ideaal voor kinderen. Het huis is geschikt voor grotere gezinnen, door de ruime maatvoering met hoge ornamenten plafonds en vele originele 1900 stijlkenmerken. Parkeergelegenheid om de hoek. Op deze plek ervaar je het beste van twee werelden: rust en ruimte, op steenworp afstand van het centrum van Haarlem.
Indeling
Begane grond
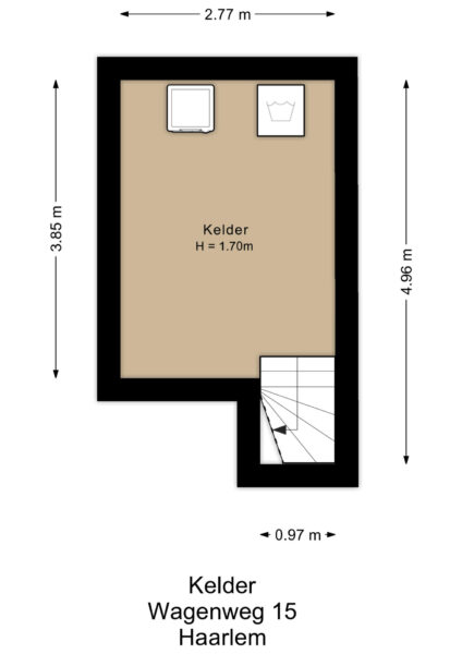
Entree, bij binnenkomst valt direct de authentiek marmeren vloer op in de vestibule gevolgd door prachtige glas-in-lood deuren, hoge ornamenten plafonds, paneeldeuren en een klassieke en suite-indeling. In de hal tref je de wc met fonteintje, een trapkast en de toegang tot de kelder. De kelder dient als praktische opslagruimte en beschikt over een aansluiting voor wasapparatuur. De brede, lichte en sfeervolle woonkamer en suite heeft een fraaie visgraat parketvloer, een erker aan de voorkant met prachtige raampartij en een gashaard en grenst aan de serre en de keuken met toegang tot de zonnige tuin. Deze is voorzien van diverse inbouwapparatuur en biedt toegang tot de zonnige tuin.
Eerste verdieping
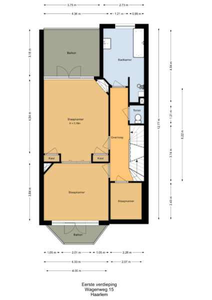
Brede overloop, toilet met fontein, luxe badkamer met wastafel, bad en inloopdouche. Deze verdieping beschikt over twee slaapkamers (waarvan een in gebruik als royale werkkamer) beide met openslaande deuren naar balkon, waarvan een met de originele schouw, de derde slaapkamer is thans in gebruik als kleedkamer.
Tweede verdieping
Overloop. 2e badkamer met inloopdouche en wastafel aan de voorzijde. Voor karakteristieke slaapkamer, achter ruime slaapkamer met vaste kasten en derde slaapkamer met deur naar balkon/terras met tot in de late avond zon op het zuidwesten.
Goed om te weten
* Familiehuis op een centrale locatie
* Licht huis met veel zoninval
* Bouwjaar: 1902. Woonoppervlakte: 223m². Inhoud: 926m³. Perceel: 193m².
* 10 zonnepanelen (2023)
* Energielabel C, grotendeels dubbel glas, vloer- en dakisolatie
* Gemetselde fundering (geen houten palen)
• Vele prachtige originele stijlkenmerken zijn bewaard gebleven (o.a. marmeren vloertegels, paneeldeuren, glas in lood)
• Vrij parkeren en kindvriendelijk ! aan de achterzijde ( Bos en Vaartstraat )
• Alle voorzieningen op korte afstand: centrum Haarlem, station, winkels, sportfaciliteiten, kinderopvang, scholen en diverse sportverenigingen
Locatie:
De geliefde Bos en Vaartbuurt met haar statige, ruim opgezette huizen van begin 1900. Niet alleen een fantastische plek voor stadsliefhebbers, maar ook een heerlijke plek voor natuurliefhebbers met Stadsbos de Haarlemmerhout en Buitenplaats Elswout op een steenworp afstand. De bushaltes zijn eveneens op loopafstand met snelle verbindingen naar o.a. de Zuidas, Luchthaven Schiphol, Leiden en Amsterdam. Station Haarlem en NS Station Heemstede/Aerdenhout zijn met de fiets in enkele minuten bereikbaar en met de auto is de A9 super snel te bereiken richting Amsterdam, Amstelveen, Schiphol, Leiden, Den Haag en Alkmaar. Bovendien zijn de stranden van Bloemendaal en Zandvoort per fiets in ca. 25 minuten bereikbaar.
*ENGLISH BELOW*
PUUR* living happiness: very attractive family home in the Bos en Vaart Kwartier neighbourhood that immediately gives you a pleasant feeling upon entering.
With unobstructed views of the Haarlemmerhout city forest, close to the city centre, this beautiful mansion has a lovely sheltered architect-designed garden with a shed and back entrance, ideal for children. The house is suitable for larger families, thanks to its spacious dimensions with high ornamental ceilings and many original 1900s style features. Parking is available around the corner. Here you can experience the best of both worlds: peace and space, just a stone’s throw from the centre of Haarlem.
Layout
Ground floor
Entrance hall: upon entering, you will immediately notice the authentic marble floor in the vestibule, followed by beautiful stained-glass doors, high ornamental ceilings, panelled doors and a classic en suite layout. In the hall, you will find the toilet with washbasin, a stair cupboard and access to the basement. The basement serves as practical storage space and has a connection for washing equipment. The wide, bright and attractive living room en suite has a beautiful herringbone parquet floor, a bay window at the front with beautiful windows and a gas fireplace, and adjoins the conservatory and kitchen with access to the sunny garden. The kitchen is equipped with various built-in appliances and offers access to the sunny garden.
First floor
Wide landing, toilet with washbasin, luxurious bathroom with washbasin, bath and walk-in shower. This floor has two bedrooms (one of which is used as a spacious study), both with French doors to the balcony, one of which has the original fireplace. The third bedroom is currently used as a dressing room.
Second floor
Landing. Second bathroom with walk-in shower and washbasin at the front. Characteristic bedroom at the front, spacious bedroom with fitted wardrobes at the rear and third bedroom with door to balcony/terrace with south-west facing sun until late in the evening.
Good to know
* Family home in a central location
* Bright house with lots of sunlight
* Year of construction: 1902. Living area: 223m². Volume: 926m³. Plot: 193m².
* 10 solar panels (2023)
* Energy label C, mostly double glazing, floor and roof insulation
* Brick foundation (no wooden piles)
• Many beautiful original style features have been preserved (including marble floor tiles, panel doors, stained glass)
• Free parking and child-friendly at the rear (Bos en Vaartstraat)
• All amenities within walking distance: Haarlem city centre, railway station, shops, sports facilities, childcare, schools and various sports clubs
Location:
The beloved Bos en Vaart neighbourhood with its stately, spacious houses from the early 1900s. Not only a fantastic place for city lovers, but also a wonderful place for nature lovers with Stadsbos de Haarlemmerhout and Buitenplaats Elswout just a stone’s throw away. The bus stops are also within walking distance, with fast connections to the Zuidas, Schiphol Airport, Leiden and Amsterdam, among other destinations. Haarlem Station and Heemstede/Aerdenhout NS Station are just a few minutes away by bicycle, and the A9 motorway is very easy to reach by car for journeys to Amsterdam, Amstelveen, Schiphol, Leiden, The Hague and Alkmaar. What’s more, the beaches of Bloemendaal and Zandvoort are only about 25 minutes away by bicycle.
Kenmerken
- Koopprijs
- € 1.560.000,-
- Plaats
- Haarlem
- Status
- Beschikbaar
- Buurt
- Bosch en Vaart
- Aantal kamers
- 8
- Aantal slaapkamers
- 6
- Aantal badkamers
- 2
- Woonoppervlakte
- 223 m2
- Perceel oppervlakte
- 193 m2
- Ligging
- Aan bosrand, In woonwijk
- Bouwjaar
- 1902
- Isolatie
- Dakisolatie, Vloerisolatie, Gedeeltelijk dubbelglas
- Type verwarming
- CV ketel, Gashaard
- Onderhoud buiten
- Goed
- Onderhoud binnen
- Goed
- Voorzieningen
- TV kabel, Zonnepanelen, Natuurlijke ventilatie
- Energieklasse
- C
- Soort dak
- Samengesteld dak
- Parkeer faciliteiten
- Openbaar parkeren
- Schuur/bergruimte
- 1
- Woning type
- Woonhuis
Plattegronden
Uitzicht op straat
Zoek de locatie
kom jij kijken?
Een bezoek vertelt het meest. Onze makelaars nemen graag de tijd voor een rustige rondleiding.
Contacteer ons nu


























































