Wasserij-Annalaan 97, Heemstede
BeschikbaarPrijs: € 487.000,-
Beschrijving
Zo te betrekken appartement met zonnig terras en eigen berging
In een rustige laan met uitsluitend bestemmingsverkeer en op zeer korte loopafstand van een supermarkt en de winkelstraat ligt dit comfortabele appartement. Het appartement heeft een woonoppervlakte van ca. 81 m2 verdeeld over twee verdiepingen en is lekker ruim en licht. Door de vele raampartijen heb je een leuk zicht op de groene woonomgeving en het water. Het appartement is gelegen op de 2e en 3e verdieping van een kleinschalig, laag complex, zonder bovenburen! Het complex heeft een afgesloten entree en is voorzien van een videofooninstallatie. De afgelopen jaren is het complex goed onderhouden. Zo is het dak ca. 1,5 jaar geleden vernieuwd en voorzien van gemeenschappelijke en 2 eigen zonnepanelen maar ook zijn de centrale hallen en het buitenschilderwerk aangepakt.
Op de 2e verdieping vind je een woonkamer met toegang naar het zonnige terras, een eetkeuken en een moderne badkamer. Het terras is op het westen gelegen en is voorzien van een zonwering. De ruime slaapkamer en de walkin kamer met toilet liggen op de 3e verdieping. De walkin kamer kan eventueel dienen als tweede slaapkamer of als werk-/studeerruimte. De mooie pvc-vloer met houtlook door het hele appartement zorgt voor een moderne en onderhoudsvriendelijke uitstraling. Op de parterre heb je een eigen berging. Deze is vanuit buiten makkelijk bereikbaar en is lekker ruim.
De ligging van dit appartement is ideaal. Het ligt op heerlijke rustige plek maar zeer centraal. Even een boodschap doen of lekker winkelen, met een paar minuten lopen sta je op de Binnenweg. Je kan hier uitstekend terecht voor je dagelijkse boodschappen en er zijn veel leuke boetieks en eetgelegenheden te vinden. Wil je even gezellig de stad in dan fiets je zo naar de gezellige binnenstad van Haarlem. Maar ook het NS-Station met directe verbinding naar o.a. Amsterdam, Leiden of Den Haag, ligt op ca. 5 minuten fietsen. Verder biedt deze omgeving een scala aan voorzieningen w.o. sportfaciliteiten tot een overdekte zwembad, het prachtige wandelbos Groenendaal en diverse natuurgebieden. Voor strandliefhebbers is de kust bovendien goed bereikbaar, net als verschillende uitvalswegen die je snel naar andere bestemmingen brengen alsmede Schiphol waar je zowel met het OV als met de auto met ca. 30 minuten bent.
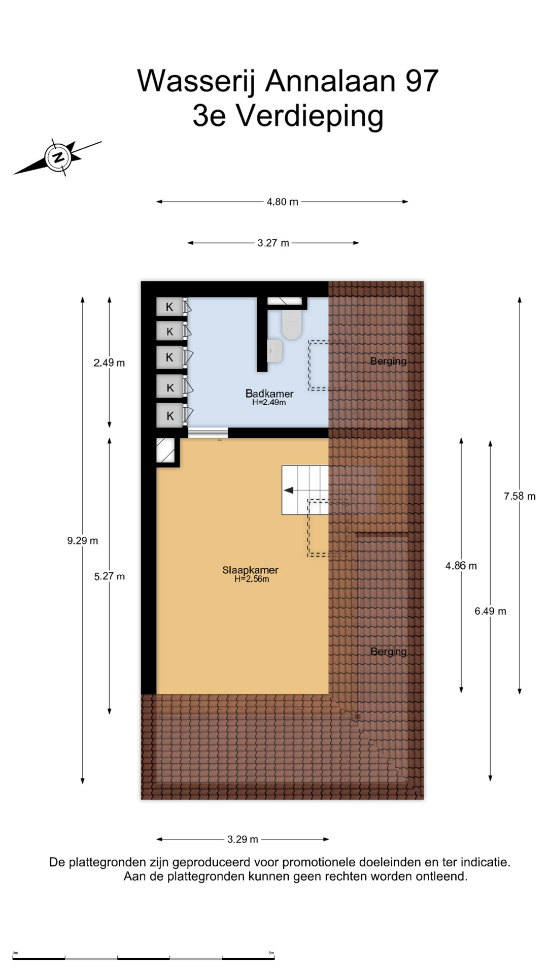
Indeling:
Parterre: afgesloten gemeenschappelijk entree met videofooninstallatie, hal met trap naar….
2e Verdieping: entree appartement, hal voorzien van zeer ruime bergkast met cv-ketel, wasmachine aansluiting en mechanische ventilatie, modern zwevend toilet met fontein, royale en lichte woonkamer met deur naar zonnig terras op het westen, moderne eetkeuken met diverse inbouwapparatuur, moderne badkamer met inloopdouche voorzien van handdouche en rainshower, wastafelmeubel en handdoekradiator, via hal trap naar….
3e Verdieping: ruime slaapkamer met Velux dakraam en veel bergruimte, walk in kamer met vaste kastenwand, Velux dakraam, veel bergruimte en modern zwevend toilet met fontein
Bijzonderheden:
* Woonoppervlakte ca. 81 m2, inhoud ca. 284 m3
* Zo te betrekken
* Voorzien van 2 zonnepanelen
* Pvc vloeren met houtlook
* Geen bovenburen
* Videofooninstallatie aanwezig
* Zonnig terras met zonwering en zicht op het water
* Eigen berging in onderbouw
* Vrij parkeren
* Servicekosten thans € 209,= per maand
* Recent zijn het dak en de entree van het gebouw vernieuwd
* Buitenschilderwerk 2024
* Voor indeling en maatvoering zie plattegronden
* Oplevering in overleg
Kenmerken
- Koopprijs
- € 487.000,-
- Plaats
- Heemstede
- Status
- Beschikbaar
- Buurt
- Centrum
- Aantal kamers
- 4
- Aantal slaapkamers
- 1
- Aantal badkamers
- 1
- Woonoppervlakte
- 81 m2
- Ligging
- Aan water, Aan rustige weg, In woonwijk
- Bouwjaar
- 1986
- Isolatie
- Dubbelglas
- Type verwarming
- CV ketel
- Onderhoud buiten
- Goed
- Onderhoud binnen
- Goed
- Voorzieningen
- Mechanische ventilatie, TV kabel, Buitenzonwering, Dakraam, Zonnepanelen
- Energieklasse
- D
- Soort dak
- Tentdak
- Parkeer faciliteiten
- Openbaar parkeren
- Schuur/bergruimte
- 1
- Woning type
- Appartement
Plattegronden
Uitzicht op straat
Zoek de locatie
kom jij kijken?
Een bezoek vertelt het meest. Onze makelaars nemen graag de tijd voor een rustige rondleiding.
Contacteer ons nu






























