Westergracht 107RD, Haarlem
VerkochtBeschrijving
PUUR* wonen in dit ruime en stijlvolle dubbele bovenwoning met dakterras in Haarlem.
Aan de rand van de gezellige Leidsebuurt vlakbij het stadscentrum ligt dit uitstekend onderhouden dubbele bovenhuis (bouwjaar 1907), met een royale woonkamer, drie slaapkamers, een studeerkamer, een ruim dakterras en een vernieuwde fundering.
In 2014 is de woning volledig gerenoveerd en voorzien van een moderne afwerking. De lichte, ruime woonkamer met hoge plafonds (3 meter) en een semi-open keuken straalt direct een gevoel van ruimte en comfort uit. Aan de achterzijde bevindt zich een breed balkon over de volledige breedte van de woning. Aan de voorzijde ligt een extra kamer, ideaal als werkruimte of garderobe.
Op de tweede verdieping is er wederom veel lichtinval. Hier bevinden zich drie slaapkamers, waarvan één momenteel in gebruik is als walk-in-closet en een andere als logeerkamer. De ruime badkamer is compleet uitgerust met een ligbad, inloopdouche, dubbele wastafel en toilet.
Een absoluut hoogtepunt is het dakterras, bereikbaar via een vaste trap met lichtkoepel. Hier geniet je van een prachtig uitzicht over Haarlem en zon gedurende de hele dag.
Locatie:
Deze woning ligt op een strategische locatie. Binnen vijf minuten fietsen sta je op de Botermarkt, waar elke zaterdag een levendige weekmarkt plaatsvindt. Het Centraal station van Haarlem is te bereiken op 10 minuten fietsen. Het strand van Bloemendaal is in slechts 10 minuten bereikbaar. Daarnaast liggen Nationaal Park Zuid-Kennemerland en Landgoed Elswout in de buurt, perfect voor fiets- en wandeltochten.
Voor dagelijkse voorzieningen ligt Plaza West direct tegenover de woning, met onder andere een grote Albert Heijn, drogisterij, sportschool en speelparadijs Monkey Town. In de zomer biedt openluchtzwembad De Houtvaart een fijne plek om te ontspannen.
Een unieke kans om te wonen op een toplocatie in Haarlem! Maak snel een afspraak voor een bezichtiging
Indeling:
Parterre:
Entree, hal met meterkast.
Eerste verdieping:
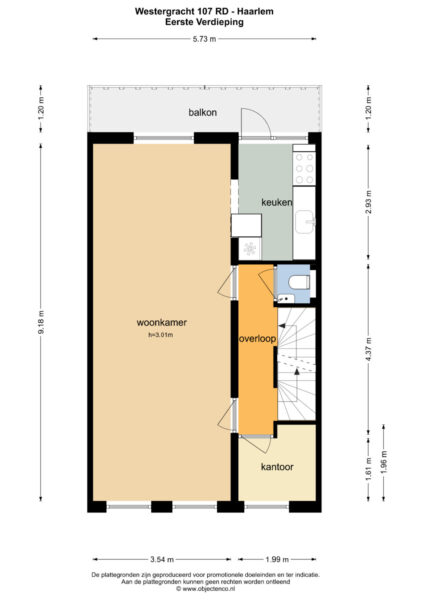
Overloop met toegang tot de gang, separaat toilet met fontein en een werk-/studeerkamer aan de voorzijde. De ruime en lichte woonkamer heeft aan de achterzijde een semi-open keuken met inbouwapparatuur en een deur naar een breed balkon over de gehele achterzijde van de woning.
Tweede verdieping:
Overloop met toegang tot de slaapkamers en overige ruimtes. Aan de voorzijde een ruime slaapkamer. Daarnaast een wasruimte met CV-opstelling. De royale badkamer is voorzien van een ligbad, inloopdouche, toilet, dubbele wastafel en handdoekradiator. Aan de achterzijde bevinden zich twee kamers: een in gebruik als walk-in-closet en een derde slaapkamer. Een vaste trap met lichtkoepel leidt naar het dakterras.
Goed om te weten:
* Fundering hersteld in 2004.
* Energielabel C
* Bouwkundige keuring uitgevoerd in maart 2025.
* Parkeren middels parkeervergunning (€112,- per jaar voor de eerste auto) en bezoekersregeling.
* Elektrische installatie: 8 groepen met 2 aardlekschakelaars.
* Verwarming en warm water via CV-combiketel (ATAG – November 2024)
* Interne renovatie uitgevoerd in 2014.
* Ruim dakterras (bij gedogen)
* Actieve VvE, maandelijkse servicekosten €75,-.
* Oplevering kan snel
*ENGLISH BELOW*
PUUR* living in this spacious and stylish double upper floor apartment with roof terrace in Haarlem.
On the edge of the lively Leidsebuurt neighbourhood, close to the city centre, lies this excellently maintained double upper floor apartment (built in 1907), with a spacious living room, three bedrooms, a study, a large roof terrace and a renovated foundation.
In 2014, the house was completely renovated and given a modern finish. The bright, spacious living room with high ceilings (3 metres) and a semi-open kitchen immediately exudes a feeling of space and comfort. At the rear is a wide balcony across the entire width of the house. At the front is an extra room, ideal as a workspace or wardrobe.
The second floor is also very light and airy. Here you will find three bedrooms, one of which is currently used as a walk-in closet and another as a guest room. The spacious bathroom is fully equipped with a bathtub, walk-in shower, double sink and toilet.
An absolute highlight is the roof terrace, accessible via a fixed staircase with a skylight. Here you can enjoy a beautiful view of Haarlem and sunshine throughout the day.
Location:
This property is strategically located. Within five minutes by bike, you can reach the Botermarkt, where a lively weekly market takes place every Saturday. Haarlem Central Station is a 10-minute bike ride away. The beach at Bloemendaal is only 10 minutes away. In addition, Zuid-Kennemerland National Park and Elswout Estate are nearby, perfect for cycling and walking tours.
For daily amenities, Plaza West is directly opposite the property, including a large Albert Heijn supermarket, chemist, gym and Monkey Town play centre. In summer, the De Houtvaart outdoor swimming pool is a great place to relax.
A unique opportunity to live in a prime location in Haarlem! Make an appointment for a viewing soon.
Layout:
Ground floor:
Entrance hall with meter cupboard.
First floor:
Landing with access to the hallway, separate toilet with washbasin and a study/workroom at the front. The spacious and bright living room has a semi-open kitchen with built-in appliances at the rear and a door to a wide balcony across the entire rear of the house.
Second floor:
Landing with access to the bedrooms and other rooms. At the front is a spacious bedroom. Next to it is a laundry room with central heating system. The spacious bathroom has a bathtub, walk-in shower, toilet, double sink and towel radiator. At the rear are two rooms: one used as a walk-in closet and a third bedroom. A fixed staircase with skylight leads to the roof terrace.
Good to know:
* Foundation repaired in 2004.
* Energy label C
* Structural inspection carried out in March 2025.
* Parking by means of a parking permit (€112 per year for the first car) and visitor regulations.
* Electrical installation: 8 groups with 2 earth leakage switches.
* Heating and hot water via central heating combi boiler (ATAG – November 2024)
* Internal renovation carried out in 2014.
* Spacious roof terrace (tolerated)
* Active owners’ association, monthly service costs €75.
* Delivery can be quick
Algemeen
- Plaats
- Haarlem
- Status
- Verkocht
- Buurt
- Leidsebuurt-west
- Aantal kamers
- 4
- Aantal slaapkamers
- 3
- Aantal badkamers
- 1
- Woonoppervlakte
- 100 m2
- Ligging
- Aan drukke weg, In woonwijk, Vrij uitzicht
- Bouwjaar
- 1907
- Isolatie
- Dubbelglas
- Type verwarming
- CV ketel
- Onderhoud buiten
- Goed
- Onderhoud binnen
- Goed tot uitstekend
- Voorzieningen
- Mechanische ventilatie, TV kabel, Buitenzonwering, Glasvezel kabel, Natuurlijke ventilatie
- Energieklasse
- C
- Parkeer faciliteiten
- Betaald parkeren, Parkeervergunningen
- Woning type
- Appartement

































