Willem Augustinstraat 314, Amsterdam
VerkochtBeschrijving
PUUR* Wonen!
Comfortabel wonen met alle stadse gemakken nabij! Dit lichte appartement van 64m2 (NEN gemeten) heeft een royale slaapkamer, ruim balkon van 9m2 met westelijke ligging en riante woonkamer met open keuken. De woning is gevestigd in een goed onderhouden gebouw uit 2016 met lift. De erfpacht is afgekocht t/m 2064 en de eeuwigdurende canon is onder de gunstige voorwaarden vastgeklikt. Nieuwsgierig geworden? Neem snel contact met ons op voor een bezichtiging!
INDELING
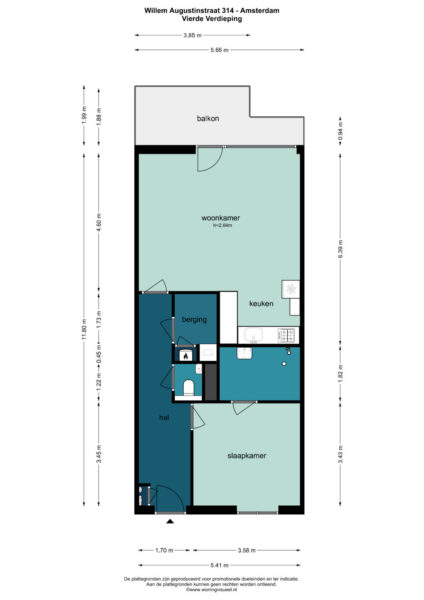
Via de goed onderhouden entree bereikt u met de lift of de gemeenschappelijk trap de galerij op de vierde verdieping. De eigen voordeur brengt u naar de royale hal, welke toegang biedt tot alle vertrekken. De riante woonkamer is aan de achterzijde gelegen. De ruimte heeft meer dan voldoende natuurlijk dag- en zonlicht door de grote glazen pui. In de woonkamer heeft u meer dan voldoende plek voor een gezellige zit- en eethoek. De nette open keuken grenst aan de eethoek en beschikt over diverse apparatuur, waaronder een koel-vriescombinatie, oven, inductie kookplaat en vaatwasser. Via de glazen schuifpui heeft u toegang tot het ruime balkon aan de achterzijde. Het balkon heeft een westelijke ligging en is daarom de perfecte plek om van de middag- en vroege avondzon te genieten!
De slaapkamer is aan de voorzijde gelegen en zeer ruim, er is hier genoeg plek voor een tweepersoonsbed en kastenwand. De badkamer grenst aan de slaapkamer en is voorzien van een douche en wastafel. Het toilet zit separaat en is toegankelijk vanuit de hal. Ook beschikt de woning over een praktische bergruimte waar zich ook de aansluiting voor de wasmachine en droger bevinden.
OMGEVING EN BEREIKBAARHEID
Het complex bevindt zich in het trendy Bos en Lommer in Amsterdam West, een nieuwe woonwijk met een uitstekende ligging dicht bij het centrum. De kern van deze rustige, diverse en groene buurt bestaat uit moderne sportvoorzieningen, omringd door diverse woningen en een breed scala aan faciliteiten voor jong en oud. Het groene Erasmuspark ligt op enkele minuten fietsen of lopen, ideaal voor een wandeling of om even neer te strijken bij het altijd gezellige Terrasmus of lokale festivals. Rembrandtpark en de Sloterplas liggen ook op 10 minuten afstand. U vindt in de omgeving veel horecagelegenheden, bijvoorbeeld bij het Mercatorplein, Jan van Galenstraat of op de Jan Evertsenstraat. Het appartement is zowel met de auto als met het openbaar vervoer uitstekend te bereiken. De ringweg west A10, afslag S105, ligt op slechts 2 minuten rijden. Daarnaast zijn de metrohaltes Jan van Galenstraat en Vlugtlaan, evenals de tramhaltes voor lijnen 7 en 13, op loopafstand. Ook de stations Sloterdijk en Lelylaan zijn binnen ongeveer 8 minuten fietsen te bereiken.
ERFPACHT
De woning is gelegen op gemeentelijke erfpachtgrond. Het huidige tijdvak t/m 31-05-2064 is afgekocht. De huidige eigenaar heeft de overstap naar eeuwigdurende erfpacht onder de gunstige voorwaarden reeds voltooid en de canon vastgeklikt.
VERENIGING VAN EIGENAREN
De VVE bestaat uit 82 appartementsrechten en wordt professioneel beheerd. Er zijn jaarlijkse vergaderingen, is een onderhoudsplan en reservefonds. De maandelijkse servicekosten bedragen €106,-.
BIJZONDERHEDEN
– 64,2m2 (NEN meetrapport);
– Ruime woonkamer met open keuken;
– Goed bemeten slaapkamer;
– Riant balkon;
– Energielabel A;
– Goed onderhouden complex uit 2016;
– Lift aanwezig;
– Praktische bergruimte in woning;
– Servicekosten VVE €106,-;
– Erfpacht afgekocht t/m 31-05-2064;
– Oplevering in overleg.
Algemeen
- Plaats
- Amsterdam
- Status
- Verkocht
- Buurt
- Laan van Spartaan
- Aantal kamers
- 2
- Aantal slaapkamers
- 1
- Woonoppervlakte
- 64 m2
- Ligging
- In woonwijk
- Bouwjaar
- 2016
- Isolatie
- HR glas
- Type verwarming
- Stadsverwarming
- Onderhoud buiten
- Goed
- Onderhoud binnen
- Goed
- Voorzieningen
- Mechanische ventilatie, TV kabel, Lift, Schuifpui
- Energieklasse
- A
- Parkeer faciliteiten
- Betaald parkeren
- Woning type
- Appartement



































