Zinneveltlaan 16, Santpoort-Zuid
VerkochtBeschrijving
Zeer duurzaam, comfortabel en vooral een huis waar je met het hele gezin jarenlang heerlijk woont.
In een geliefde en zeer kindvriendelijke woonomgeving staat in een brede laan deze zeer energiezuinige gezinswoning (energielabel A+++) met diepe zonnige tuin. Het huis is aan de achterkant over de volle breedte uitgebouwd en de keuken is aan de voorzijde geplaatst hierdoor is de woonkamer heerlijk ruim en op de tuin gericht. Doordat de woning op de 1e en 2e verdieping over de poort is gebouwd heeft de woning een extra royale maatvoering en zijn alle slaapkamers zeer ruim. Op de 1e verdieping heb je 3 goede slaapkamers en een luxe badkamer en op de 2e verdieping nog eens 2 ruime slaapkamers en een 2e moderne badkamer. En dan de tuin, die is ca. 19 meter diep en ligt op het zuidoosten. Een heerlijke zonnige tuin met een groot zonnig terras direct aan de woning gelegen en een gezellige veranda waar je op warme dagen van de schaduw kunt genieten maar ook tot laat in de avond heerlijk kunt zitten. De kinderen zullen zich prima vermaken op de ingegraven trampoline. Verder is de tuin voorzien van een ruime schuur met bergvliering en een achterom. En aan de voorzijde vind je een tuin op het noordwesten.
Qua locatie zit je hier perfect. Zeer dichtbij vind je een supermarkt, een aantal basisscholen en het NS-Station met directe verbinding naar Haarlem, Amsterdam en Alkmaar. Ook liggen de dorpskernen van Santpoort met een wekelijkse markt, Bloemendaal en Overveen zeer dichtbij evenals de gezellige binnenstad van Haarlem. Tevens vind je in de omgeving middelbaar en hoger onderwijs, uitvalswegen en diverse sportfaciliteiten. Zodra je deze woning verlaat sta je nagenoeg in één van de vele natuurgebieden die deze omgeving rijk is waar je urenlang wandel- en fietsplezier kan vinden en een scala aan ruiterpaden. Maar ook zijn het strand en de zee eenvoudig per fiets bereikbaar.
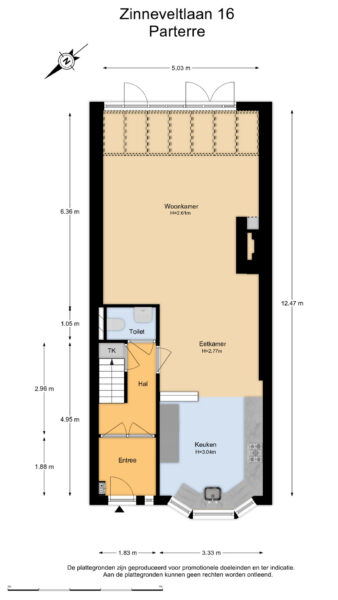
Indeling:
Parterre: entree, vestibule, hal met verdiepte trapkast en zeer ruim zwevend toilet met fontein, royale, uitgebouwde woonkamer met houtkachel, grote lichtstraat, deur en openslaande deuren naar tuin, moderne keuken met diverse inbouwapparatuur, 6-pits Smeg gasfornuis en erker met glas-in-lood ramen, via hal trap naar….
1e Verdieping: overloop met royale kast voorzien van wasmachine-/droger aansluiting, slaapkamer aan voorzijde, moderne luxe badkamer voorzien van ligbad, inloopdouche met handdouche en rainshower, meubel met dubbele wastafel, zwevend toilet en handdoekradiator, slaapkamer aan achterzijde met openslaande deuren naar balkon over volle breedte, slaapkamer aan achterzijde met inbouwkast, via overloop trap naar…
2e Verdieping: ruime overloop met toegang naar bergvliering, slaapkamer aan voorzijde met dakkapel, Velux dakraam en kast met cv-installatie, slaapkamer aan achterzijde met dakkapel, 2e moderne badkamer voorzien van inloopdouche met handdouche en rainshower, wastafelmeubel, zwevend toilet, handdoekradiator en dakkapel
Bijzonderheden:
* Woonoppervlakte ca. 155 m2, inhoud ca. 552 m3 en 235 m2 eigen grond
* Zeer duurzaam wonen, energielabel A+++
* Zo te betrekken
* Parterre aan achterzijde over volle breedte uitgebouwd
* Serre voor van elektrische screen
* Geheel voorzien van vloerwarming
* 1e en 2e Verdieping extra breed
* 20 Zonnepanelen
* Grote dakkapel aan achterzijde voorzien van elektrische screen
* Ca. 19 meter diepe tuin ZO
* Achterom aanwezig
* Voor indeling en maatvoering zie plattegronden
* Oplevering in overleg
Algemeen
- Plaats
- Santpoort-Zuid
- Status
- Verkocht
- Buurt
- Blekersbuurt
- Aantal kamers
- 6
- Aantal slaapkamers
- 5
- Aantal badkamers
- 2
- Woonoppervlakte
- 155 m2
- Perceel oppervlakte
- 235 m2
- Ligging
- Aan rustige weg, In woonwijk
- Bouwjaar
- 1934
- Isolatie
- Dakisolatie, Muurisolatie, Vloerisolatie, Dubbelglas
- Type verwarming
- CV ketel, Vloerverwarming geheel, Warmtepomp
- Onderhoud buiten
- Goed
- Onderhoud binnen
- Goed tot uitstekend
- Voorzieningen
- TV kabel, Buitenzonwering, Glasvezel kabel, Zonnepanelen
- Energieklasse
- A+++
- Soort dak
- Zadeldak
- Parkeer faciliteiten
- Openbaar parkeren
- Schuur/bergruimte
- 1
- Woning type
- Woonhuis
























































