Zuider Buiten Spaarne 158, Haarlem
Verkocht onder voorbehoudPrijs: € 550.000,-
Beschrijving
PUUR* woongeluk aan het water met een fantastisch uitzicht over het mooie Spaarne! Dit speels ingedeelde huis (78 m2) heeft 2 slaapkamers (optie tot 3). In de fijne achtertuin op het westen is het heerlijk genieten en is er volop zon, ook is er een ruime berging én achterom. Rustig wonen aan de rand van het Rozenprieel maar ook op maar liefst 10 minuten lopen van het gezellige centrum van Haarlem.
Locatie
De ligging in het levendige Rozenprieel is ideaal, op loopafstand van het gezellige centrum van Haarlem, het Spaarne, het Frederikspark en openbaar vervoer. Letterlijk om de hoek liggen gezellige restaurants voor lunch of diner bijvoorbeeld, Roast Chicken Bar, Fishbar Monk, De DAKKAS en vele andere horecagelegenheden. De bossen, de duinen en de stranden van Zandvoort en Bloemendaal zijn voor iedere Haarlemmer een belangrijke plek voor ontspanning en plezier welke eenvoudig met de fiets bereikbaar zijn. Ook de uitvalswegen richting Amsterdam/Schiphol zijn vanaf deze plek zeer makkelijk bereikbaar.
Goed om te weten
• Woonoppervlak ca. 78 m² (zie meetrapport)
• Vrij uitzicht over het Spaarne
• Tuin op het westen met brede achterom
• Energielabel B
• Ruime schuur met elektra
• Parkeren middels parkeervergunning en bezoekersregeling
• Op loopafstand van het centrum met alle denkbare voorzieningen
• Uitvalswegen Amsterdam/Schiphol makkelijk bereikbaar
• Aanvaarding in overleg
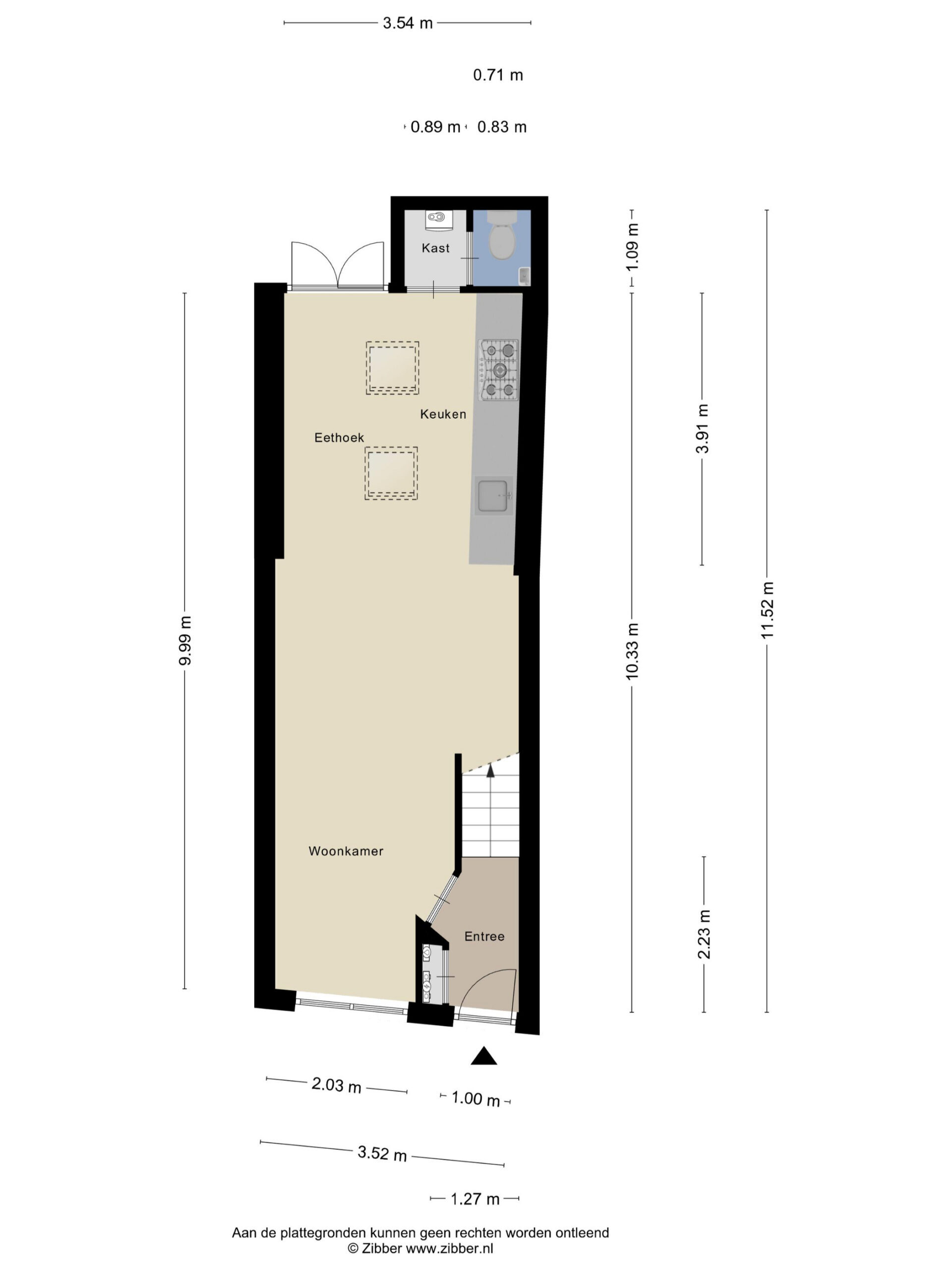
Indeling
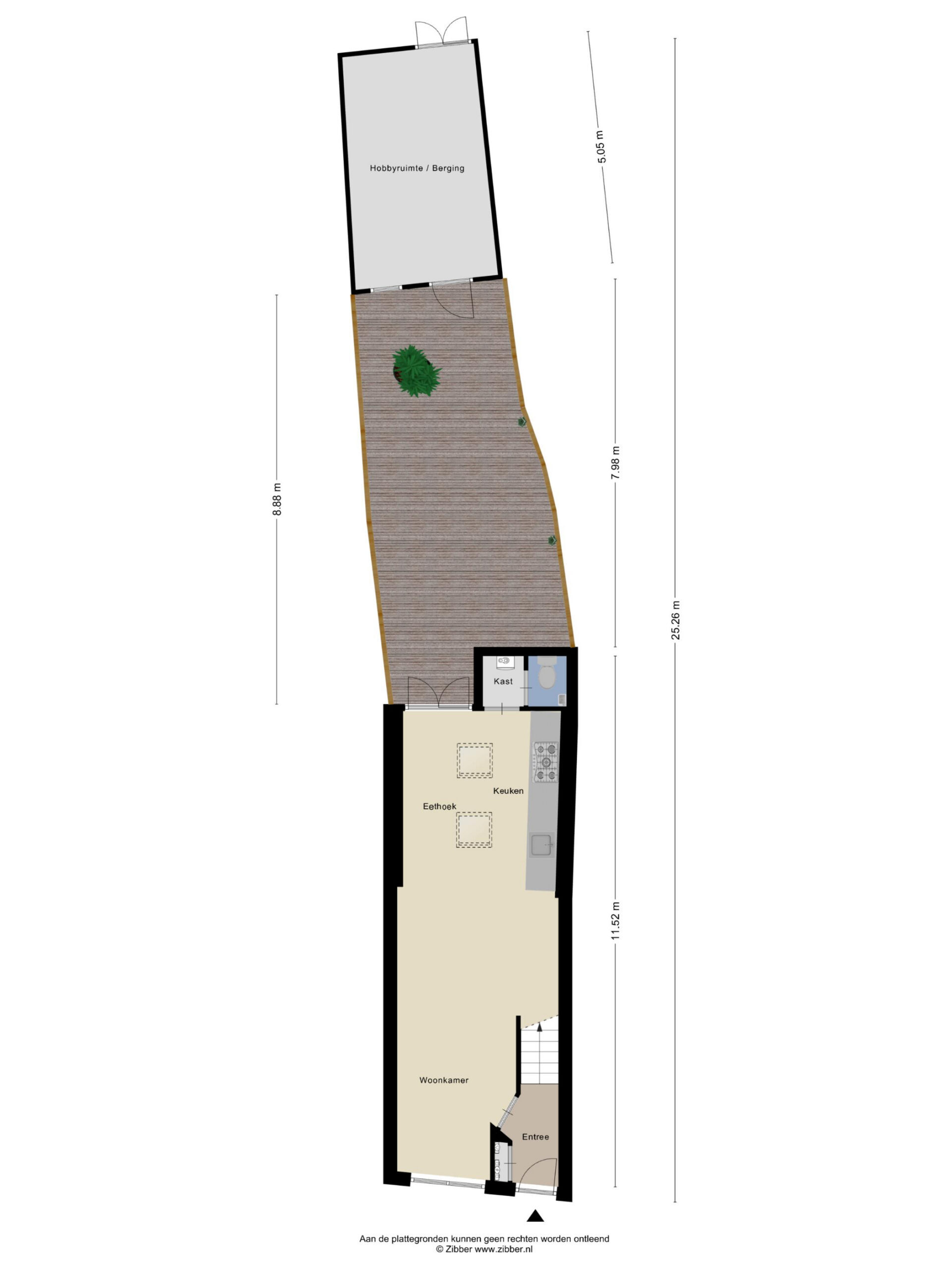
Begane grond: Entree in hal met trap. Woonkamer aan voorzijde met prachtig vrij uitzicht over het Spaarne. Uitgebouwde eetkamer met open keuken aan de achterzijde. Toilet in uitbouw. De tuin is gelegen op het westen en heeft een ruime berging met elektra en achterom die momenteel in gebruik is als werkplaats.
1e verdieping: Overloop, aan de voorzijde met twee grote ramen een gerenoveerde badkamer met toilet, inloopdouche en ingebouwde was-/droger opstelling. Kleine slaapkamer aan de achterzijde met uitzicht over de tuin.
2e verdieping: Overloop met dakraam, slaapkamer aan de voorzijde met uitzicht over het Spaarne, mogelijkheid tot kleine slaapkamer aan de achterzijde met dakraam.
Vliering: bereikbaar met vlizotrap met opstelling cv-ketel en veel extra bergruimte.
Zie voor de indeling en afmetingen de plattegronden. De brochure kunt u downloaden via onze eigen website.
*ENGLISH BELOW*
PUUR* living bliss by the water with a fantastic view of the beautiful Spaarne River! This playfully laid-out home (78 m²) has 2 bedrooms (with the option to add a third). The lovely west-facing backyard is a wonderful place to relax and soak up the sun; there is also a spacious storage shed and a back entrance. Enjoy peaceful living on the edge of Rozenprieel, yet just a 10-minute walk from the lively center of Haarlem.
Location
The location in the lively Rozenprieel is ideal, within walking distance of the charming center of Haarlem, the Spaarne River, Frederikspark, and public transportation. Just around the corner are cozy restaurants for lunch or dinner, such as Roast Chicken Bar, Fishbar Monk, De DAKKAS, and many other dining options. The forests, dunes, and beaches of Zandvoort and Bloemendaal are important places for relaxation and enjoyment for every Haarlem resident, and they are easily accessible by bike. The highways to Amsterdam and Schiphol are also very easily accessible from this location.
Good to know
• Living area approx. 78 m² (see measurement report)
• Unobstructed view of the Spaarne River
• West-facing garden with wide back entrance
• Energy label B
• Spacious shed with electricity
• Parking via parking permit and visitor regulations
• Within walking distance of the city center with all conceivable amenities
• Easy access to highways to Amsterdam/Schiphol
• Move-in date to be agreed upon
Layout
Ground floor: Entrance hall with staircase. Living room at the front with a beautiful unobstructed view of the Spaarne River. Extended dining room with open kitchen at the rear. Half-bath in the extension. The west-facing garden features a spacious storage shed with electrical hookups and a back entrance, currently used as a workshop.
First floor: Landing; at the front, with two large windows, a renovated bathroom with toilet, walk-in shower, and built-in washer/dryer unit. Small bedroom at the rear with a view of the garden.
Second floor: Landing with skylight; bedroom at the front with a view of the Spaarne River; potential for a small bedroom at the rear with a skylight.
Attic: Accessible via a loft ladder, with the boiler and plenty of extra storage space.
See the floor plans for the layout and dimensions. You can download the brochure from our website.
Kenmerken
- Koopprijs
- € 550.000,-
- Plaats
- Haarlem
- Status
- Verkocht onder voorbehoud
- Buurt
- Rozenprieel-zuid
- Aantal kamers
- 4
- Aantal slaapkamers
- 2
- Aantal badkamers
- 1
- Woonoppervlakte
- 78 m2
- Perceel oppervlakte
- 91 m2
- Ligging
- Aan water, Aan rustige weg, In woonwijk, Vrij uitzicht, Aan vaarwater
- Bouwjaar
- 1913
- Type verwarming
- CV ketel
- Onderhoud buiten
- Goed
- Onderhoud binnen
- Goed
- Voorzieningen
- Mechanische ventilatie, Natuurlijke ventilatie
- Energieklasse
- B
- Soort dak
- Zadeldak
- Parkeer faciliteiten
- Betaald parkeren, Parkeervergunningen
- Woning type
- Woonhuis
Plattegronden
Uitzicht op straat
Zoek de locatie
kom jij kijken?
Een bezoek vertelt het meest. Onze makelaars nemen graag de tijd voor een rustige rondleiding.
Contacteer ons nu
























































