1e Poellaan 68, Lisse
BeschikbaarPrijs: € 1.700.000,-
Beschrijving
Zeer bijzonder multifunctioneel woonobject.
Midden in de beroemde bollenstreek in een geliefd dorp vind je tussen Haarlem en Leiden dit multifunctionele, zeer bijzondere vrijstaande object. Het object is o.a. zeer geschikt voor kantoor/praktijk aan huis maar ook voor levensloop bestendig wonen. Uniek is de grote danszaal met massieve vloer. Het object kent meerdere mogelijkheden voor bewoning.
Deze woning heeft een woonoppervlakte van maar liefst 470m2 gelegen op een perceel van 988 m2. Deze woning is ontworpen in 1978 en heeft maar liefst 11 kamers. Inwendig is het zeer verrassend ingedeeld met onder andere een statige hal, een zeer grote woonkamer en een woonkeuken, beiden met toegang naar de achtertuin, een multifunctionele ruimte, 9 slaapkamers en 3 badkamers.
Rondom de villa ligt een zonnige tuin met aan de voorzijde een carport en een uitstekende mogelijkheid voor het parkeren van meerdere voertuigen. De tuin is voorzien van een vrijstaande stenen schuur, een vrijstaande houten schuur en een aangebouwde houten schuur.
De villa heeft een centrale ligging. Hier geniet je echt van het dorpsgevoel met allerlei voorzieningen dichtbij letterlijk om de hoek. In de omgeving vind je een supermarkt, basisscholen, kinderopvang en op korte fietsafstand een middelbare school. Lisse beschikt tevens over een gezellig centrum met diverse winkels en horecagelegenheden. Dichtbij zijn diverse bushaltes met verbindingen richting o.a. Haarlem, Leiden, Hoofddorp/Schiphol, Noordwijk en Nieuw-Vennep, het NS-Station van Hillegom en diverse uitvalswegen. Verder vind je dichtbij diverse sportverenigingen, recreatiemogelijkheden w.o. diverse landgoederen en de Keukenhof. Op de fiets ben je zo in de duinen of op het strand van Langevelderslag of Noordwijk.
Indeling:
Parterre: entree, vestibule voorzien van toilet met fontein, hal met vaste kasten, woonkamer met openslaande deuren naar tuin en toegang naar eetkeuken voorzien van diverse inbouwapparatuur, zeer royale multifunctionele kamer voorzien van keukenblok en openslaande deuren naar tuin, slaapkamer met wastafel en vaste kastenwand, slaapkamer met toegang naar hal met vaste kasten, toilet met fontein en 2e entree, slaapkamer met vaste kastenwand, wastafel en deur naar tuin, badkamer met douche en separaat toilet met fontein, toilet met wastafel en wasmachine aansluiting, via hal trap naar…….
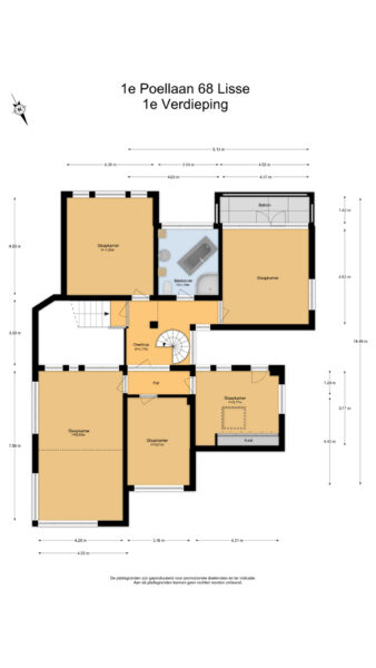
1e Verdieping: overloop, 3 slaapkamers aan voorzijde waarvan 1 kamer met lichtkoepel en vaste kastenwand, 2 slaapkamers aan achterzijde waarvan 1 kamer met openslaande deuren naar balkon, ruime badkamer voorzien van ligbad, douche, wastafel en toilet, via overloop trap naar……
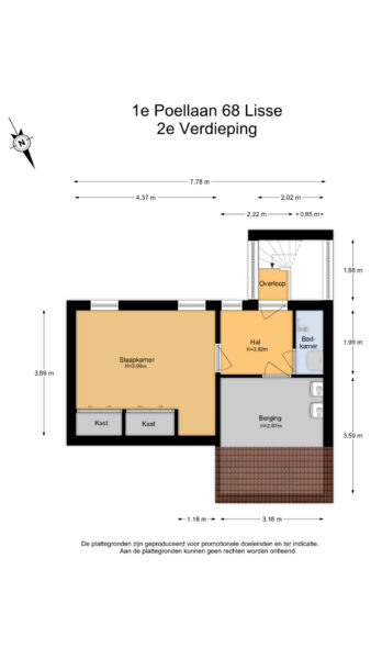
2e Verdieping: overloop, slaapkamer met vaste kasten, badkamer voorzien van douche en wastafel, zeer ruime berging met cv-ketels
Bijzonderheden:
* Woonoppervlakte ca. 481 m2, inhoud ca. 1826 m3 en 988 m2 eigen grond
* Multifunctioneel object
* Gelijkvloers wonen mogelijk
* Uitstekende parkeergelegenheid op eigen terrein
* Carport aanwezig
* Zonnige tuin rondom
* Voorzien van airconditioning
* Voor indeling en maatvoering zie plattegronden
* Oplevering in overleg
Kenmerken
- Koopprijs
- € 1.700.000,-
- Plaats
- Lisse
- Status
- Beschikbaar
- Buurt
- Dever
- Aantal kamers
- 11
- Aantal slaapkamers
- 9
- Aantal badkamers
- 3
- Woonoppervlakte
- 481 m2
- Perceel oppervlakte
- 988 m2
- Ligging
- In woonwijk
- Bouwjaar
- 1978
- Type verwarming
- CV ketel
- Onderhoud buiten
- Goed
- Onderhoud binnen
- Goed
- Voorzieningen
- Buitenzonwering, Airconditioning, Dakraam
- Soort dak
- Samengesteld dak
- Parkeer faciliteiten
- Op eigen terrein
- Schuur/bergruimte
- 2
- Woning type
- Woonhuis
Plattegronden
Uitzicht op straat
Zoek de locatie
kom jij kijken?
Een bezoek vertelt het meest. Onze makelaars nemen graag de tijd voor een rustige rondleiding.
Contacteer ons nu





















































