Abraham van der Hulstln 5, Bennebroek
BeschikbaarPrijs: € 625.000,-
Beschrijving
Midden in een geliefde woonomgeving staat deze ideale, uitgebouwde gezinswoning. Deze gemoderniseerde woning is op de parterre aan de achterzijde over de volle breedte uitgebouwd waardoor er een uitstekende leefruimte is gerealiseerd. De parterre bestaat uit een woonkamer die mooi overloopt in een moderne keuken. Door de grote lichtstraat en de goede raampartijen is het binnen heerlijk licht. Op de 1e en 2e verdieping vind je 4 ruime slaapkamers, een moderne nette badkamer en een werk-/waskamer. De woning ligt direct aan een groenstrook in een rustige, autoluwe woonwijk. Ideaal voor gezinnen. Terwijl de kinderen buiten voor de deur in het speeltuintje spelen, geniet je in de voortuin die een goede ligging op het zuidwesten heeft van de middag- en de avondzon. Aan de achterzijde heb je een fijne tuin die voorzien is van een vrijstaande schuur en een achterom.
Bennebroek is een dorp met een gemoedelijk karakter en biedt een fijne woonomgeving voor iedereen die op zoek is naar rust en natuur, zonder de gemakken van de stad te willen missen. Zeer dichtbij vind je diverse dagelijkse voorzieningen w.o. een supermarkt, een drogisterij, diverse winkels, een café en restaurants. Ook liggen op korte afstand onderwijs, sportfaciliteiten en voor de kinderen Europa’s grootste speeltuin Linnaeushof. Even lekker de natuur in, het Bennebroekerbos, de prachtige Waterleidingduinen, Leyduin en het Groenendaalse bos liggen nagenoeg om de hoek maar ook het strand van Zandvoort en Langevelderslag zijn met circa een kwartier bereikbaar. Bovendien ben je op de fiets of met de auto zo in Heemstede, Hillegom of in het bruisende centrum van Haarlem, waar je kunt genieten van een uitgebreid aanbod aan cultuur, horeca en winkels. En voor woon-werkverkeer is dit een fijne plek om te wonen, zo heb je dichtbij het NS-Station Heemstede-Aerdenhout en station Hillegom, busverbindingen en diverse uitvalswegen naar Amsterdam, Den Haag, Schiphol etc. Dit alles maakt Bennebroek aantrekkelijk voor gezinnen, natuurliefhebbers, expats en forenzen. Hier woon je aan de rand van de Randstad met de rust van een dorp, de natuur voor de deur en van alles binnen handbereik.
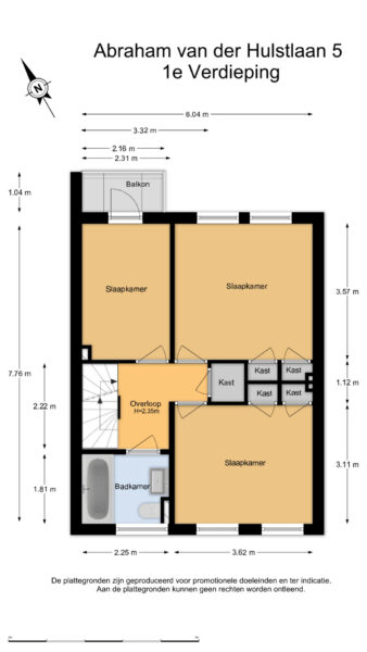
Indeling:
Parterre: entree, ruime hal voorzien van net toilet met fontein, zeer royale, uitgebouwde woonkamer met erker, open haard, grote lichtstraat en deur naar tuin, moderne open keuken met diverse inbouwapparatuur, via hal trap naar…
1e Verdieping: overloop met royale kast, slaapkamer aan voorzijde met inbouwkasten, moderne nette badkamer voorzien van ligbad/douche combinatie, wastafelmeubel, zwevend toilet en handdoekradiator, zijkamer aan achterzijde met deur naar balkon, slaapkamer aan achterzijde met inbouwkasten, via overloop trap naar…
2e Verdieping: overloop met bergruimte en dakraam, ruime slaapkamer met 2 dakkapellen en bergruimte, werk-/waskamer met wasmachine/droger aansluiting, kast met cv-ketel en dakkapel
Bijzonderheden:
* Woonoppervlakte ca. 139 m2, inhoud ca. 459 m3 en 161 m2 eigen grond
* Uitbouw aan achterzijde
* Ruim gezinshuis
* Kamers voorzien van eiken houten vloeren
* Nieuwe cv-ketel 2025
* Zonnige tuin met achterom
* Diverse parkeerhavens
* Voor indeling en maatvoering zie plattegronden
* Oplevering in overleg
Kenmerken
- Koopprijs
- € 625.000,-
- Plaats
- Bennebroek
- Status
- Beschikbaar
- Buurt
- Meerwijk
- Aantal kamers
- 5
- Aantal slaapkamers
- 4
- Aantal badkamers
- 1
- Woonoppervlakte
- 139 m2
- Perceel oppervlakte
- 161 m2
- Ligging
- Aan rustige weg, In woonwijk
- Bouwjaar
- 1971
- Isolatie
- Dakisolatie, Dubbelglas
- Type verwarming
- CV ketel, Open haard
- Onderhoud buiten
- Goed
- Onderhoud binnen
- Goed
- Voorzieningen
- TV kabel
- Energieklasse
- B
- Soort dak
- Zadeldak
- Parkeer faciliteiten
- Openbaar parkeren
- Schuur/bergruimte
- 1
- Woning type
- Woonhuis
Plattegronden
Uitzicht op straat
Zoek de locatie
kom jij kijken?
Een bezoek vertelt het meest. Onze makelaars nemen graag de tijd voor een rustige rondleiding.
Contacteer ons nu








































