Jan Nieuwenhuijzenstraat 32, Haarlem
BeschikbaarPrijs: € 675.000,-
Beschrijving
PUUR* wonen in deze karakteristieke geschakelde woning met 3 slaapkamers (mogelijkheid tot 4), een bijzonder lichte woon- en eetkamer met open verbinding naar de keuken en een patio op het westen, ideaal voor zonnige middagen en avonden. Vanuit de riante slaapkamer aan de voorzijde geniet je een fraai uitzicht op de Koepelkathedraal, een uniek perspectief in de stad. De woning is de afgelopen jaren zorgvuldig verbouwd: de opbouw is gerealiseerd in 2020 en in 2021 is een moderne keuken met alle inbouwapparatuur geplaatst. Deze combinatie van authentieke uitstraling en hedendaagse afwerking zorgt voor een prettig wooncomfort en een stijlvol geheel.
Deze woning is gelegen aan Jan Nieuwenhuijzenstraat 32 in Haarlem, in de gewilde buurt Leidsebuurt-Oost binnen het Zijlwegkwartier. Het is een woonstraat met een rustige en stedelijke sfeer, omgeven door een gevarieerd aanbod aan voorzieningen. Op loop- en fietsafstand tref je winkels voor de dagelijkse boodschappen, gezellige cafés en restaurants, en diverse sport- en recreatiemogelijkheden. Scholen en kinderopvang liggen eveneens nabij, wat dit tot een aantrekkelijke woonomgeving voor gezinnen maakt. Openbaar vervoer en snelwegen zijn goed bereikbaar, waardoor het centrum van Haarlem en de omliggende steden eenvoudig te bereiken zijn.
Goed om te weten
• Geschakelde woning
• Woonoppervlakte ca. 107 m2
• 3 slaapkamers (mogelijkheid tot 4)
• Energielabel A
• Nieuwe keuken met inbouwapparatuur (2021)
• Opbouw gerealiseerd in 2020
• Patio op het westen
• 2 badkamers
• Parkeren met vergunning
• Uitzicht op Koepelkathedraal
• Bouwkundig rapport aanwezig
• Oplevering kan snel
Indeling
Via de entree aan de rustige woonstraat bereik je de hal met meterkast en het separate toilet. Vanuit de hal kom je in de woon- en eetkamer, die zich over de volledige diepte van de woning uitstrekt en een prettige lichtinval heeft. De woonkamer staat in open verbinding met de moderne keuken, voorzien van diverse inbouwapparatuur en veel bergruimte. Via de woonkamer is de verzorgde patio op het westen bereikbaar, een fijne buitenplek.
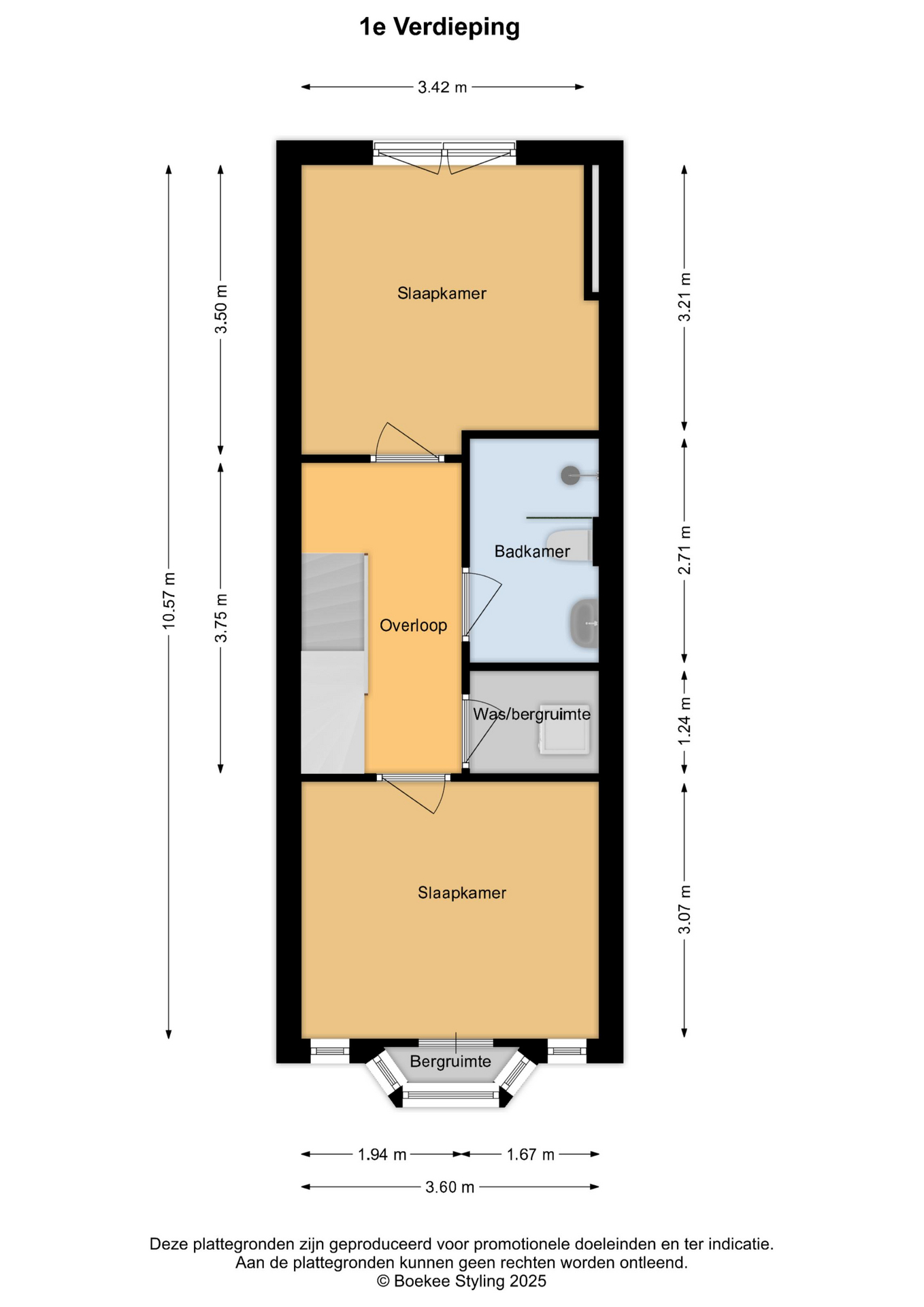
Op de eerste verdieping bereik je via de overloop de 2 slaapkamers en de badkamer. De riante slaapkamer aan de voorzijde biedt het unieke uitzicht op de Koepelkathedraal en grenst aan een goed formaat slaapkamer aan de achterzijde. De badkamer op deze verdieping is compleet ingericht met douche, toilet en wasmeubel.
Via de vaste trap ga je naar de tweede verdieping, waar een extra slaapkamer en een tweede badkamer met ligbad zijn gesitueerd; ideaal voor gasten of als master suite. De verdieping biedt tevens praktische bergruimte en mogelijkheden voor extra gebruiksfuncties. Aan de achterzijde van deze bovenverdieping is nu een kastenruimte gemaakt, maar kan met gemak een vierde slaapkamer worden.
Bekijk de plattegronden voor de exacte indeling en maatvoering. Een uitgebreide brochure is te downloaden via onze eigen website.
*ENGLISH BELOW*
PUUR* living in this characteristic semi-detached house with 3 bedrooms (possibility of 4), a particularly light living and dining room with open connection to the kitchen and a west-facing patio, ideal for sunny afternoons and evenings. From the spacious bedroom at the front, you can enjoy a beautiful view of the Dome Cathedral, a unique perspective in the city. The house has been carefully renovated in recent years: the extension was completed in 2020 and in 2021 a modern kitchen with all built-in appliances was installed. This combination of authentic appearance and contemporary finishes ensures pleasant living comfort and a stylish whole.
This house is located at Jan Nieuwenhuijzenstraat 32 in Haarlem, in the sought-after Leidsebuurt-Oost neighborhood within the Zijlwegkwartier. It is a residential street with a quiet and urban atmosphere, surrounded by a varied range of amenities. Within walking and cycling distance, you will find shops for your daily groceries, cozy cafes and restaurants, and various sports and recreational opportunities. Schools and childcare facilities are also nearby, making this an attractive living environment for families. Public transportation and highways are easily accessible, making the center of Haarlem and surrounding cities easy to reach.
Good to know
• Semi-detached house
• Living area approx. 107 m2
• 3 bedrooms (possibility of 4)
• Energy label A
• New kitchen with built-in appliances (2021)
• Extension completed in 2020
• West-facing patio
• 2 bathrooms
• Parking with permit
• View of the Dome Cathedral
• Structural report available
• Quick delivery possible
Layout
The entrance on the quiet residential street leads to the hall with meter cupboard and separate toilet. From the hall, you enter the living and dining room, which extends across the entire depth of the house and has pleasant natural light. The living room is open to the modern kitchen, equipped with various built-in appliances and plenty of storage space. The living room opens onto the well-maintained west-facing patio, a lovely outdoor space.
On the first floor, the landing leads to the two bedrooms and the bathroom. The spacious bedroom at the front offers a unique view of the Dome Cathedral and adjoins a good-sized bedroom at the rear. The bathroom on this floor is fully equipped with a shower, toilet, and washbasin.
A fixed staircase leads to the second floor, where there is an additional bedroom and a second bathroom with a bathtub; ideal for guests or as a master suite. The floor also offers practical storage space and possibilities for additional uses. At the rear of this upper floor, a closet space has now been created, but it could easily be converted into a fourth bedroom.
See the floor plans for the exact layout and dimensions. A detailed brochure can be downloaded from our website.
Kenmerken
- Koopprijs
- € 675.000,-
- Plaats
- Haarlem
- Status
- Beschikbaar
- Buurt
- Leidsebuurt-oost
- Aantal kamers
- 5
- Aantal slaapkamers
- 4
- Aantal badkamers
- 2
- Woonoppervlakte
- 107 m2
- Perceel oppervlakte
- 52 m2
- Ligging
- Aan rustige weg, In woonwijk
- Bouwjaar
- 1914
- Isolatie
- Dakisolatie, Muurisolatie, Vloerisolatie, Grotendeels dubbelglas, HR glas
- Type verwarming
- CV ketel, Vloerverwarming gedeeltelijk
- Onderhoud buiten
- Goed tot uitstekend
- Onderhoud binnen
- Goed tot uitstekend
- Voorzieningen
- Mechanische ventilatie, TV kabel, Glasvezel kabel, Natuurlijke ventilatie
- Energieklasse
- A
- Soort dak
- Plat dak
- Parkeer faciliteiten
- Betaald parkeren, Parkeervergunningen
- Woning type
- Woonhuis
Plattegronden
Uitzicht op straat
Zoek de locatie
kom jij kijken?
Een bezoek vertelt het meest. Onze makelaars nemen graag de tijd voor een rustige rondleiding.
Contacteer ons nu










































