Cort van der Lindenlaan 17, Naarden
BeschikbaarPrijs: € 1.595.000,-
Beschrijving
Vrijstaande villa/semi-bungalow met royale tuin, vijf slaapkamers en zelfstandige woonruimte op de begane grond
Bent u op zoek naar een ruime vrijstaande woning met een grote tuin, een slaapkamer met eigen badkamer op de begane grond en een ligging dicht bij winkels, natuur en voorzieningen? Dan is deze woning zeker een bezichtiging waard.
Deze goed onderhouden villa biedt veel leefruimte, zowel binnen als buiten. Met een woonoppervlak van 231 m² en een perceel van 1.165 m² is dit een ideaal huis voor wie houdt van comfort en ruimte. De woning beschikt over vijf slaapkamers, twee badkamers, een moderne woonkeuken en een royale L-vormige woonkamer met open haard en uitzicht op de tuin.
De ligging is bijzonder gunstig: op loopafstand van winkels, natuurgebieden en sportfaciliteiten. De fraai aangelegde tuin rondom biedt volop privacy en mogelijkheden om buiten te genieten. Daarnaast beschikt het perceel over een ruime oprit, twee overkappingen, een houten schuur en een jacuzzi.
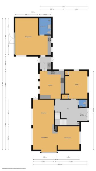
Indeling:
Begane grond: Entree met ruime hal, garderobe, modern toilet, meterkast (met uitgebreide groepenkast) en toegang tot de kelder met cv-installatie (2018) en aansluiting voor wasapparatuur. Aan de voorzijde bevindt zich een extra kamer, geschikt als werkkamer, speelkamer of slaapkamer.
De L-vormige woonkamer (46 m²) heeft een parketvloer, open haard en grote raampartijen met zicht op de tuin. De woonkeuken (2028) is modern uitgevoerd en voorzien van diverse inbouwapparatuur.
Via een tweede hal met bergruimte is zowel de voor- als achtertuin bereikbaar. In de voormalige dubbele garage is in 2020 een luxe slaap- en badkamer met keukenblok gerealiseerd. Deze ruimte (ca. 36 m²) is uitstekend geschikt als zelfstandige woonunit, gastenverblijf of praktijk aan huis.
Eerste verdieping: Royale overloop met dakkapel, separaat toilet en vaste kasten. Drie ruime slaapkamers, waarvan één met Frans balkon. De badkamer (2022) beschikt over een dakkapel, dubbele douche, ligbad en dubbele wastafel.
Buitenleven
De tuin rondom biedt volop privacy, groen en ruimte. De huidige eigenaren noemen hun huis met een knipoog ‘Toffe Peren’, een verwijzing naar de mooie perenbomen die in de tuin staan. Er is altijd wel een plek in de zon te vinden — of juist een schaduwrijke hoek om te ontspannen. De carport is voorzien van stroom, handig voor het plaatsen en opladen van (elektrische) fietsen onder de overkapping. Op eigen terrein is er ruimte om twee tot drie auto’s te parkeren.
Bijzonderheden:
• Energielabel C (dakisolatie, deels muurisolatie, volledig dubbel glas)
• Dak vernieuwd en geïsoleerd in 2016
• 21 zonnepanelen
• Luxe woonunit met eigen keuken en badkamer op de begane grond (2020)
• Fraai aangelegde tuin rondom met jacuzzi, twee overkappingen en houten schuur
• Carport met stroomvoorziening
• Parkeergelegenheid voor 2–3 auto’s op eigen terrein
• Perceeloppervlak 1.165 m², woonoppervlak 231 m²
Een complete, verzorgde woning met veel ruimte en comfort of, zoals de huidige eigenaren zeggen: een echt ‘toffe peren’-huis.
Kenmerken
- Koopprijs
- € 1.595.000,-
- Plaats
- Naarden
- Status
- Beschikbaar
- Buurt
- Ministerpark
- Aantal kamers
- 6
- Aantal slaapkamers
- 5
- Aantal badkamers
- 2
- Woonoppervlakte
- 231 m2
- Perceel oppervlakte
- 1.165 m2
- Ligging
- Aan bosrand, Aan park, In woonwijk, Beschutte ligging
- Bouwjaar
- 1963
- Isolatie
- Dakisolatie, Dubbelglas, HR glas
- Type verwarming
- CV ketel, Open haard, Vloerverwarming gedeeltelijk
- Onderhoud buiten
- Goed
- Onderhoud binnen
- Goed
- Voorzieningen
- Mechanische ventilatie, TV kabel, Jacuzzi, Glasvezel kabel, Zonnepanelen
- Energieklasse
- C
- Parkeer faciliteiten
- Op eigen terrein
- Schuur/bergruimte
- 1
- Woning type
- Woonhuis
Plattegronden
Uitzicht op straat
Zoek de locatie
kom jij kijken?
Een bezoek vertelt het meest. Onze makelaars nemen graag de tijd voor een rustige rondleiding.
Contacteer ons nu










































