Haringvlietplantsoen 16, Heemstede
VerkochtBeschrijving
Aan een ruim opgezet plantsoen staat dit fijne gezinshuis met zonnige tuin en oprit. Het woonhuis bestaat op de parterre uit een tuin-gerichte woonkamer met een moderne open keuken. Op de 1e verdieping vind je 3 slaapkamers en een badkamer. De 2e verdieping heeft een ruime slaapkamer en een was-/stookruimte. Ook is er genoeg bergruimte te vinden; zo heb je een extra ruime trapkast op de parterre, bergruimte achter de schotten op de 1e verdieping, bergruimte op de 2e verdieping en een ruime bergvliering. Heb je behoefte aan een extra slaap- en/of badkamer dan is dit eventueel mogelijk op de 2e verdieping. Aan de voorzijde heb je de mogelijkheid om je auto op eigen terrein te plaatsen. Ook vind je hier een vrijstaande stenen schuur. De zonnige achtertuin ligt op het westen en is voorzien van een zonnig terras met een elektrische zonwering en een achterom. Het huis staat in een rustige en kindvriendelijke wijk met diverse speelveldjes. Zo heb je op het plantsoen een fraai aangelegd speeltuintje waar je leuk op uitkijkt terwijl je staat te koken. Doordat de omgeving autoluw is, kunnen de kinderen hier lekker buiten op straat spelen. Wil je even snel een boodschap doen, zeer dichtbij vind je een supermarkt en met nog geen 5 minuten fietsen sta je op de gezellige Binnenweg/Raadhuisstraat waar je uitstekend terecht kunt voor je dagelijkse boodschappen, heerlijk kunt eten en leuke boetieks vindt. Ook ben je zo in het centrum van Haarlem, zit je in de trein naar Leiden/Den Haag of Amsterdam of wandel je over het strand. In de nabije omgeving liggen diverse natuurgebieden waaronder het Groenendaalse bos op slechts enkele minuten lopen. Dit is een heerlijke plek om met de kinderen tijd door te brengen, je vindt hier o.a. een kinderboerderij en een speeltuin, je kan hier lekker eten en fijn met of zonder de hond wandelen. Net als vele sportfaciliteiten, uitgaansgelegenheden w.o. het theater De Luifel liggen ook diverse basisscholen, middelbaar en hoger onderwijs dichtbij.
Indeling:
Parterre: entree, hal voorzien van modern zwevend toilet met fontein, tuingerichte woonkamer met ruime trapkast en schuifpui naar tuin, moderne keuken met diverse inbouwapparatuur w.o. 5-pits kookplaat, via hal trap naar…..
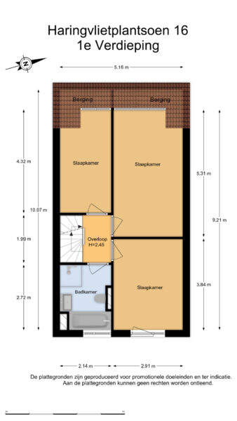
1e Verdieping: overloop, slaapkamer aan voorzijde met deur naar frans balkon, moderne badkamer voorzien van ligbad, inloopdouche, wastafelmeubel, zwevend toilet en handdoekradiator, 2 slaapkamers aan achterzijde met dakkapel en bergruimte, via overloop trap naar….
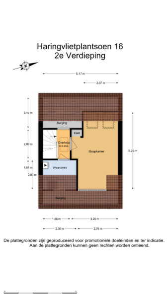
2e Verdieping: overloop met bergruimte en toegang naar bergvliering, ruime zolderkamer met dakkapel met elektrische zonwering, 2 Velux dakramen, inbouwkast en bergruimte, was-/stookruimte voorzien van wasmachine/droger aansluiting, cv-ketel en Velux dakraam
Bijzonderheden:
* Woonoppervlakte ca. 120 m2, inhoud ca. 401 m3 en 136 m2 eigen grond
* Fijn gezinshuis met 4 slaapkamers
* Mogelijkheid om extra slaapkamer te realiseren
* 10 Zonnepanelen
* Energielabel B
* Zonnige tuin met achterom
* Parterre achterzijde voorzien van elektrische zonwering
* Parkeren op eigen terrein
* Voor indeling en maatvoering zie plattegronden
* Oplevering in overleg
Algemeen
- Plaats
- Heemstede
- Status
- Verkocht
- Buurt
- Rivierenbuurt
- Aantal kamers
- 5
- Aantal slaapkamers
- 4
- Aantal badkamers
- 1
- Woonoppervlakte
- 120 m2
- Perceel oppervlakte
- 136 m2
- Ligging
- Aan rustige weg, In woonwijk
- Bouwjaar
- 1988
- Isolatie
- Dakisolatie, Muurisolatie, Vloerisolatie, Dubbelglas
- Type verwarming
- CV ketel
- Onderhoud buiten
- Goed
- Onderhoud binnen
- Goed
- Voorzieningen
- Mechanische ventilatie, TV kabel, Buitenzonwering, Schuifpui, Frans balkon, Dakraam, Zonnepanelen
- Energieklasse
- B
- Soort dak
- Zadeldak
- Parkeer faciliteiten
- Openbaar parkeren, Op eigen terrein
- Schuur/bergruimte
- 1
- Woning type
- Woonhuis













































