Jacques Perklaan 26, Haarlem
BeschikbaarPrijs: € 375.000,-
Beschrijving
PUUR* wonen aan de Jacques Perklaan – Ruimtelijk, licht en vol mogelijkheden op een fijne plek in Haarlem Noord.
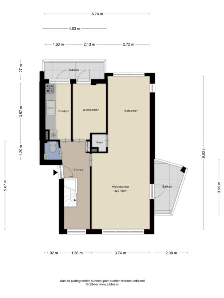
In de groene wijk Sinnevelt ligt dit heerlijk lichte 3-kamer maisonnette-appartement van ca. 86 m2, verdeeld over de begane grond en eerste verdieping van een goed onderhouden appartementencomplex. Dankzij de hoekligging woon je hier prettig vrij en profiteer je van een mooie lichtinval en een ruimtelijk gevoel.
Het appartement heeft een speelse en praktische indeling en beschikt over twee balkons en een eigen berging. Op de woonverdieping vind je de ruime woonkamer met vrij uitzicht en directe toegang tot het balkon aan de zijkant – een fijne plek om even buiten te zitten. Vanuit de keuken en de extra slaap-/werkkamer op deze verdieping bereik je het tweede balkon aan de achterzijde.
Via de ruime gang met separaat toilet bereik je de begane grond, waar zich de royale badkamer en de hoofdslaapkamer bevinden. Deze indeling maakt het appartement verrassend ruim en comfortabel.
Intern is de woning gedateerd, maar dat biedt juist een mooie kans: met een beetje creativiteit en werklust kun je hier een prachtige, moderne woning realiseren die helemaal aansluit bij je eigen woonwensen.
Praktisch is de (fietsen-)berging op de begane grond. Met een kleine aanpassing zou deze zelfs direct vanuit het appartement bereikbaar gemaakt kunnen worden. Parkeren is in deze buurt bovendien nog vrij en er is voldoende parkeergelegenheid in de directe omgeving.
Het complex is netjes onderhouden en beschikt over een actieve VvE, wat zorgt voor een prettige en verzorgde woonomgeving.
De buurt – Sinnevelt
De woning ligt in de wijk Sinnevelt, een groene en rustige buurt in Haarlem Noord met een fijne mix van bewoners. In de directe omgeving vind je diverse winkels, supermarkten, scholen, sportverenigingen en openbaar vervoer. Het Marsmanplein met zijn uitgebreide winkelvoorzieningen ligt op korte afstand.
Ook voor ontspanning zit je hier goed: Het Schoterbos ligt op loopafstand, het duingebied / strand en de binnenstad van zijn met de fiets makkelijk bereikbaar. Zo combineer je hier het gemak van de stad met de rust van een groene woonomgeving.
Goed om te weten:
* Ruim 3-kamer appartement (maisonnette) op begane grond en 1e verdieping
* Woonoppervlak ca. 86 m2 (zie meetrapport
* Hoekligging met veel lichtinval en vrij zicht
* Ruime woonkamer met fijn balkon, 2e balkon aan de achterzijde
* Extra slaap-/werkkamer op de woonverdieping
* Eigen (fietsen-)berging
* Goed onderhouden complex met actieve VvE
* Servicekosten ca. € 175,- per maand
* Vrij parkeren in de buurt
* Veel voorzieningen op korte afstand
* Aanvaarding in overleg, kan snel
*ENGLISH*
PURE living* on Jacques Perklaan – Spacious, bright, and full of possibilities in a pleasant location in Haarlem Noord.
In the green Sinnevelt neighborhood you will find this wonderfully bright 3-room maisonette apartment of approximately 86 m², spread over the ground floor and first floor of a well-maintained apartment complex. Thanks to its corner position, you enjoy extra privacy, plenty of natural light, and a spacious feeling throughout the home.
The apartment has a playful and practical layout and features two balconies and a private storage unit. On the living level you will find the spacious living room with open views and direct access to the side balcony – a pleasant spot to sit outside. From the kitchen and the additional bedroom/study on this floor you can access the second balcony at the rear.
Via the spacious hallway with a separate toilet, you reach the ground floor, where the generous bathroom and the main bedroom are located. This layout makes the apartment feel surprisingly spacious and comfortable.
Internally, the property is somewhat dated, but this offers a great opportunity: with some creativity and effort, you can transform it into a beautiful modern home fully tailored to your own living preferences.
Practical is the (bicycle) storage room on the ground floor. With a small modification, it could even be made directly accessible from the apartment. Parking in the area is free, and there is ample parking available nearby.
The complex itself is well maintained and has an active homeowners’ association (VvE), contributing to a pleasant and well-kept living environment.
The neighborhood – Sinnevelt
The property is located in Sinnevelt, a green and quiet neighborhood in Haarlem Noord with a pleasant mix of residents. In the immediate vicinity you will find various shops, supermarkets, schools, sports clubs, and public transport. Marsmanplein, with its extensive shopping facilities, is just a short distance away.
For relaxation you are also in the right place: Schoterbos park is within walking distance, while the dunes, the beach, and Haarlem’s city center are easily reachable by bicycle. Here you combine the convenience of the city with the tranquility of a green residential environment.
Good to know
* Spacious 3-room maisonette apartment on the ground floor and first floor
* Living area approx. 86 m² (see measurement report)
* Corner location with plenty of natural light and open views
* Spacious living room with pleasant balcony, second balcony at the rear
* Additional bedroom/study on the living level
* Private (bicycle) storage unit
* Well-maintained complex with an active homeowners’ association (VvE)
* Service charges approx. €175 per month
* Free parking in the neighborhood
* Many amenities within short distance
* Transfer in consultation, can be quick
Kenmerken
- Koopprijs
- € 375.000,-
- Plaats
- Haarlem
- Status
- Beschikbaar
- Buurt
- Sinnevelt
- Aantal kamers
- 3
- Aantal slaapkamers
- 2
- Aantal badkamers
- 1
- Woonoppervlakte
- 86 m2
- Ligging
- Aan rustige weg, In woonwijk, Vrij uitzicht
- Bouwjaar
- 1959
- Isolatie
- Gedeeltelijk dubbelglas
- Type verwarming
- CV ketel
- Onderhoud buiten
- Goed
- Onderhoud binnen
- Matig tot redelijk
- Voorzieningen
- Buitenzonwering, Natuurlijke ventilatie
- Energieklasse
- F
- Soort dak
- Plat dak
- Parkeer faciliteiten
- Openbaar parkeren
- Schuur/bergruimte
- 1
- Woning type
- Appartement
Plattegronden
Uitzicht op straat
Zoek de locatie
kom jij kijken?
Een bezoek vertelt het meest. Onze makelaars nemen graag de tijd voor een rustige rondleiding.
Contacteer ons nu




















































