Laurens Reaellaan 26II, Haarlem
BeschikbaarPrijs: € 425.000,-
Beschrijving
Zeer royaal en uiterst ruim opgezet 3-kamer appartement op Laurens Reaellaan 26-II van ca. 89 m2 met twee balkons. De woning heeft een zeer riante lichte woonkamer met open open haard, dichte keurige keuken, moderne badkamer en twee ruime slaapkamers. Vanuit de woonkamer is er zicht op de aangrenzende binnentuinen en heeft daardoor een “groen” uitzicht. Het appartement is gebouwd in 1958 en ligt op de 2e verdieping van een verzorgd complex, ideaal voor wie op zoek is naar een comfortabel appartement met praktische indeling en fijne buitenruimtes. Extra is de enorme berging met lichtinval in het souterrain.
Locatie
Het appartement bevindt zich in de wijk Te Zaanenkwartier, in de buurt De Krim, een rustige, gezinsvriendelijke en groen opgezette woonomgeving in Haarlem. Supermarkten, basisscholen en winkels zijn op korte (fiets- of loop) afstand bereikbaar. Het appartement ligt bovendien op loopafstand (200m) van treinstation Bloemendaal. Via de nabijgelegen uitvalswegen is Amsterdam, Schiphol of Den Haag goed bereikbaar, en het centrum van Haarlem is ook makkelijk per fiets te bereiken. Kortom: wonen op een praktische locatie van alle gemakken voorzien.
Goed om te weten:
• 3 kamers
• Circa 89m² woonoppervlakte
• Gelegen op de 2e verdieping
• Bouwjaar 1958
• Energielabel B
• VvE-bijdrage €160 per maand + inschrijving KVK, MJOP en opstalverzekering inbegrepen
• Nieuwe Intergas HRE combiketel (2025)
• Balkon op noord en balkon op zuid
• Inpandige berging op begane grond van 12m²
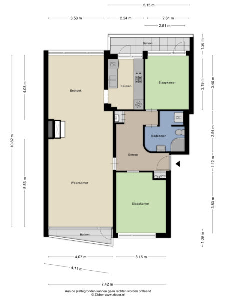
Indeling
Begane grond
Via het gezamenlijke entree toegankelijk, met brievenbussen, bellentableau en trap naar de verdiepingen. Op de begane grond is de inpandige berging gesitueerd.
2e verdieping
Via het portiek komt u de woning binnen in de hal. Vanuit de hal zijn de slaapkamers, woonkamer en badkamer bereikbaar. De hal biedt veel ruimte door de U-vorm. Vervolgens komt u in de doorzonwoonkamer, welke veel lichtinval biedt. De dichte keuken grenst direct aan de woonkamer. Via de woonkamer heeft u toegang tot het balkon aan de noordzijde. Aan de voorzijde is een slaapkamer gelegen en aan de achterzijde bevindt zich de tweede slaapkamer. De badkamer is voorzien van een wastafelmeubel, hangend toilet en aansluiting voor wasmachine en droger. Vanuit de achterzijde is het balkon op het zuiden toegankelijk.
Bekijk de plattegronden voor de exacte indeling en maatvoering. Een uitgebreide brochure is te downloaden via onze eigen website.
*ENGLISH*
Very spacious and extremely roomy 3-room apartment at Laurens Reaellaan 26-II of approx. 89 m2 with two balconies. The property has a very spacious, bright living room with an open fireplace, a separate neat kitchen, a modern bathroom, and two spacious bedrooms. The living room overlooks the adjacent courtyard gardens, providing a “green” view. The apartment was built in 1958 and is located on the 2nd floor of a well-maintained complex, ideal for those looking for a comfortable apartment with a practical layout and pleasant outdoor spaces. An added bonus is the enormous storage room with natural light in the basement.
Location
The apartment is located in the Te Zaanenkwartier district, in the De Krim neighborhood, a quiet, family-friendly, and green residential area in Haarlem. Supermarkets, elementary schools, and shops are within walking or cycling distance. The apartment is also within walking distance (200m) of Bloemendaal train station. Amsterdam, Schiphol, and The Hague are easily accessible via the nearby highways, and the center of Haarlem is also easy to reach by bike. In short: living in a practical location with all the conveniences.
Good to know:
• 3 rooms
• Approximately 89m² of living space
• Located on the 2nd floor
• Built in 1958
• Energy label B
• Homeowners’ association contribution €160 per month + Chamber of Commerce registration, MJOP, and building insurance included
• New Intergas HRE combi boiler (2025)
• North-facing balcony and south-facing balcony
• Indoor storage room on the ground floor of 12m²
Layout
Ground floor
Accessible via the communal entrance, with mailboxes, doorbells, and stairs to the upper floors. The indoor storage room is located on the ground floor.
2nd floor
The porch leads into the hall. The bedrooms, living room, and bathroom are accessible from the hall. The hall offers plenty of space due to its U-shape. This leads into the living room, which offers plenty of natural light. The separate kitchen is directly adjacent to the living room. The living room provides access to the north-facing balcony. There is one bedroom at the front and a second bedroom at the rear. The bathroom has a washbasin, wall-mounted toilet, and connections for a washing machine and dryer. The south-facing balcony is accessible from the rear.
See the floor plans for the exact layout and dimensions. A detailed brochure can be downloaded from our website.
Kenmerken
- Koopprijs
- € 425.000,-
- Plaats
- Haarlem
- Status
- Beschikbaar
- Buurt
- De Krim
- Aantal kamers
- 3
- Aantal slaapkamers
- 2
- Aantal badkamers
- 1
- Woonoppervlakte
- 89 m2
- Bouwjaar
- 1958
- Type verwarming
- CV ketel
- Onderhoud buiten
- Goed
- Onderhoud binnen
- Goed
- Energieklasse
- B
- Soort dak
- Plat dak
- Parkeer faciliteiten
- Openbaar parkeren
- Woning type
- Appartement
Plattegronden
Uitzicht op straat
Zoek de locatie
kom jij kijken?
Een bezoek vertelt het meest. Onze makelaars nemen graag de tijd voor een rustige rondleiding.
Contacteer ons nu











































