Naaldenveldweg 5, Aerdenhout
BeschikbaarPrijs: € 3.200.000,-
Beschrijving
Direct aan natuurpark Naaldenveld op een mooie kavel staat deze vrijstaande villa, de plek waar rust, natuur en ruimte samenkomen. Via een oprijlaan voorzien van een elektrisch hekwerk is de villa met de dubbele aangebouwde stenen garage bereikbaar. De villa bestaat o.a. uit een woonkamer, een luxe woonkeuken, 4 slaapkamers en 2 badkamers. De villa is in de loop der jaren met veel liefde en met hoogwaardige materialen gerenoveerd. De walnoten houten keuken is dan ook een echte eyecatcher. En de grote slaapkamer aan de voorzijde is voorzien van leem gestucte wanden wat bekend is om zijn vocht- en warmte-regulerende, geluiddempende en milieuvriendelijke eigenschappen.
Dankzij de comfortabele indeling, de extra kamer met badkamer beneden is gelijkvloers wonen mogelijk. Hierdoor is de villa zeer geschikt voor diverse doelgroepen, van een jong gezin tot ouderen maar ook voor levensloop bestendig wonen, mindervaliden of bijv. mantelzorg. Door de vele en de grote raampartijen is het huis heerlijk licht en heb je een geweldig zicht om de groene, rondom liggende tuin. Deze unieke duintuin met niveauverschillen en een zeer groot op maat gemaakte houten IPE terras ligt direct aan een prachtig natuurgebied. Op het grote en hoger gelegen terras kan je heerlijk bij de buitenhaard zitten en heb je een fantastisch zicht op de tuin die naadloos overgaat in het aangrenzende park. Hier geniet je optimaal van je privacy en van alle flora en fauna die de omgeving rijk is w.o. een specht in de tuin, een eekhoorn op het terras, hoge naaldbomen, noem maar op. Je zit hier volop in de natuur. In deze mooie, groene laan is alleen bestemmingsverkeer aanwezig. Hier geniet je van je rust en je privacy maar toch woon je overal dichtbij. Aan het perceel vind je natuurgebied het Naaldenveld en de Amsterdamse Waterleidingduinen ligt nagenoeg om de hoek. Ook vind je dichtbij een gezellig restaurant voor een hapje of een borrel, de winkelstraat en het NS-Station van Heemstede-Aerdenhout met Intercity’s naar o.a. Amsterdam, Alkmaar, Den Haag en Leiden evenals de gezellige binnenstad van Haarlem met een diversiteit aan winkels en leuke uitgaansgelegenheden. In no-time sta je in het dorp van Zandvoort, wandel je over het strand of zit je daar heerlijk op het terras. Tevens vind je dichtbij huis een scala aan sportfaciliteiten. En voor de kinderen liggen lager-, middelbaar en hoger onderwijs op korte fietsafstand. En ga je met de auto op pad dan zit je zo op een van de uitvalswegen.
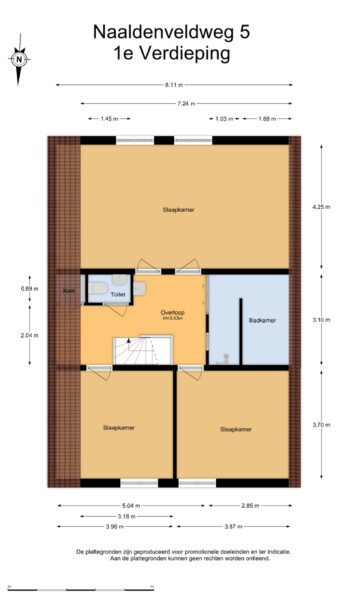
Indeling:
Parterre: entree, hal voorzien van modern zwevend toilet met fontein en stook/bergruimte, zeer lichte woonkamer met leistenen vloer, veel en grote raampartijen, schuifpui naar tuin en gas haard, luxe op maat gemaakte walnotenhouten keuken met kook-/spoeleiland voorzien van royale zitbar, fontein met spoelkraan, divers Gaggenau inbouwapparatuur en op maat gemaakt afzuigsysteem, stijlvol keukenblok voorzien van extra fontein met spoelkraan en extra kraan voor gevitaliseerd water, extra grote raampartijen, deur en schuifpui naar tuin, slaapkamer met eiken houten vloer en openslaande deuren naar badkamer voorzien van ligbad, douche met stoomgenerator, dubbele wastafel en handdoekradiator, via hal trap naar…..
1e Verdieping: overloop met fontein, bergruimte en net toilet met fontein, zeer royale slaapkamer aan voorzijde, twee slaapkamers aan achterzijde, badkamer met inloopdouche voorzien van rainshower, handdouche, handdoekradiator en walk-in ruimte
Bijzonderheden:
* Woonoppervlakte ca. 213 m2, inhoud ca. 860 m3 en 4295 m2 eigen grond
* Diverse luxe afwerkingen w.o. gedeeltelijk voorzien van bronzen kozijnen
* Gelijkvloers wonen mogelijk
* Goed geïsoleerd
* Direct aan natuurpark gelegen
* Zeer veel privacy
* Zonnige tuin rondom
* Riant en stijlvol IPE houten terras
* Royale oprit
* Dubbele aangebouwde garage
* Voor indeling en maatvoering zie plattegronden
* Oplevering in overleg
Kenmerken
- Koopprijs
- € 3.200.000,-
- Plaats
- Aerdenhout
- Status
- Beschikbaar
- Buurt
- Aerdenhout-Zuid
- Aantal kamers
- 5
- Aantal slaapkamers
- 4
- Aantal badkamers
- 2
- Woonoppervlakte
- 213 m2
- Perceel oppervlakte
- 4.295 m2
- Ligging
- Aan bosrand, Aan rustige weg, Beschutte ligging, In bosrijke omgeving
- Bouwjaar
- 1973
- Isolatie
- Dakisolatie, Vloerisolatie, Dubbelglas
- Type verwarming
- CV ketel, Vloerverwarming gedeeltelijk, Gashaard
- Onderhoud buiten
- Goed
- Onderhoud binnen
- Goed
- Voorzieningen
- TV kabel, Schuifpui
- Energieklasse
- D
- Soort dak
- Lessenaardak
- Parkeer faciliteiten
- Op eigen terrein
- Woning type
- Woonhuis
Plattegronden
Uitzicht op straat
Zoek de locatie
kom jij kijken?
Een bezoek vertelt het meest. Onze makelaars nemen graag de tijd voor een rustige rondleiding.
Contacteer ons nu































































