Orteliusstraat 368-1, Amsterdam
Onder bodPrijs: € 450.000,-
Beschrijving
PUUR* wonen – volledig nieuw gerenoveerd (2026), energiezuinig en first user!
In dit extra brede deel van de Orteliusstraat mogen wij dit compleet en hoogwaardig gerenoveerde driekamerappartement op eigen grond aanbieden. Het appartement is volledig nieuw opgeleverd en nog niet eerder bewoond. Dankzij de recente renovatie is de woning volledig geïsoleerd, beschikt deze over energielabel A+ en is het appartement voorzien van moderne installaties, zoals vloerverwarming, die zorgen voor zeer lage energiekosten.
De woning is gelegen op de eerste verdieping, beschikt over twee slaapkamers, open keuken, luxe badkamer met separaat wc en heeft een balkon op het oosten, waar je in alle rust kunt genieten van de ochtendzon.
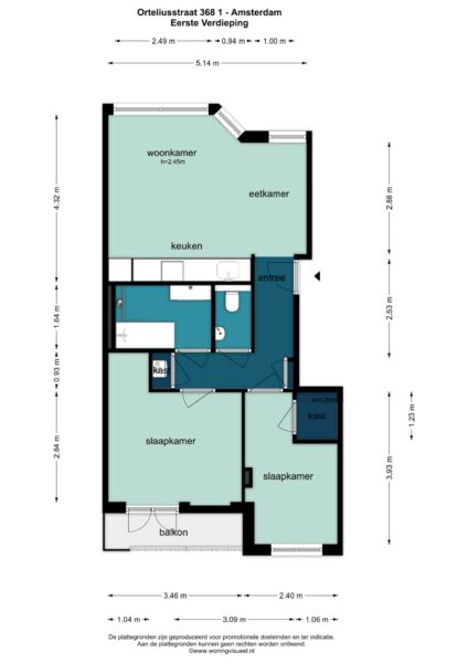
INDELING:
Via de stenen buitentrap bereik je de eerste verdieping en de eigen entree van de woning.
Je komt binnen in de lichte en sfeervolle woonruimte, waar het woon-, eet- en kookgedeelte op een prettige en open manier met elkaar zijn verbonden. De moderne open keuken (nieuw in 2026) is voorzien van diverse hoogwaardige inbouwapparatuur, waaronder een Quooker, en vormt een fijne plek voor zowel dagelijks koken als gezellige avonden met vrienden of familie.
De gehele woning is voorzien van comfortabele vloerverwarming, wat zorgt voor een aangenaam en gelijkmatig binnenklimaat. De woning is volledig geïsoleerd met onder ander vacuüm glas wat nog beter dan HR++ glas is.
De woning beschikt over twee slaapkamers. De ruime hoofdslaapkamer heeft openslaande deuren naar het balkon aan de achterzijde van de woning. Het balkon ligt op het oosten, waardoor je hier heerlijk kunt genieten van de ochtendzon met een kop koffie.
De tweede kamer is veelzijdig en ideaal te gebruiken als werk-, kinder- of logeerkamer. Tevens is deze kamer voorzien van een praktische wasruimte.
De moderne badkamer is volledig vernieuwd in 2026 en stijlvol afgewerkt. De badkamer beschikt over een ruime inloopdouche, ligbad, wastafel met luxe meubel en een hoogwaardige afwerking, wat zorgt voor een comfortabele en eigentijdse uitstraling.
Daarnaast is het appartement uitgerust met een modern Warmte Terug Win (WTW) systeem en mechanische ventilatie, wat bijdraagt aan een gezond binnenklimaat en een energiezuinig en duurzaam wooncomfort.
Kortom: een volledig en hoogwaardig gerenoveerd (2026), uitstekend geïsoleerd en energiezuinig appartement met twee slaapkamers en een fijne buitenruimte, gelegen op een geliefde plek in Amsterdam-West. Doordat de woning na renovatie nog niet eerder is bewoond, geniet je hier van het comfort van een vrijwel nieuw appartement.
OMGEVING:
De Orteliusstraat is gelegen in de populaire wijk De Baarsjes, in stadsdeel Amsterdam-West. De buurt staat bekend om haar levendige en gezellige karakter met een breed aanbod aan cafés, restaurants, winkels en speciaalzaken.
In de directe omgeving vind je onder andere het Rembrandtpark en het Erasmuspark, waar je heerlijk kunt wandelen, sporten of ontspannen. Ook de dagelijkse voorzieningen zoals supermarkten, koffietentjes en restaurants bevinden zich op loopafstand.
De bereikbaarheid is uitstekend: diverse tram- en busverbindingen stoppen in de nabije omgeving en brengen je snel naar onder andere het centrum van Amsterdam en Station Sloterdijk. Daarnaast zijn de uitvalswegen A10 en A4 eenvoudig bereikbaar.
BIJZONDERHEDEN:
* Gelegen op eigen grond
* Volledig en hoogwaardig gerenoveerd in 2026 – nog niet eerder bewoond (first user)
* Zeer energiezuinig appartement met energielabel A+; Compleet geïsoleerde woning;
* Zeer goed isolerend vacuümglas
* Voorzien van comfortabele vloerverwarming
* Modern Warmte Terug Win (WTW) systeem en mechanische ventilatie, kortom zeer lage energiekosten
* Gelegen op de eerste verdieping met eigen entree
* Driekamerappartement met twee slaapkamers
* Nieuwe moderne keuken (2026) voorzien van hoogwaardige inbouwapparatuur en Quooker
* Luxe en modern gerenoveerde badkamer (2026) met inloopdouche en ligbad
* Balkon op het oosten met ochtendzon
* Tweede kamer geschikt als werk-, kinder- of logeerkamer
* Splitsingsvergunning recent verleend
* Startende VvE
* Door de hoogwaardige renovatie is het pand in principe circa 10 jaar onderhoudsarm
* Gelegen in de populaire Orteliusstraat in Amsterdam-West met groen en gezellige horeca in de nabije omgeving
* Servicekosten bedragen €75,- per maand
* Overdracht in overleg
****ENGLISH****
PUUR* living – completely newly renovated (2026), energy-efficient and first occupant!
On this extra-wide part of the Orteliusstraat we are pleased to offer this completely and high-quality renovated three-room apartment on freehold land. The apartment has just been completed and has never been occupied before. Thanks to the recent renovation, the home is fully insulated, has an energy label A+, and is equipped with modern installations such as underfloor heating, ensuring very low energy costs.
The property is located on the first floor and features two bedrooms, an open kitchen, a luxurious bathroom with a separate toilet, and a balcony facing east, where you can peacefully enjoy the morning sun.
LAYOUT:
Via the stone outdoor staircase you reach the first floor and the private entrance of the apartment.
You enter the bright and inviting living space, where the living, dining and kitchen areas are pleasantly and openly connected. The modern open kitchen (new in 2026) is equipped with various high-quality built-in appliances, including a Quooker, and offers a great space for both everyday cooking and cozy evenings with friends or family.
The entire apartment features comfortable underfloor heating, ensuring a pleasant and evenly distributed indoor climate. The home is fully insulated, including high-performance vacuum glass, which insulates even better than HR++ glass.
The apartment has two bedrooms. The spacious main bedroom has French doors opening onto the balcony at the rear of the property. The balcony faces east, allowing you to enjoy the morning sun with a cup of coffee.
The second room is versatile and ideal as a home office, children’s room, or guest room. This room also includes a practical laundry area.
The modern bathroom was completely renovated in 2026 and is stylishly finished. It features a spacious walk-in shower, bathtub, washbasin with a luxury vanity unit, and high-quality finishes, giving it a comfortable and contemporary look.
In addition, the apartment is equipped with a modern Heat Recovery Ventilation (HRV/WTW) system and mechanical ventilation, contributing to a healthy indoor climate and energy-efficient, sustainable living comfort.
In short: a fully and high-quality renovated (2026), excellently insulated and energy-efficient apartment with two bedrooms and a pleasant outdoor space, located in a highly sought-after area of Amsterdam-West. As the property has not been occupied since the renovation, you will enjoy the comfort of an almost brand-new apartment.
LOCATION:
Orteliusstraat is located in the popular De Baarsjes neighborhood in the Amsterdam-West district. The area is known for its lively and welcoming atmosphere with a wide range of cafés, restaurants, shops, and specialty stores.
Nearby you will find both the Rembrandtpark and Erasmuspark, perfect for walking, exercising, or relaxing. Daily amenities such as supermarkets, coffee spots, and restaurants are all within walking distance.
Accessibility is excellent: several tram and bus connections stop nearby and provide quick access to the center of Amsterdam and Station Sloterdijk. In addition, the A10 and A4 highways are easily accessible.
HIHGLIGHTS:
* Freehold property (no ground lease)
* Fully and high-quality renovated in 2026 – never previously occupied (first occupant)
* Highly energy-efficient apartment with energy label A+; fully insulated
* High-performance vacuum glazing
* Equipped with comfortable underfloor heating
* Modern Heat Recovery Ventilation (WTW/HRV) system and mechanical ventilation – very low energy costs
* Located on the first floor with private entrance
* Three-room apartment with two bedrooms
* New modern kitchen (2026) with high-quality built-in appliances and Quooker
* Luxuriously renovated bathroom (2026) with walk-in shower and bathtub
* East-facing balcony with morning sun
* Second room suitable as office, children’s room, or guest room
* Subdivision permit recently granted
* Newly established owners’ association (VvE)
* Due to the high-quality renovation, the building is expected to require minimal maintenance for approximately 10 years
* Located on the popular Orteliusstraat in Amsterdam-West with green spaces and lively hospitality venues nearby
* Service charges: €75 per month
* Transfer date in consultation
Kenmerken
- Koopprijs
- € 450.000,-
- Plaats
- Amsterdam
- Status
- Onder bod
- Buurt
- Robert Scottbuurt Oost
- Aantal kamers
- 3
- Aantal slaapkamers
- 2
- Aantal badkamers
- 1
- Woonoppervlakte
- 54 m2
- Ligging
- Aan rustige weg, In centrum
- Bouwjaar
- 1934
- Isolatie
- Muurisolatie, Vloerisolatie, Driedubbel glas
- Type verwarming
- CV ketel
- Onderhoud buiten
- Goed tot uitstekend
- Onderhoud binnen
- Goed tot uitstekend
- Voorzieningen
- Mechanische ventilatie
- Energieklasse
- A+
- Soort dak
- Plat dak
- Parkeer faciliteiten
- Openbaar parkeren, Betaald parkeren, Parkeervergunningen
- Woning type
- Appartement
Plattegronden
Uitzicht op straat
Zoek de locatie
kom jij kijken?
Een bezoek vertelt het meest. Onze makelaars nemen graag de tijd voor een rustige rondleiding.
Contacteer ons nu





























