Plesmanlaan 30I, Haarlem
VerkochtBeschrijving
PUUR* wonen in dit 3-kamer starters appartement met 2 fijne balkons en riante berging. Op de eerste verdieping van dit goed onderhouden appartementencomplex ligt dit lichte appartement met moderne keuken, ruime slaapkamer en een fijne indeling. Het balkon aan de achterzijde heeft de ochtend- en middagzon en zicht op de fraai aangelegde binnentuin, het balkon aan de voorzijde ligt op het westen.
Kom kijken en laat je verrassen!
Locatie
Het Schoterbos, het Noorder Sportpark, de Hekslootpolder en het Pim Mulier stadion liggen op steenworp afstand en bieden volop ontspanning en sportvoorzieningen. Door de centrale ligging is de woning gunstig gelegen t.o.v. winkelcentrum Marsmanplein, Bloemendaal en Santpoort. Het stadscentrum van Haarlem en het strand met zijn voorliggende duinen bevinden zich op fietsafstand. Uitvalswegen in richting Amsterdam, Alkmaar en Den Haag in de directe omgeving.
Goed om te weten
* Woonoppervlakte 58 m² (zie meetrapport)
* Vrij parkeren voor de deur
* Riante berging 18 m² in de onderbouw
* Twee balkons, een op het westen en een op het oosten
* Massief houten vloer aanwezig (Europees grenen)
* Ingebouwde wasmachine
* Zonnescherm aanwezig aan voorzijde
* Busstation gelegen naast appartement (elke 30 minuten een bus)
* Actieve VvE
* Servicekosten: € 193,- per maand
* Fraai aangelegde binnentuin
* Ideale ligging nabij groen en winkels
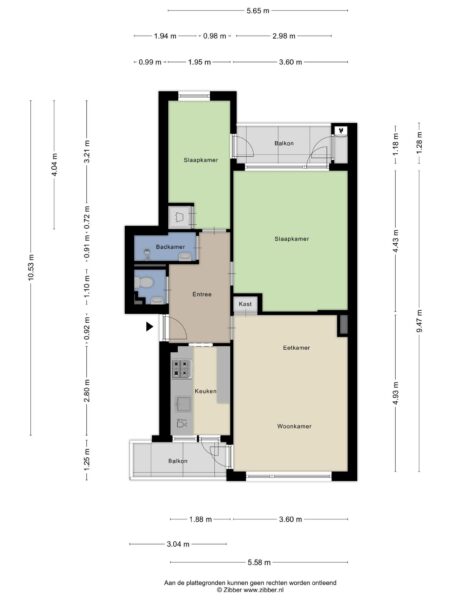
Indeling:
Begane grond: Gezamenlijke entree met bellentableau en brievenbussen, ruime berging met daglicht, deur naar fraai aangelegde binnentuin waar het fijn toeven is.
Eerste verdieping: voordeur, toilet met fontein, nette keuken aan voorzijde met deur naar balkon op het westen, woonkamer met vaste kast, groot raam en deur naar balkon. Zeer ruime slaapkamer aan achterzijde met deur naar balkon op het oosten, tweede slaapkamer met vaste kast en deur naar balkon, eenvoudige badkamer met douche en wastafel.
*ENGLISH TEXT*
PUUR* living in this 3-room starter apartment with 2 fine balconies and spacious storage. On the second floor of this well maintained apartment complex is this bright apartment with modern kitchen, spacious bedroom and a fine layout. The balcony at the rear has morning and afternoon sun and views of the beautifully landscaped courtyard garden, the balcony at the front faces west.
Come look and be surprised!
Location
The Schoterbos, the Noorder Sportpark, the Hekslootpolder and the Pim Mulier stadium are just steps away and offer plenty of recreation and sports facilities. Due to its central location, the house is conveniently located to shopping Marsmanplein, Bloemendaal and Santpoort. The city center of Haarlem and the beach with its dunes are within cycling distance. Roads to Amsterdam, Alkmaar and The Hague in the immediate vicinity.
Good to know
* Living area 58 m² (see measurement report)
* Free parking in front of the door
* Spacious 18 m² storage in the basement.
* Two balconies, one facing west and one facing east
* Solid wooden floor available (European pine)
* Built-in washing machine
* Sunshade present on front
* Bus station located next to apartment (every 30 minutes a bus)
* Active association
* Service costs: € 193, – per month.
* Beautifully landscaped courtyard
* Ideal location near green and stores
Classification:
Ground floor: Communal entrance with doorbells and mailboxes, spacious storage room with daylight, door to beautifully landscaped courtyard where it is nice to stay.
First floor: front door, toilet with fountain, neat kitchen at the front with door to balcony facing west, living room with closet, large window and door to balcony. Very spacious rear bedroom with door to east facing balcony, second bedroom with closet and door to balcony, simple bathroom with shower and sink.
Algemeen
- Plaats
- Haarlem
- Status
- Verkocht
- Buurt
- Sinnevelt
- Aantal kamers
- 3
- Aantal slaapkamers
- 2
- Aantal badkamers
- 1
- Woonoppervlakte
- 58 m2
- Ligging
- Aan park, In woonwijk
- Bouwjaar
- 1957
- Isolatie
- Grotendeels dubbelglas
- Type verwarming
- CV ketel
- Onderhoud buiten
- Goed
- Onderhoud binnen
- Goed
- Voorzieningen
- TV kabel
- Energieklasse
- D
- Soort dak
- Plat dak
- Parkeer faciliteiten
- Openbaar parkeren
- Schuur/bergruimte
- 1
- Woning type
- Appartement

















































