Scheepsbouwweg 179, Amsterdam
BeschikbaarPrijs: € 875.000,-
Beschrijving
PUUR* wonen in het populaire Amsterdam Noord:
Deze royale, uitstekend onderhouden eengezinswoning van ca. 132 m², beschikt over vijf volwaardige slaapkamers, twee luxe badkamers, een zonnige achtertuin van ca. 28 m² met schuur (5,8 m²), een voortuin van ca. 9 m² én energielabel A.
De woning combineert ruimte, comfort en duurzaamheid met een rustige, groene ligging vlak bij het water.
Met hoge plafonds van ca. 2,9 m, een lichte leefverdieping met open keuken en glazen schuifdeuren naar de tuin, vloerverwarming door de gehele begane grond en eerste verdieping (ook in beide badkamers en per ruimte instelbaar), eikenhouten vloeren op de begane grond en eerste verdieping, elektrische zonwering en meerdere buitenruimtes waar je de hele dag van de zon geniet, is dit een ideaal familiehuis.
INDELING
Begane grond – wonen en genieten
Via de verzorgde voortuin bereik je de entree van de woning. In de hal bevinden zich de meterkast en een separaat toilet.
De royale leefruimte combineert een open keuken, eet- en zitgedeelte in één lichte en uitnodigende ruimte. Grote raampartijen en schuifdeuren naar de tuin zorgen voor prachtig daglicht en een prettige verbinding tussen binnen en buiten. Inbouwspots in het plafond zorgen voor een strak en warm geheel. Onder de trap is een praktische bergruimte gecreëerd van ca. 3 m2.
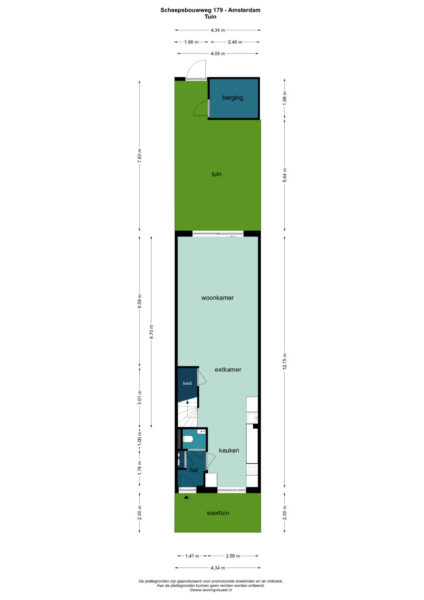
De achtertuin van ca. 28 m² is toegankelijk via de schuifdeuren en een afsluitbare achterom vanaf een privéterrein, wat zorgt voor extra veiligheid en privacy. Aan de gevel is een elektrisch bedienbare zonwering bevestigd. Achter in de tuin bevindt zich een ruime schuur van ca. 6 m², ideaal voor fietsen en extra opslag.
De voortuin van ca. 9 m² biedt een fijne plek om ’s ochtends van de zon te genieten, terwijl je ’s middags van de achtertuin profiteert van de ondergaanden zon.
Eerste verdieping – drie slaapkamers en badkamer
Op de eerste verdieping bevinden zich drie ruime slaapkamers, elk met ingebouwde kasten, waardoor optimaal gebruik wordt gemaakt van de ruimte.
De moderne badkamer is volledig afgewerkt en voorzien van vloerverwarming (met regelbare temperatuur), separate douche en toilet. Op de overloop is een praktische kast met wasmachine- en droger aansluiting aanwezig.
Tweede verdieping – twee slaapkamers en luxe badkamer
Via een vaste trap bereik je de tweede verdieping met twee extra slaapkamers. Ideaal voor grotere gezinnen, samengestelde gezinnen of voor wie meerdere thuiswerkplekken wenst zonder concessies te doen aan comfort. Beide kamers zijn voorzien van airconditioning en extra bergruimte achter discrete panelen.
De tweede badkamer is luxe afgewerkt met een ligbad, separate douche, toilet en vloerverwarming.
OMGEVING EN BEREIKBAARHEID
De woning ligt in een populaire, ruim opgezette woonomgeving in Amsterdam Noord, omgeven door groen en water. Er zijn speeltuintjes, zwemsteigers in natuurwater en diverse recreatieplekken op loopafstand. De bruisende NDSM-werf, het IJ en de pont naar Centraal Station en Pontsteiger (Jordaan/Westerpark) liggen dichtbij. Supermarkten, kinderdagverblijven en basisscholen bevinden zich eveneens op loopafstand. Een ideale balans tussen stedelijke dynamiek en ontspannen wonen.
Voor de fietser liggen metro en trein op 10 minuten en het natuur-, sport- en zwemgebied Het Twiske op 15 minuten. Voor de automobilist is parkeren relatief voordelig, is er altijd voldoende parkeergelegenheid voor de deur en is er een laadpaal voor de deur aanwezig. De snelwegen A10 en A8 zijn bovendien binnen enkele minuten bereikbaar.
ERFPACHT:
Algemene voorwaarde 2016 van de gemeente Amsterdam
Tot 30-11-2067 bedraagt de canon € 2032,- per jaar
Na 1-12-2067 is de erfpacht eeuwigdurend afgekocht!
Dus zeer lage erfpacht welke eeuwigdurend is afgekocht.
VERENIGING VAN EIGENAARS:
Service kosten bedragen € 100,- per maand. Hierin zitten de schilderkosten en algemeen onderhoud aan de buitenzijde en de opstal verzekerings voor de woning.
BIJZONDERHEDEN:
* Woonoppervlakte ca. 132 m²
* Energielabel A
* 6 zonnepanelen met 2700 WP opbrengst
* Vijf slaapkamers, ideaal als slaap-, werk- of logeerkamers
* Twee luxe badkamers met vloerverwarming
* Achtertuin ca. 28 m² (bereikbaar via achterom)
* Voortuin ca. 9 m²
* Externe berging/schuur ca. 5,8 m²
* Open keuken met luxe Siemens-apparatuur (stoomoven, vaatwasser, inductiekookplaat, koel-vriescombinatie)
* Hoge plafonds (ca. 2,9 m)
* Vloerverwarming op de begane grond en eerste verdieping, per ruimte instelbaar
* Inbouwspots door de gehele begane grond
* Schuifdeuren naar de tuin
* Elektrische zonwering aan de achtergevel
* Elektrisch bedienbare zonnescreens bij de slaapkamers
* Airconditioning in beide slaapkamers op de tweede verdieping
* Wasmachine- en droger aansluiting op de eerste verdieping
* HR++-glas en zonnepanelen
* Mechanische ventilatie op alle verdiepingen
* Buitenverlichting voor en achter, buitenkraan en elektrapunt in de tuin
* Oplevering in overleg
***English***
PUUR living in popular Amsterdam North:* This spacious, excellently maintained family home of approx. 132 m² features five full-sized bedrooms, two luxurious bathrooms, a sunny backyard of approx. 28 m² with storage shed (5.8 m²), a front garden of approx. 9 m², and energy label A.
The property combines space, comfort and sustainability with a peaceful, green location close to the water.
With high ceilings of approx. 2.9 m, a bright living floor with open kitchen and sliding glass doors to the garden, underfloor heating throughout the entire ground and first floors (including both bathrooms and individually controllable per room), oak wooden flooring on the ground and first floors, electric sunshades, and multiple outdoor spaces to enjoy the sun all day long, this is an ideal family home.
LAYOUT
Ground floor – living and enjoying
Through the well-maintained front garden you reach the entrance of the house. The hallway provides access to the utility meter cupboard and a separate toilet.
The spacious living area combines an open kitchen, dining area and sitting area into one bright and inviting space. Large windows and sliding doors to the garden provide beautiful natural light and a pleasant indoor-outdoor connection. Recessed ceiling spotlights create a sleek yet warm atmosphere. Under the staircase, a practical storage space of approx. 3 m² has been created.
The backyard of approx. 28 m² is accessible through the sliding doors and via a lockable rear entrance from a private area, providing extra safety and privacy. An electrically operated sunshade is installed on the rear façade. At the back of the garden you will find a spacious shed of approx. 6 m², ideal for bicycles and additional storage.
The front garden of approx. 9 m² offers a lovely place to enjoy the morning sun, while the backyard allows you to enjoy the afternoon and evening sun.
First floor – three bedrooms and bathroom
The first floor features three generously sized bedrooms, each with built-in wardrobes, making optimal use of the space.
The modern bathroom is fully finished and equipped with underfloor heating (with adjustable temperature), a separate shower and toilet. On the landing, there is a practical cupboard with connections for a washing machine and dryer.
Second floor – two bedrooms and luxury bathroom
A fixed staircase leads to the second floor with two additional bedrooms. Ideal for larger families, blended families, or those who require multiple home office spaces without compromising comfort. Both rooms are equipped with air conditioning and additional storage behind discreet panels.
The second bathroom is luxuriously finished and features a bathtub, separate shower, toilet and underfloor heating.
LOCATION AND ACCESSIBILITY
The property is located in a popular, spacious residential area in Amsterdam-Noord, surrounded by greenery and water. Playgrounds, swimming jetties in natural water and various recreational areas are within walking distance. The vibrant NDSM-werf, the IJ, and the ferry to Amsterdam Centraal Station and Pontsteiger (Jordaan/Westerpark) are nearby. Supermarkets, daycare centers and primary schools are also within walking distance. An ideal balance between urban vibrancy and relaxed living.
For cyclists, metro and train connections can be reached within 10 minutes, and the nature, sports and swimming area Het Twiske is just 15 minutes away. For motorists, parking is relatively affordable, there is ample parking directly in front of the house, and a charging station is available nearby. The A10 and A8 highways can be reached within minutes.
LEASEHOLD
General provisions 2016 of the Municipality of Amsterdam
Annual ground rent € 2,032 until 30-11-2067
After 01-12-2067 the leasehold has been bought off in perpetuity
Therefore: low annual ground rent, which has been bought off perpetually after 2067
HOMEOWNERS’ ASSOCIATION
Service charges: € 100 per month
Includes exterior painting and building insurance
FEATURES
* Living area approx. 132 m²
* Energy label A
* 6 solar panels with approx. 2700 WP capacity
* Five bedrooms, ideal as sleeping, working or guest rooms
* Two luxurious bathrooms with underfloor heating
* Backyard approx. 28 m² (with rear access)
* Front garden approx. 9 m²
* External storage shed approx. 5.8 m²
* Open kitchen with luxury Siemens appliances (steam oven, dishwasher, induction hob, fridge-freezer combination)
* High ceilings (approx. 2.9 m)
* Underfloor heating on ground and first floors, individually controllable per room
* Recessed spotlights throughout the ground floor
* Sliding doors to the garden
* Electric sunshade at the rear façade
* Electrically operated sun screens at the bedrooms
* Air conditioning in both bedrooms on the second floor
* Washing machine and dryer connections on the first floor
* HR++ glazing and solar panels
* Mechanical ventilation on all floors
* Outdoor lighting front and rear, outdoor tap and electricity point in the garden
* Delivery in consultation
Kenmerken
- Koopprijs
- € 875.000,-
- Plaats
- Amsterdam
- Status
- Beschikbaar
- Buurt
- Terrasdorp
- Aantal kamers
- 6
- Aantal slaapkamers
- 5
- Aantal badkamers
- 2
- Woonoppervlakte
- 132 m2
- Ligging
- Aan water, In woonwijk, Vrij uitzicht
- Bouwjaar
- 2017
- Isolatie
- Dakisolatie, Muurisolatie, Vloerisolatie, Dubbelglas, Volledig geïsoleerd
- Type verwarming
- Stadsverwarming, Vloerverwarming gedeeltelijk
- Onderhoud buiten
- Goed tot uitstekend
- Onderhoud binnen
- Goed tot uitstekend
- Voorzieningen
- Mechanische ventilatie, TV kabel, Buitenzonwering, Airconditioning, Schuifpui, Zonnepanelen, Natuurlijke ventilatie
- Energieklasse
- A
- Soort dak
- Plat dak
- Parkeer faciliteiten
- Betaald parkeren, Parkeervergunningen
- Schuur/bergruimte
- 1
- Woning type
- Woonhuis
Plattegronden
Uitzicht op straat
Zoek de locatie
kom jij kijken?
Een bezoek vertelt het meest. Onze makelaars nemen graag de tijd voor een rustige rondleiding.
Contacteer ons nu
















































