Sparrenweg 39D, Amsterdam
VerkochtBeschrijving
PUUR* wonen
Heerlijk licht loft-achtig 2-kamer appartement 51m2 met een balkon van 8m2 op het oosten en uitzicht op de rustige binnentuin midden in het levendige Amsterdam-Oost!
Welkom aan de Sparrenweg! Dit fijne appartement bevindt zich op een rustige locatie aan de achterzijde van het complex, door de hoge ramen een zeer licht en mooi uitzicht over het groene hart van het gebouw: de gezamenlijke binnentuin. Hier woon je in een levendige buurt met veel leuke cafés, restaurants en winkels om de hoek denk aan het Beukenplein, de Dappermarkt en het Oosterpark.
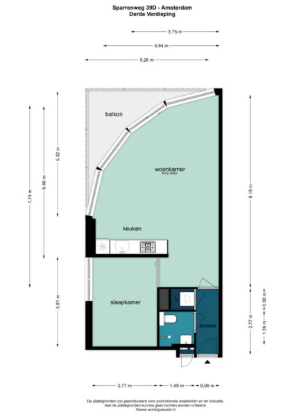
Indeling
Via de gemeenschappelijke entree met trappenhuis bereik je de woning op de tweede verdieping. Je komt binnen in de hal, waar zich ook een praktische kast bevindt voor de wasmachine en droger. De badkamer is netjes en voorzien van een douchecabine, wastafel, toilet en een designradiator.
De slaapkamer is ruim, rustig gelegen en biedt voldoende plek voor een groot bed en kastruimte. Aan de achterzijde ligt de lichte woonkamer met grote ramen en een prachtig uitzicht op de groene binnentuin. Vanuit hier stap je zo het balkon op, gelegen op het oosten, ideaal voor je ochtendkoffie in de zon. De open keuken is praktisch ingericht en voorzien van inbouwapparatuur: een 4-pits inductiekookplaat, vaatwasser, koelkast, vriezer en een losse combi-oven.
Op de begane grond beschik je over een externe berging van ca. 3 m².
Omgeving
Wonen in de Oosterparkbuurt betekent genieten van de levendigheid én het groen. Het Beukenplein ligt letterlijk om de hoek, net als het Oosterpark, perfect voor een ochtendwandeling of picknick in de zomer. Je vindt hier hippe horeca zoals Bar Bukowski, de Biertuin, LouieLouie en nog veel meer. Alles wat je nodig hebt is binnen handbereik, van supermarkten tot speciaalzaken.
Bereikbaarheid
Zeer goed bereikbaar met het OV: zowel station Muiderpoort als het Amstelstation zijn vlakbij. Met de auto rijd je binnen no-time de Ring A10 op. Parkeren is mogelijk via betaald parkeren of met een vergunning (check de website van de gemeente Amsterdam voor de actuele wachttijden).
Erfpacht
De woning ligt op gemeentelijke erfpachtgrond. Het betreft een voortdurend recht van erfpacht, waarbij de canon is afgekocht tot 15 mei 2045. Van toepassing zijn de algemene bepalingen uit het jaar 2000. Er is nog een mogelijkheid om over te stappen naar eeuwige erfpacht
Bijzonderheden;
* Toplocatie in het populaire Amsterdam-Oost
* Veel licht vanwege de grote ramen rondom
* Heerlijk licht appartement met vrij uitzicht op de binnentuin
* Rustig gelegen aan de stille achterzijde van het complex
* Balkon op het oosten
* Aparte berging op de begane grond
* Energielabel C
* Volledig voorzien van dubbel glas
* Actieve, professionele VvE
* Servicekosten € 139,- per maand
* Erfpacht afgekocht tot 2045
Algemeen
- Plaats
- Amsterdam
- Status
- Verkocht
- Buurt
- Oosterparkbuurt Zuidwest
- Aantal kamers
- 2
- Aantal slaapkamers
- 1
- Woonoppervlakte
- 51 m2
- Ligging
- Aan rustige weg, Beschutte ligging
- Bouwjaar
- 1994
- Type verwarming
- CV ketel
- Onderhoud buiten
- Goed
- Onderhoud binnen
- Goed
- Energieklasse
- C
- Soort dak
- Plat dak
- Parkeer faciliteiten
- Openbaar parkeren, Betaald parkeren, Parkeervergunningen
- Schuur/bergruimte
- 1
- Woning type
- Appartement






















