Tempeliersstraat 34ZW, Haarlem
BeschikbaarPrijs: € 375.000,-
Beschrijving
PUUR* wonen in de Koninginnebuurt van Haarlem – een plek waar stadse levendigheid en comfortabel gelijkvloers wonen samenkomen.
Aan de recent volledig vernieuwde Tempeliersstraat ligt deze lichte en ruime benedenwoning van ca. 77 m2, mét een zonnige tuin op het zuiden. Een heerlijke basis voor wie niet terugdeinst voor een flinke verbouwing en juist droomt van een woning die helemaal naar eigen smaak en stijl kan worden ingericht.
De woning beschikt momenteel over een riante leefruimte, een ruime keuken en een slaapkamer in de aanbouw. Door de gelijkvloerse indeling en de fijne lichtinval is dit na modernisatie een bijzonder comfortabel stadsappartement. De knusse stadstuin op het zuiden biedt een rustige plek om te ontspannen, midden in de stad.
De Tempeliersstraat en het Houtplein zijn recent volledig opnieuw aangelegd en hebben een frisse, strakke uitstraling gekregen. De ligging is ideaal: aan de rand van het centrum, met winkels, horeca, cultuur en openbaar vervoer allemaal op loopafstand.
De woning is grotendeels voorzien van dubbele beglazing en heeft momenteel energielabel C. Een perfecte kans voor handige kopers die de potentie zien en hier hun eigen woonwensen willen realiseren.
Kortom: een leuke kluswoning op een fijne locatie in Haarlem, waar je na verbouwing kunt genieten van puur, comfortabel en gelijkvloers wonen in de stad.
Goed om te weten:
* Benedenwoning met gemengde bestemming
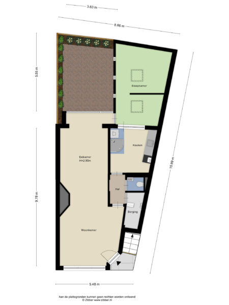
* Zie voor de indeling en de maatvoering de plattegrond.
* Op loopafstand van de gezellige binnenstad en alle voorzieningen
* Bouwjaar 1921
* Woonoppervlak circa 77 m2 (zie meetrapport)
* Modernisering noodzakelijk
* Fijne leefruimte
* Diverse indelingsmogelijkheden
* Gelijkvloers wonen
* Energielabel C
* Verwarming middels Remeha Tzerra HR combiketel uit 2017
* Gemetselde fundering (geen palen)
* Recent opgestarte VvE, servicekosten € 105,- per maand
* Parkeren middels parkeervignet
* Notaris keuze verkoper, Jager Notarissen!
* Aanvaarding in overleg, kan snel
PUUR* living in Haarlem’s Koninginnebuurt – a place where urban vibrancy and comfortable single-level living converge.
This bright and spacious ground-floor apartment of approximately 77 m2, featuring a sunny south-facing garden, is located on the recently renovated Tempeliersstraat. It’s a wonderful base for those who don’t shy away from major renovations and dream of a home that can be decorated entirely to their own taste and style.
The apartment currently features a spacious living area, a large kitchen, and a bedroom in the extension. The single-level layout and pleasant natural light will make this an exceptionally comfortable city apartment after modernization. The cozy south-facing city garden offers a peaceful place to relax, right in the heart of the city.
Tempeliersstraat and Houtplein have recently been completely renovated and given a fresh, sleek look. The location is ideal: on the edge of the city center, with shops, restaurants, cultural venues and public transport all within walking distance.
The house is largely fitted with double glazing and currently has an energy label C. A perfect opportunity for savvy buyers who see the potential and want to realize their own living dreams.
In short: a lovely fixer-upper in a great location in Haarlem where, after renovation, you can enjoy pure, comfortable, single-living living in the city.
Good to know:
* Ground-floor apartment with mixed zoning.
* See the floor plan for the layout and dimensions.
* Within walking distance of the charming city center and all amenities
* Built in 1921
* Living area approximately 77 m2 (see measurement report)
* Modernization required
* Comfortable living space
* Various layout options
* Single-level living
* Energy label C
* Heating via a Remeha Tzerra HR combi boiler from 2017
* Brick foundation (no piles)
* Recently established homeowners’ association (VvE), service costs € 105,- per month
* Parking with a parking permit
* Seller’s choice of notary: Jager Notarissen!
* Acceptance by agreement, can be quick
Kenmerken
- Koopprijs
- € 375.000,-
- Plaats
- Haarlem
- Status
- Beschikbaar
- Buurt
- Koninginnebuurt
- Aantal kamers
- 3
- Aantal slaapkamers
- 1
- Woonoppervlakte
- 77 m2
- Ligging
- In centrum
- Bouwjaar
- 1921
- Isolatie
- Grotendeels dubbelglas
- Type verwarming
- CV ketel
- Onderhoud buiten
- Goed
- Onderhoud binnen
- Matig
- Voorzieningen
- Buitenzonwering, Rookkanaal, Schuifpui, Glasvezel kabel
- Energieklasse
- C
- Soort dak
- Plat dak
- Parkeer faciliteiten
- Betaald parkeren, Parkeervergunningen
- Woning type
- Appartement
Plattegronden
Uitzicht op straat
Zoek de locatie
kom jij kijken?
Een bezoek vertelt het meest. Onze makelaars nemen graag de tijd voor een rustige rondleiding.
Contacteer ons nu




































