Tweede Jan van der Heijdenstraat 103A, Amsterdam
BeschikbaarPrijs: € 900.000,-
Beschrijving
PUUR* wonen in het geliefde De Pijp op eigen grond.
Aan de Tweede Jan van der Heijdenstraat ligt deze sfeervolle en karaktervolle dubbele benedenwoning van ca. 97 m² op eigen grond met heerlijke stadstuin. In deze woning komen authentieke details en modern wooncomfort mooi samen. De woning beschikt over een lichte woon- en eetkamer ensuite, twee slaapkamers en een gerenoveerde luxe badkamer. Daarnaast is er een heerlijke tuin van ca. 35 m² en een terras van ca. 4 m². Grote raampartijen, glas-in-looddetails, originele ornamenten en hoge plafonds geven de woning een warme en karaktervolle uitstraling.
Met een prachtige houten vloer door de gehele woning, op maat gemaakte gordijnen, stijlvolle inbouwkasten en veel originele details komt het karakter van dit appartement goed naar voren. De combinatie van een lichte woonkamer aan de voorzijde met twee Franse balkons en een eetkamer met open keuken aan de achterzijde zorgt voor een ideale indeling en een fijne verbinding met de buitenruimte.
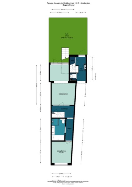
INDELING:
Woonverdieping ligt boven de slaapkamers, dus heerlijk rustig (en koel) slapen!
In de gemeenschappelijke brede entree kan je je fietsen veilig stallen en bevindt zich een eigen bergingskast met tweede wasmachine aansluiting. Vanuit de hal is de tuin direct toegankelijk. Woonverdieping eerste verdieping: Via de gemeenschappelijke entree kom je binnen aan de achterzijde, waar zich een gerenoveerd separaat toilet bevindt.
De eerste verdieping met ruim 3 meter hoge plafonds geeft een zeer ruime beleving. Hier bevindt zich de open keuken, uitgevoerd in een charmante blauwe kleur en granito keukenblad. De keuken is voorzien van een SMEG gasfornuis met oven. Via de openslaande deuren met dubbel glas heb je vanuit de eetkamer/keuken toegang tot het terras. Vanaf het terras leidt een trap naar beneden naar de tuin, waardoor binnen en buiten mooi met elkaar verbonden zijn.
De eetkamer/keuken staat in verbinding met de woonkamer middels prachtige en-suite schuifdeuren met originele glas in lood ramen. Aan beide zijden van deze ensuite zijn inbouwkasten aanwezig.
De woonkamer bevindt zich aan de voorzijde van de woning, heeft grote raampartijen en twee Franse balkons, waardoor er veel natuurlijk licht binnenvalt met uitzicht op de Amstel. De ruimte beschikt over een originele schouw met daarboven een op maat gemaakte spiegel. De hoge plafonds met originele ornamenten versterken het karakter van deze prachtige leefruimte.
Begane grond: via een trap vanuit de eetkamer bereik je de begane grond van de woning.
Hier bevinden zich twee slaapkamers, een badkamer en bergruimte met wasmachine aansluiting onder de trap. De ruime slaapkamer aan de achterzijde heeft openslaande deuren naar de tuin, waardoor je vanuit de kamer direct naar buiten stapt. Ook op deze verdieping zie je het glas-in-lood weer terugkomen, wat perfect aansluit bij de authentieke details van de woning.
De badkamer is volledig gerenoveerd en mooi afgewerkt met luxe sanitair. Deze is voorzien van een ligbad, een ruime inbouw douche, een dubbele wastafel met inbouw kranen en wastafelmeubel, een toilet en een handdoekradiator. Daarnaast beschikt de badkamer over vloerverwarming en ingebouwde spots in het plafond.
Aan de voorzijde bevindt zich de tweede kamer, die geschikt is als slaap-, werk- of logeerkamer. Dankzij de grote ramen valt hier veel daglicht naar binnen.
De tuin: de tuin, vormt een oase van rust. In de lente tussen de bloesem en zomers eten in de (avond) zon.
OMGEVING EN BEREIKBAARHEID:
De woning ligt in het gezellige stadsdeel De Pijp, één van de meest levendige en geliefde buurten van Amsterdam. In de directe omgeving vind je een grote diversiteit aan cafés, restaurants, speciaalzaken en winkels. De bekende Albert Cuypmarkt ligt op loopafstand en ook het Sarphatipark bevindt zich vlakbij, een heerlijke plek om te ontspannen of een wandeling te maken.
Voor de dagelijkse boodschappen zijn er meerdere supermarkten en winkels in de buurt. Daarnaast bevinden zich diverse sportscholen, koffietentjes en culturele hotspots in de directe omgeving.
De bereikbaarheid is uitstekend. Metrostation De Pijp (Noord/Zuidlijn) ligt op korte afstand, waardoor zowel Amsterdam Centraal als Amsterdam Zuid snel bereikbaar zijn. Ook diverse tram- en busverbindingen bevinden zich in de nabije omgeving. Met de fiets ben je bovendien binnen enkele minuten in het centrum, aan de Amstel of in Amsterdam Zuid. Met de auto is de Ring A10 eveneens goed bereikbaar.
BIJZONDERHEDEN;
* Gelegen op een toplocatie in De Pijp
* Woonoppervlakte ca. 132 m²
* Achtertuin van ca. 35 m²
* Terras van ca. 4 m²
* Energielabel D; de gehele woning beschikt over HR++ glas
* Gelegen op eigen grond
* Woonkamer en eetkamer ensuite met glas-in-lood schuifdeuren
* Twee slaapkamers
* Heerlijke tuin met terras
* Authentieke details zoals glas-in-lood, hoge plafonds en ornamenten
* Originele schouw met op maat gemaakte spiegel
* Twee Franse balkons aan de voorzijde
* Inbouwkasten aan beide zijden van de ensuite
* Gerenoveerde badkamer met ligbad, douche, dubbele wastafel en vloerverwarming
* Charmante open keuken met SMEG gasfornuis en oven
* Houten vloer door de gehele woning
* Veel lichtinval door grote raampartijen
* VvE bijdragen van: € 200,- per maand.
* Oplevering in overleg
****ENGLISH****
PUUR* living in the beloved De Pijp on freehold land.
Located on the Tweede Jan van der Heijdenstraat, this charming and characterful double ground-floor apartment of approximately 97 m², situated on freehold land, features a wonderful city garden. In this home, authentic details blend beautifully with modern living comfort. The property offers a bright living and dining room ensuite, two bedrooms, and a renovated luxury bathroom. In addition, there is a lovely garden of approximately 35 m² and a terrace of approximately 4 m². Large windows, stained-glass details, original ornaments, and high ceilings give the home a warm and characterful appearance.
With a beautiful wooden floor throughout the entire home, custom-made curtains, stylish built-in cabinets, and many original details, the character of this apartment truly stands out. The combination of a bright living room at the front with two French balconies and a dining room with an open kitchen at the rear creates an ideal layout and a pleasant connection to the outdoor space.
LAYOUT:
The living floor is located above the bedrooms, allowing for wonderfully quiet (and cool) sleeping!
In the spacious shared entrance you can safely store your bicycles, and there is a private storage cupboard with a second washing machine connection. From the hallway, the garden is directly accessible.
First floor – living level: Through the shared entrance you enter at the rear, where a renovated separate toilet is located.
The first floor, with ceilings over 3 meters high, creates a very spacious feel. Here you will find the open kitchen, finished in a charming blue color with a granito countertop. The kitchen is equipped with a SMEG gas stove with oven. Through the double-glazed French doors you have access from the dining room/kitchen to the terrace. From the terrace, a staircase leads down to the garden, beautifully connecting indoor and outdoor living.
The dining room/kitchen is connected to the living room by beautiful ensuite sliding doors with original stained-glass windows. Built-in cabinets are located on both sides of these ensuite doors.
The living room is situated at the front of the home and features large windows and two French balconies, allowing plenty of natural light to enter and offering views of the Amstel River. The space also includes an original fireplace with a custom-made mirror above it. The high ceilings with original ornaments enhance the character of this beautiful living space.
Ground floor: Via a staircase from the dining room you reach the ground floor of the home.
Here you will find two bedrooms, a bathroom, and storage space with a washing machine connection under the stairs. The spacious bedroom at the rear has French doors opening onto the garden, allowing you to step directly outside from the room. On this floor as well, stained-glass details reappear, perfectly complementing the authentic character of the home.
The bathroom has been fully renovated and beautifully finished with luxury sanitary fittings. It includes a bathtub, a spacious walk-in shower, a double washbasin with built-in faucets and vanity unit, a toilet, and a towel radiator. The bathroom also features underfloor heating and recessed ceiling spotlights.
At the front of the home is the second room, suitable as a bedroom, office, or guest room. Thanks to the large windows, plenty of daylight enters this space.
The garden: The garden forms a peaceful oasis. In spring you can enjoy the blossoms, and in summer it is the perfect place for dining in the evening sun.
LOCATION AND ACCESSIBILITY:
The property is located in the lively De Pijp district, one of the most vibrant and beloved neighborhoods of Amsterdam. In the immediate area you will find a wide variety of cafés, restaurants, specialty shops, and boutiques. The famous Albert Cuyp Market is within walking distance, and Sarphatipark is also nearby; a wonderful place to relax or enjoy a walk.
For daily groceries, several supermarkets and shops are located nearby. In addition, there are various gyms, coffee bars, and cultural hotspots in the immediate vicinity.
Accessibility is excellent. Metro station De Pijp (North–South line) is a short distance away, providing quick connections to both Amsterdam Central Station and Amsterdam Zuid. Several tram and bus lines are also nearby. By bike, you can reach the city center, the Amstel River, or Amsterdam Zuid within minutes. By car, the A10 ring road is also easily accessible.
HIGHLIGHTS:
* Located in a prime location in De Pijp
* Living area approx. 132 m²
* Backyard of approx. 35 m²
* Terrace of approx. 4 m²
* Energy label D; the entire home features HR++ double glazing
* Situated on freehold land (no ground lease)
* Living room and dining room ensuite with stained-glass sliding doors
* Two bedrooms
* Lovely garden with terrace
* Authentic details such as stained glass, high ceilings, and ornaments
* Original fireplace with custom-made mirror
* Two French balconies at the front
* Built-in cabinets on both sides of the ensuite
* Renovated bathroom with bathtub, shower, double sink, and underfloor heating
* Charming open kitchen with SMEG gas stove and oven
* Wooden flooring throughout the home
* Plenty of natural light through large windows
* Homeowners’ association (VvE) contribution: €200,- per month
* Delivery in consultation
Kenmerken
- Koopprijs
- € 900.000,-
- Plaats
- Amsterdam
- Status
- Beschikbaar
- Buurt
- Hemonybuurt
- Aantal kamers
- 4
- Aantal slaapkamers
- 2
- Aantal badkamers
- 1
- Woonoppervlakte
- 97 m2
- Ligging
- Aan rustige weg, In centrum, Aan vaarwater
- Bouwjaar
- 1883
- Type verwarming
- CV ketel
- Onderhoud buiten
- Goed
- Onderhoud binnen
- Goed
- Voorzieningen
- Mechanische ventilatie, TV kabel, Frans balkon
- Energieklasse
- D
- Soort dak
- Plat dak
- Parkeer faciliteiten
- Openbaar parkeren, Betaald parkeren
- Schuur/bergruimte
- 1
- Woning type
- Appartement
Plattegronden
Uitzicht op straat
Zoek de locatie
kom jij kijken?
Een bezoek vertelt het meest. Onze makelaars nemen graag de tijd voor een rustige rondleiding.
Contacteer ons nu







































