Valkenburgerlaan 18, Heemstede
VerkochtBeschrijving
***For English, see below***
Heerlijk ruim en vrijstaand wonen
Om de hoek van het mooie Groenendaalse bos staat deze ruime vrijstaande villa met oprit, carport en een rondom liggende zonnige tuin. De villa (bouwjaar ca. 1933) is vele jaren met liefde bewoond en netjes onderhouden. Nu is het tijd voor de nieuwe bewoners om de villa weer helemaal eigentijds te maken. De villa bestaat o.a. een ruime woonkamer met 3 erkers en een dichte keuken op de parterre, 3 slaapkamers en een badkamer op de 1e verdieping en een ruime zolderkamer met toegang naar de vliering en een was-/stookkamer op de 2e verdieping. Op de 2e verdieping heb je de uitstekende mogelijkheid om een 2e badkamer te realiseren. Binnen is deze vrijstaande villa door de vele raampartijen lekker licht en heb je een leuk zicht op de tuin. Aan de voorzijde ligt een zonnige tuin met ruime oprit naar de carport en toegang naar de zonnige achtertuin met een vrijstaande houten schuur. De achtertuin is op het zuidoosten gelegen en biedt de hele dag door zowel zon als schaduw. De tuin is jarenlang met zorg onderhouden door een tuinman en voorzien van mooie beplanting. De ligging van deze gezinsvilla is perfect. Zodra je het huis uitloopt wandel of fiets je zo naar de Valkenburgerlaan, de Raadhuisstraat en de Binnenweg waar je uitstekend terecht kunt voor je dagelijkse boodschappen, diverse boetieks vindt, lekker kan eten in één van de vele eetgelegenheden of de wekelijkse woensdag markt kan bezoeken. Ook ben je met enkele minuten in het Groenendaalse bos met een kinderboerderij, een molen, een leuke speeltuin en een restaurant. Bovendien liggen het overdekte zwembad en diverse sportvelden zeer dichtbij. En voor wie regelmatig de auto pakt, zijn de uitvalswegen naar o.a. Amsterdam, Alkmaar en Den Haag snel en gemakkelijk bereikbaar.
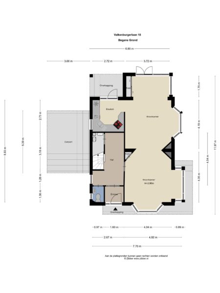
Indeling:
Parterre: entree, vestibule voorzien van glas-in-lood, ruime hal met kelderkast en net toilet met fontein, royale en zeer lichte woonkamer voorzien van 3 erkers, zitvensterbank, marmeren vensterbanken, servieskast, ornamenten plafond en openslaande deuren naar tuin, nette keuken met diverse inbouwapparatuur en deur naar tuin, via hal bordestrap naar……
1e Verdieping: overloop met grote glas-in-lood ramen, slaapkamer aan voorzijde met tevens toegang naar nette badkamer met douche, toilet, wastafel en wasmachine aansluiting, zijkamer aan achterzijde voorzien van wastafel, slaapkamer aan achterzijde met inbouwkasten en openslaande deuren naar balkon, via overloop trap naar…….
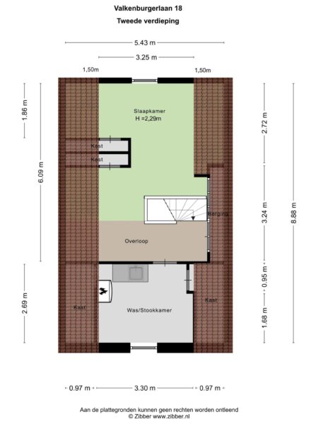
2e Verdieping: overloop/zolderkamer met dakkapel, bergruimte, vaste kast en toegang naar vliering, was-/stookkamer voorzien van pantry, cv-ketel, wasmachine aansluiting en bergruimte
Bijzonderheden:
* Woonoppervlakte ca. 158 m2, inhoud ca. 602 m3 en 450 m2 eigen grond
* Zonnige tuin rondom
* Tuin met sprinklerinstallatie en eigen bron
* Ruime oprit met carport
* Gedeeltelijk voorzien van markiezen
* Alarminstallatie aanwezig
* Modernisering gewenst
* Voor indeling en maatvoering zie plattegronden
* Een uitgebreide verkoopbrochure kunt u downloaden via onze site
* Oplevering in overleg
Lovely spacious and detached living
Around the corner from the beautiful Groenendaalse bos stands this spacious detached villa with driveway, carport and a surrounding sunny garden. The villa (built circa 1933) has been lovingly occupied for many years and neatly maintained. Now it is time for the new residents to make the villa completely contemporary again. The villa includes a spacious living room with 3 bay windows and a closed kitchen on the ground floor, 3 bedrooms and a bathroom on the 1st floor and a spacious attic room with access to the attic and a laundry / boiler room on the 2nd floor. On the 2nd floor you have the excellent possibility to realize a 2nd bathroom. Inside, this detached villa is nice and bright because of the many windows and you have a nice view of the garden. At the front is a sunny garden with spacious driveway to the carport and access to the sunny backyard with a detached wooden shed. The backyard is southeast facing and offers both sun and shade throughout the day. The garden has been carefully maintained by a gardener for many years and features beautiful planting. The location of this family villa is perfect. As soon as you walk or bike out of the house you can easily reach the Valkenburgerlaan, the Raadhuisstraat and the Binnenweg where you can get your daily groceries, find various boutiques, have a delicious meal in one of the many eateries or visit the weekly Wednesday market. You are also with a few minutes in the Groenendaal forest with a petting zoo, a mill, a nice playground and a restaurant. In addition, the indoor swimming pool and several sports fields are very close by. And for those who regularly take the car, the roads to Amsterdam, Alkmaar and The Hague, among others, are quickly and easily accessible.
Layout:
Ground floor: entrance, vestibule with stained glass, spacious hall with cellar cupboard and toilet with fountain, spacious and very bright living room with 3 bay windows, sitting window sill, marble window sills, china cabinet, ornamental ceiling and French doors to garden, neat kitchen with appliances and door to garden, through hallway stairs to……
1st floor: landing with large stained-glass windows, front bedroom with access to bathroom with shower, toilet, sink and washing machine connection, side room with sink, rear bedroom with fitted wardrobes and doors to balcony, via landing stairs to…….
2nd floor: landing / attic room with dormer window, storage space, closet and access to attic, laundry room with pantry, boiler, washing machine and storage space.
Details:
* Living area approx. 158 m2, contents approx. 602 m3 and 450 m2 own land
* Modernization desired
* Sunny garden all around
* Garden with sprinkler system and well
* Spacious driveway with carport
* Partially equipped with awnings
* Alarm system present
* For layout and dimensions see floor plans
* An extensive sales brochure can be downloaded from our site.
* Delivery in consultation
Algemeen
- Plaats
- Heemstede
- Status
- Verkocht
- Buurt
- Van Merlenbuurt en Valkenburgerplein en omgeving
- Aantal kamers
- 6
- Aantal slaapkamers
- 4
- Aantal badkamers
- 1
- Woonoppervlakte
- 158 m2
- Perceel oppervlakte
- 450 m2
- Ligging
- Aan rustige weg, In woonwijk
- Bouwjaar
- 1933
- Isolatie
- Gedeeltelijk dubbelglas, Voorzetramen
- Type verwarming
- CV ketel
- Onderhoud buiten
- Goed
- Onderhoud binnen
- Goed
- Voorzieningen
- alarminstallatie, TV kabel, Buitenzonwering
- Energieklasse
- G
- Soort dak
- Zadeldak
- Parkeer faciliteiten
- Op eigen terrein
- Schuur/bergruimte
- 1
- Woning type
- Woonhuis
























































