Van Ostadestraat 30-2, Amsterdam
BeschikbaarPrijs: € 575.000,-
Beschrijving
PUUR* Wonen aan de levendige Van Ostadestraat in De Pijp!
Ontdek dit hoogwaardig gerenoveerde appartement van ca. 58 m² met een heerlijk balkon op het zuiden, gelegen op de tweede verdieping van een karakteristiek pand aan de Van Ostadestraat. De woning is in 2023 volledig vernieuwd, waarbij onder andere de elektra, het stucwerk, de keuken, de badkamer én het toilet zijn aangepakt. Tevens is de woning volledig voorzien van dubbel glas. Met oog voor detail en gebruik van kwalitatieve materialen is hier een modern en comfortabel thuis gecreëerd.
Boven bevinden zich nog een extra werk-/hobbykamer en twee praktische bergingen, evenals een gemeenschappelijk dakterras van ca. 25 m².
INDELING
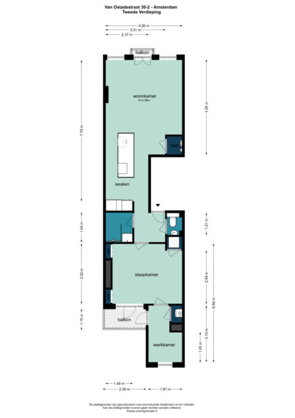
Via het gemeenschappelijke trappenhuis bereik je de woning. Bij binnenkomst bevindt zich direct links het separate toilet, die in 2023 volledig is gerenoveerd.
Je stapt de woning binnen in de moderne open keuken met kookeiland, die direct het hart van het appartement vormt. Hier is ruimte om te koken, te borrelen én te leven. De keuken is voorzien van hoogwaardige Siemens inbouwapparatuur en beschikt over een Quooker. Het kookeiland biedt tevens een gezellige zitplek, ideaal voor dagelijks gebruik of wanneer je gasten ontvangt.
De lichte woonkamer aan de voorzijde kenmerkt zich door de grote raampartijen die zorgen voor een prettige hoeveelheid daglicht. Het Franse balkon met openslaande deuren geeft de ruimte extra charme en een open gevoel. De gehele woning is met aandacht afgewerkt, inclusief dimmers op de verlichting, wat bijdraagt aan de sfeervolle ambiance.
De moderne badkamer is eveneens in 2023 gerenoveerd en uitgerust met een inloop regendouche, een stijlvol wastafelmeubel én comfortabele vloerverwarming. Er is gekozen voor een zandkleurige tegel, die de badkamer een natuurlijke, rustige en luxe uitstraling geeft.
Dit goed geïsoleerde appartement is tijdens de verbouwing voorzien van een geïsoleerde vloer en plafond. Aan de rustige achterzijde bevindt zich de hoofdslaapkamer met directe toegang tot het balkon op het zuiden, waar je de hele dag van de zon kunt genieten. In deze slaapkamer is tevens een praktische wasmachineaansluiting aanwezig, netjes weggewerkt achter een volwaardige deur.
Aan de achterzijde van de woning bevindt zich nog een extra kamer, ideaal als werk-, logeer- of kinderslaapkamer. Hier is tevens de cv-installatie geplaatst, discreet weggewerkt achter een deur. De cv-ketel heeft in februari nog onderhoud gehad.
Op de zolderetage bevinden zich nog twee extra ruimtes: een zeer functionele berging en een werk-/hobbykamer. Daarnaast beschikt de woning over een tweede berging.
Op het dak van het pand is een gemeenschappelijk dakterras aanwezig, waar je de hele dag van de zon kunt genieten. Het terras is sfeervol ingericht met stoelen, een bank en planten.
De woning is met zorg en aandacht gerenoveerd en verkeert in uitstekende staat van onderhoud: een instapklaar appartement met een doordachte indeling en hoog afwerkingsniveau.
LOCATIE
De Van Ostadestraat is gelegen in het hart van De Pijp, maar staat bekend als een relatief rustige straat binnen deze bruisende wijk. Hier woon je te midden van een divers aanbod aan gezellige cafés, restaurants en winkels. Op loopafstand vind je de Albert Cuypmarkt, de Ferdinand Bolstraat en de Ceintuurbaan.
Voor ontspanning ligt het Sarphatipark op steenworp afstand. Daarnaast bevindt ook het Museumplein zich op korte afstand, evenals de Amstel.
De bereikbaarheid is uitstekend: met meerdere tram- en metroverbindingen (Noord/Zuidlijn) om de hoek ben je snel in andere delen van de stad. Daarnaast ben je met de fiets binnen enkele minuten in het centrum en via diverse uitvalswegen snel de stad uit.
ERFPACHT
De woning is gelegen op gemeentelijke erfpachtgrond. Het huidige tijdvak (t/m 30-09-2054) is afgekocht.
BIJZONDERHEDEN
* Woonoppervlakte: ca. 58 m² (NEN 2580 meetrapport aanwezig);
* Volledig gerenoveerd in 2023;
* Volledig voorzien van dubbel glas (2023);
* Nieuwe elektra, CV-ketel, stucwerk, keuken en badkamer;
* Luxe keuken met Siemens inbouwapparatuur en Quooker;
* Moderne badkamer met inloop regendouche;
* Balkon op het zuiden (hele dag zon);
* Extra werk-/slaapkamer aanwezig;
* Hoogwaardig afwerkingsniveau, o.a. dimmers op verlichting;
* Op de zolder etage nog een werkkamer en berging;
* Gemeenschappelijk dakterras van ca. 25 m²;
* Erfpacht afgekocht tot en met 30-09-2054;
* Actieve en gezonde VvE met reservefonds;
* Servicekosten ca. € 186,- per maand;
* Energielabel C;
* Oplevering in overleg, kan snel.
Kenmerken
- Koopprijs
- € 575.000,-
- Plaats
- Amsterdam
- Status
- Beschikbaar
- Buurt
- Cornelis Troostbuurt
- Aantal kamers
- 3
- Aantal slaapkamers
- 2
- Aantal badkamers
- 1
- Woonoppervlakte
- 58 m2
- Bouwjaar
- 1905
- Isolatie
- Muurisolatie
- Type verwarming
- CV ketel
- Onderhoud buiten
- Goed
- Onderhoud binnen
- Goed tot uitstekend
- Voorzieningen
- Mechanische ventilatie, TV kabel, Frans balkon, Natuurlijke ventilatie
- Energieklasse
- C
- Soort dak
- Plat dak
- Parkeer faciliteiten
- Betaald parkeren, Parkeervergunningen
- Schuur/bergruimte
- 2
- Woning type
- Appartement
Plattegronden
Uitzicht op straat
Zoek de locatie
kom jij kijken?
Een bezoek vertelt het meest. Onze makelaars nemen graag de tijd voor een rustige rondleiding.
Contacteer ons nu































