Zandvoorter Allee 304, Haarlem
BeschikbaarPrijs: € 375.000,-
Beschrijving
PUUR* wonen in een verzorgd en ruim hoekappartement dat gelegen is op de 7e verdieping van serviceflat ‘De Kinheim’ aan de rand van Haarlem-Heemstede. Geschikt voor actieve senioren (50+ jaar) Dit 3-kamer appartement met privé berging op de parterre telt een woonoppervlakte van ruim 95 m2, beschikt over 2 zeer royale slaapkamers met vaste kastenwanden, een verzorgde keuken en badkamer en is verrassend licht door de grote raampartijen en heeft een fantastisch uitzicht over de groene bosrijke omgeving. Het appartementencomplex is toegankelijk door middel van een afgesloten entree met een gemeenschappelijke ruime hal en beschikt over liften. Aan de voorzijde kunt u uw auto openbaar parkeren.
Het complex ligt centraal op de grens van Haarlem-Heemstede op loopafstand van het openbaar vervoer waaronder het N.S.-station Heemstede/Aerdenhout, loop-/ korte fietsafstand van het centrum van zowel Heemstede als Haarlem.
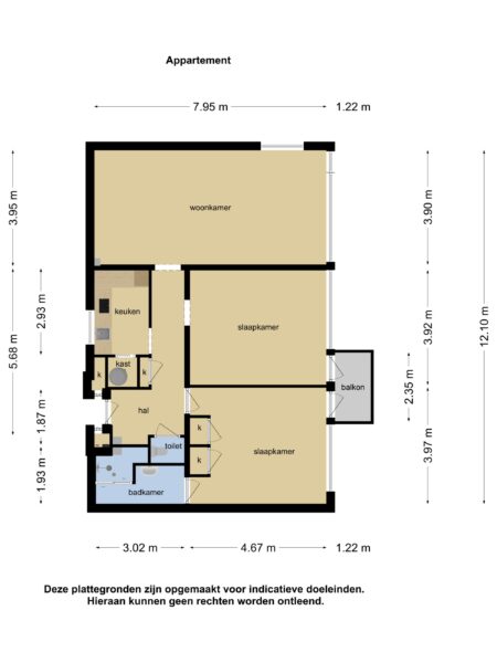
Indeling
Parterre: afgesloten gemeenschappelijke entree, ruime hal, trappenhuis en LIFTEN naar:
7e en topverdieping: entree, garderoberuimte, modern zwevend toilet, hal met bergkast, verzorgde gemoderniseerde keuken v.v. provisieruimte met Inventum boiler, Siemens 4-pits kookplaat, combi-oven, afzuigsysteem, vaatwasser en koel-vrieskast, lichte royale woonkamer met glad gestucte wanden en grote raampartijen, grote slaapkamer met 2 vaste kasten en deur naar het balkon, 2e ruime slaapkamer met 2 vaste kastenwanden, deur naar het balkon en een deur naar de verzorgde badkamer voorzien van douche, fraai wastafelmeubel met kolomkast en vloerverwarming.
Voor indeling en maatvoering zie kleurenplattegronden.
Het beschikt over een gezellige recreatiezaal met bibliotheek, leeshoek, computerzaal, een biljartkamer met twee biljarts en er zijn logeerkamers beschikbaar voor familie/vrienden. Inpandig bevinden zich een professionele dames- en heren kapsalon, een pedicuresalon en een massagesalon. Indien gewenst kan er vanuit de thuiszorgorganisatie Zorgbalans zorg geregeld worden. De parkachtige binnentuin beschikt o.a. over een jeu-de-boule-baan en fraaie vijver.
Daarnaast is er een actieve bewonerscommissie die organiseert o.a. bridge, mahjong, klaverjassen, biljarten, tafeltennis, jeu-de-boules, koersbal en een eigen zangkoor. Er worden regelmatig uitstapjes georganiseerd naar bezienswaardigheden en concerten.
Goed om te weten:
* Royaal en verrassend licht appartement met 2 grote slaapkamers met weids uitzicht
* Het appartement bevindt zich in goede staat van onderhoud
* Leeftijdsgrens; 50+
* Op de 7e verdieping gelegen met balkon op het oosten/zuidoosten
* Gehele appartement voorzien van kunststof kozijnen met dubbele beglazing
* Serviceflat Kinheim: kijk op: www.serviceflat-kinheim.nl
* Elektrische zonwering aanwezig
* Vernieuwde elektra
* Glad gestucte wanden in de woonkamer
* Separate berging op de begane grond
* Actieve vereniging van eigenaars
* Inschrijfkosten VvE: 750,-
* De maandelijkse servicekosten bedragen momenteel € 521,18,- per maand
* Notariskeuze verkoper: notariskantoor Potma
* Oplevering in overleg, kan snel
*ENGLISH TEXT*
PURE* living in a well-maintained and spacious corner apartment located on the 7th floor of the ‘De Kinheim’ service flat on the outskirts of Haarlem-Heemstede. Suitable for active seniors (50+ years). This 3-room apartment with private storage room on the ground floor has a living area of over 95 m2, features 2 very spacious bedrooms with built-in wardrobes, a well-maintained kitchen and bathroom, and is surprisingly light thanks to the large windows and fantastic views of the green, wooded surroundings. The apartment complex is accessible via a locked entrance with a spacious communal hall and has elevators. You can park your car in the public parking area at the front.
The complex is centrally located on the border of Haarlem-Heemstede, within walking distance of public transport, including the Heemstede/Aerdenhout railway station, and a short walk or bike ride from the centers of both Heemstede and Haarlem.
Layout
Ground floor: enclosed communal entrance, spacious hall, staircase, and ELEVATORS to:
7th and top floor: entrance hall, cloakroom, modern floating toilet, hallway with storage cupboard, well-maintained modernized kitchen with pantry area with Inventum boiler, Siemens 4-burner hob, combi-oven, extractor system, dishwasher, and fridge-freezer, bright and spacious living room with smooth plastered walls and large windows, large bedroom with 2 built-in closets and door to the balcony, 2nd spacious bedroom with 2 built-in closet walls, door to the balcony, and a door to the well-maintained bathroom with shower, beautiful sink unit with column cabinet, and underfloor heating.
For layout and dimensions, see color floor plans.
It has a cozy recreation room with a library, reading corner, computer room, a billiard room with two billiard tables, and guest rooms are available for family/friends. Inside, there is a professional ladies’ and men’s hair salon, a pedicure salon, and a massage salon. If desired, care can be arranged through the home care organization Zorgbalans. The park-like courtyard garden features a boules court and a beautiful pond.
In addition, there is an active residents’ committee that organizes activities such as bridge, mahjong, klaverjassen, billiards, table tennis, jeu-de-boules, koersbal, and its own choir. Regular trips are organized to places of interest and concerts.
Good to know:
* Spacious and surprisingly light apartment with 2 large bedrooms with panoramic views
* The apartment is in good condition
* Age limit: 50+
* Located on the 7th floor with a balcony facing east/southeast
* Entire apartment has plastic window frames with double glazing
* Kinheim service flat: see www.serviceflat-kinheim.nl
* Electric sun blinds
* Renovated electrical system
* Smooth plastered walls in the living room
* Separate storage room on the ground floor
* Active owners’ association
* Registration fee for owners’ association: €750
* The monthly service charges are currently €521.18 per month
* Seller’s choice of notary: Potma notary office
* Delivery in consultation, can be done quickly
Kenmerken
- Koopprijs
- € 375.000,-
- Plaats
- Haarlem
- Status
- Beschikbaar
- Buurt
- Bosch en Vaart
- Aantal kamers
- 6
- Aantal slaapkamers
- 2
- Aantal badkamers
- 1
- Woonoppervlakte
- 96 m2
- Ligging
- Aan rustige weg, In woonwijk, Vrij uitzicht, In bosrijke omgeving
- Isolatie
- Dubbelglas
- Type verwarming
- Blokverwarming
- Onderhoud buiten
- Goed
- Onderhoud binnen
- Redelijk tot goed
- Voorzieningen
- Mechanische ventilatie, TV kabel, Natuurlijke ventilatie
- Energieklasse
- F
- Soort dak
- Plat dak
- Parkeer faciliteiten
- Openbaar parkeren, Op eigen terrein
- Schuur/bergruimte
- 1
- Woning type
- Appartement
Plattegronden
Uitzicht op straat
Zoek de locatie
kom jij kijken?
Een bezoek vertelt het meest. Onze makelaars nemen graag de tijd voor een rustige rondleiding.
Contacteer ons nu


































